|
|
|
| Larry Stein Oklahoma County Assessor (405) 713-1200 - Public Access System |
|
|
|
|
|
|
| Real Property Display - Screen Produced 3/21/2026 5:53:56 AM | ||||
|---|---|---|---|---|
| Account: R192011300 | Type: Residential | Location: |
90 WOODLAKE DR |
|
| Building Name/Occupant: |
|
HARRAH |
||
| Owner Name 1: | MCELFRESH SHERRY |
Parcel PIN#: |
2131-19-201-1300 |
|
| Owner Name 2: | 1/4 section #: |
2131 |
||
| Owner Name 3: | Parent Acct: |
|
||
| Billing Address: | 90 WOODLAKE DR | Tax District: |
|
|
| City, State, Zip | CHOCTAW, OK 73020-7305 | School System: |
Choctaw #4 |
|
|
Country: (If noted) |
Land Size: |
2.1000 Acres |
||
|
Land Value: 61,236 |
|
|||
|
Sect 33-T12N-R1E Qtr SW |
BILLINGS RIDGEWOOD ESTATES
Block
002
Lot
012
|
|||
| Full Legal Description: BILLINGS RIDGEWOOD ESTATES 002 012 |
| Photo & Sketch (if available) | Comp Sales (ordered by relevancy) |
|
||||||||||||||||||
|
||||||||||||||||||||
| Value History (*The County Treasurer 405-713-1300 posts & collects actual tax amounts. Contact information HERE) | |||||||||||||
|---|---|---|---|---|---|---|---|---|---|---|---|---|---|
| Year | Market Value | Taxable Mkt Value | Gross Assessed | Exemption | Net Assessed | Millage | Est. Tax | Tax Savings | |||||
|
2025 |
246,500 |
246,500 |
27,115 |
1,000 |
26,115 |
117.21 |
$3,061 |
$117 |
|||||
|
2024 |
205,000 |
182,700 |
20,097 |
0 |
20,097 |
116.35 |
$2,338 |
$285 |
|||||
|
2023 |
174,000 |
174,000 |
19,140 |
0 |
19,140 |
117.10 |
$2,241 |
$0 |
|||||
|
2022 |
174,000 |
174,000 |
19,140 |
0 |
19,140 |
115.17 |
$2,204 |
$0 |
|||||
|
2021 |
145,500 |
132,825 |
14,610 |
0 |
14,610 |
115.06 |
$1,681 |
$160 |
|||||
| Property Account Status/Adjustments/Exemptions | ||
|---|---|---|
| Account # | Exemption Description | Amount |
|
R192011300 |
3% Cap Homestead |
0 |
|
R192011300 |
Homestead |
1,000 |
| Property Deed Transaction History (Recorded in the County Clerk's Office) | ||||||||||
|---|---|---|---|---|---|---|---|---|---|---|
| Date | Type | Book | Page | Price | Grantor | Grantee | ||||
|
12/13/2024 |
|
Deeds |
$204,000 |
ELLIOTT MICAH SHAWN |
MCELFRESH SHERRY |
|||||
|
10/29/2021 |
|
Deeds |
$172,000 |
EIKEL JOHN RICHARD & LORI LYNN TRS |
ELLIOTT MICAH SHAWN |
|||||
|
6/5/2019 |
|
Deeds |
$0 |
EIKEL JOHN R & LORI |
EIKEL JOHN RICHARD & LORI LYNN TRS |
|||||
|
5/7/1993 |
|
Historical |
$54,500 |
SAMPLES DAVID & BETSY |
EIKEL JOHN R & LORI |
|||||
|
10/16/1992 |
|
Historical |
$46,000 |
DOUGLAS B KAY |
SAMPLES DAVID & BETSY |
|||||
| Last Mailed Notice of Value (N.O.V.) Information/History | ||||||||
|---|---|---|---|---|---|---|---|---|
| Year | Date | Market Value | Taxable Market Value | Gross Assessed | Exemption | Net Assessed | ||
|
2025 |
01/31/2025 |
246,500 |
246,500 |
27,115 |
1,000 |
26,115 |
||
|
2024 |
01/22/2024 |
205,000 |
182,700 |
20,097 |
0 |
20,097 |
||
|
2022 |
02/22/2022 |
174,000 |
174,000 |
19,140 |
0 |
19,140 |
||
|
2021 |
02/24/2021 |
145,500 |
132,825 |
14,610 |
0 |
14,610 |
||
|
2020 |
02/21/2020 |
126,500 |
126,500 |
13,915 |
0 |
13,915 |
||
| Property Building Permit History | |||||||||||
|---|---|---|---|---|---|---|---|---|---|---|---|
| Issued | Permit # | Provided by | Bldg # | Description | Est Construction Cost | Status | |||||
| No Building Permit records returned. | |||||||||||
| Click button on building number to access detailed information: | ||||||
|---|---|---|---|---|---|---|
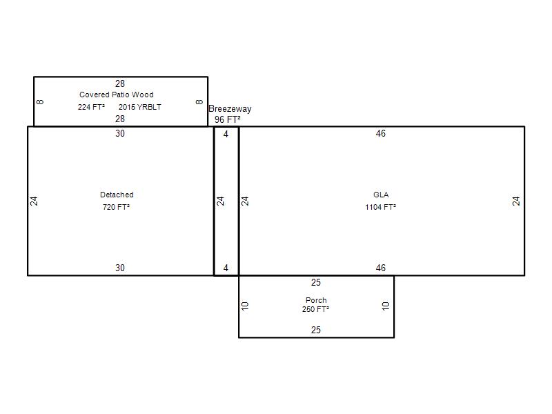
| Bldg # | Vacant/Improved Land | Bldg Description | Year Built | SqFt | # Stories | |
|
1 |
Improved |
Ranch 1 Story |
1983 |
1,104 |
1 Stories |
|