|
|
|
| Larry Stein Oklahoma County Assessor (405) 713-1200 - Public Access System |
|
|
|
|
|
|
| Real Property Display - Screen Produced 3/18/2026 4:04:01 AM | ||||
|---|---|---|---|---|
| Account: R146555400 | Type: Residential | Location: |
3200 S CHOCTAW RD |
|
| Building Name/Occupant: |
|
OKLAHOMA CITY |
||
| Owner Name 1: | TERRAHOMA INC |
Parcel PIN#: |
1252-14-655-5400 |
|
| Owner Name 2: | 1/4 section #: |
1252 |
||
| Owner Name 3: | Parent Acct: |
|
||
| Billing Address: | 14400 SE 29TH ST | Tax District: |
|
|
| City, State, Zip | CHOCTAW, OK 73020-6530 | School System: |
Choctaw #4 |
|
|
Country: (If noted) |
Land Size: |
0.2809 Acres |
||
|
Land Value: 17,742 |
|
|||
|
Sect 13-T11N-R1W Qtr NW |
SCHILLINGS OKLA
Block
006
Lot
000
|
|||
| Full Legal Description: SCHILLINGS OKLA 006 000 LOTS 1 & 2 & 1A |
| Photo & Sketch (if available) | Comp Sales (ordered by relevancy) |
|
||||||||||||||||||
|
||||||||||||||||||||
| Value History (*The County Treasurer 405-713-1300 posts & collects actual tax amounts. Contact information HERE) | |||||||||||||
|---|---|---|---|---|---|---|---|---|---|---|---|---|---|
| Year | Market Value | Taxable Mkt Value | Gross Assessed | Exemption | Net Assessed | Millage | Est. Tax | Tax Savings | |||||
| No PropertyValuation records returned. | |||||||||||||
| Property Account Status/Adjustments/Exemptions | ||
|---|---|---|
| Account # | Exemption Description | Amount |
|
R146555400 |
5% Capped Account |
0 |
| Property Deed Transaction History (Recorded in the County Clerk's Office) | ||||||||||
|---|---|---|---|---|---|---|---|---|---|---|
| Date | Type | Book | Page | Price | Grantor | Grantee | ||||
|
2/16/2011 |
|
Other |
$0 |
SECRETARY OF HOUSING & URBAN DEV |
TERRAHOMA INC |
|||||
|
7/26/2010 |
|
Other |
$0 |
POSEY CHRIS MOORE ANGEL |
SECRETARY OF HOUSING & URBAN DEV |
|||||
|
4/28/2006 |
|
Deeds |
$65,500 |
ANDERSON JEFFREY & REGINA |
POSEY CHRIS MOORE ANGEL |
|||||
|
2/9/2005 |
|
Deeds |
$32,000 |
MONROE BOBBY L & BRENDA J |
ANDERSON JEFFREY A & REGINA A |
|||||
|
8/20/1996 |
|
Historical |
$0 |
ROPER LIDGE B & EMMA TRS |
MONROE BOBBY L & BRENDA J |
|||||
| Last Mailed Notice of Value (N.O.V.) Information/History | ||||||||
|---|---|---|---|---|---|---|---|---|
| Year | Date | Market Value | Taxable Market Value | Gross Assessed | Exemption | Net Assessed | ||
| No Notice of Value N.O.V. records returned. | ||||||||
| Property Building Permit History | |||||||||||
|---|---|---|---|---|---|---|---|---|---|---|---|
| Issued | Permit # | Provided by | Bldg # | Description | Est Construction Cost | Status | |||||
| No Building Permit records returned. | |||||||||||
| Click button on building number to access detailed information: | ||||||
|---|---|---|---|---|---|---|
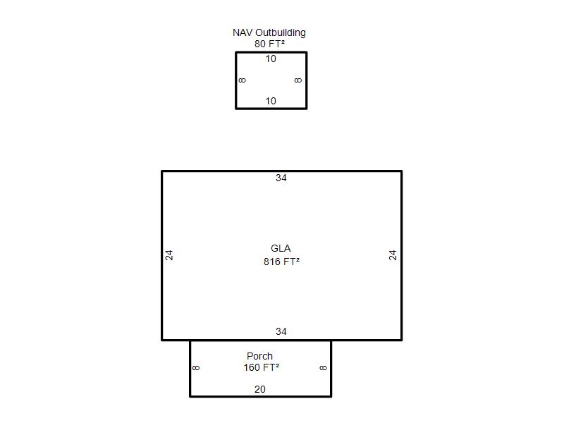
| Bldg # | Vacant/Improved Land | Bldg Description | Year Built | SqFt | # Stories | |
|
1 |
Improved |
Ranch 1 Story |
1948 |
816 |
1 Stories |
|