|
|
|
| Larry Stein Oklahoma County Assessor (405) 713-1200 - Public Access System |
|
|
|
|
|
|
| Real Property Display - Screen Produced 4/10/2026 10:14:07 AM | ||||
|---|---|---|---|---|
| Account: R049481920 | Type: Residential | Location: |
825 NW 40TH ST |
|
| Building Name/Occupant: |
|
OKLAHOMA CITY |
||
| Owner Name 1: | JBMC FAMILY TRUST |
Parcel PIN#: |
2663-04-948-1920 |
|
| Owner Name 2: | 1/4 section #: |
2663 |
||
| Owner Name 3: | Parent Acct: |
|
||
| Billing Address: | 825 NW 40TH ST | Tax District: |
|
|
| City, State, Zip | OKLAHOMA CITY, OK 73118 | School System: |
Oklahoma City #89 |
|
|
Country: (If noted) |
UNITED STATES |
Land Size: |
0.2135 Acres |
|
|
Land Value: 105,555 |
|
|||
|
Sect 16-T12N-R3W Qtr SW |
CROWN HEIGHTS ADD
Block
004
Lot
036
|
|||
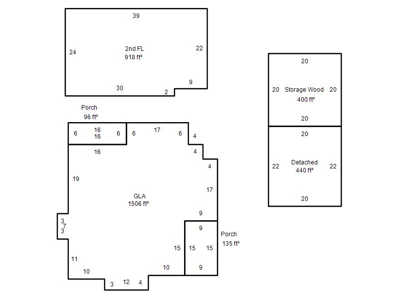
| Full Legal Description: CROWN HEIGHTS ADD 004 036 |
| Photo & Sketch (if available) | Comp Sales (ordered by relevancy) |
|
||||||||||||||||||
|
||||||||||||||||||||
| Value History (*The County Treasurer 405-713-1300 posts & collects actual tax amounts. Contact information HERE) | |||||||||||||
|---|---|---|---|---|---|---|---|---|---|---|---|---|---|
| Year | Market Value | Taxable Mkt Value | Gross Assessed | Exemption | Net Assessed | Millage | Est. Tax | Tax Savings | |||||
|
2026 |
500,000 |
500,000 |
55,000 |
1,000 |
54,000 |
122.90 |
$6,637 |
$123 |
|||||
|
2025 |
483,500 |
352,168 |
38,738 |
1,000 |
37,738 |
122.90 |
$4,638 |
$1,898 |
|||||
|
2024 |
478,500 |
341,911 |
37,609 |
1,000 |
36,609 |
123.89 |
$4,536 |
$1,985 |
|||||
|
2023 |
423,000 |
331,953 |
36,514 |
1,000 |
35,514 |
122.82 |
$4,362 |
$1,353 |
|||||
|
2022 |
388,000 |
322,285 |
35,450 |
1,000 |
34,450 |
117.63 |
$4,053 |
$968 |
|||||
| Property Account Status/Adjustments/Exemptions | ||
|---|---|---|
| Account # | Exemption Description | Amount |
|
R049481920 |
Homestead |
1,000 |
| Property Deed Transaction History (Recorded in the County Clerk's Office) | |||||||
|---|---|---|---|---|---|---|---|
| Date | Type | Book | Page | Price | Grantor | Grantee | |
|
2/28/2025 |
|
Deeds |
$470,000 |
MCGUIGAN PATRICK B & PAMELA E |
JBMC FAMILY TRUST |
||
|
8/13/1990 |
|
Historical |
$130,000 |
STRUBY ELIZABETH J |
MCGUIGAN PATRICK B & PAMELA E |
||
|
11/11/1911 |
|
Historical |
$0 |
|
STRUBY ELIZABETH J |
||
| Last Mailed Notice of Value (N.O.V.) Information/History | ||||||||
|---|---|---|---|---|---|---|---|---|
| Year | Date | Market Value | Taxable Market Value | Gross Assessed | Exemption | Net Assessed | ||
|
2026 |
02/23/2026 |
500,000 |
500,000 |
55,000 |
1,000 |
54,000 |
||
|
2025 |
02/14/2025 |
483,500 |
352,168 |
38,738 |
1,000 |
37,738 |
||
|
2025 |
03/28/2025 |
483,500 |
352,168 |
38,738 |
1,000 |
37,738 |
||
|
2024 |
02/13/2024 |
478,500 |
341,911 |
37,609 |
1,000 |
36,609 |
||
|
2023 |
02/14/2023 |
423,000 |
331,953 |
36,514 |
1,000 |
35,514 |
||
| Property Building Permit History | |||||||||||
|---|---|---|---|---|---|---|---|---|---|---|---|
| Issued | Permit # | Provided by | Bldg # | Description | Est Construction Cost | Status | |||||
| No Building Permit records returned. | |||||||||||
| Click button on building number to access detailed information: | ||||||
|---|---|---|---|---|---|---|
| Bldg # | Vacant/Improved Land | Bldg Description | Year Built | SqFt | # Stories | |
|
1 |
Improved |
2 Story |
1935 |
2,424 |
2 Stories |
|