|
|
|
| Larry Stein Oklahoma County Assessor (405) 713-1200 - Public Access System |
|
|
|
|
|
|
| Real Property Display - Screen Produced 4/4/2026 3:35:01 AM | ||||
|---|---|---|---|---|
| Account: R150957600 | Type: Residential | Location: |
309 S SAINT PAUL AVE |
|
| Building Name/Occupant: |
|
MIDWEST CITY |
||
| Owner Name 1: | RING CANDACE BROOKE |
Parcel PIN#: |
1401-15-095-7600 |
|
| Owner Name 2: | 1/4 section #: |
1401 |
||
| Owner Name 3: | Parent Acct: |
|
||
| Billing Address: | 309 S SAINT PAUL AVE | Tax District: |
|
|
| City, State, Zip | MIDWEST CITY, OK 73130 | School System: |
Mid-Del #52 |
|
|
Country: (If noted) |
Land Size: |
0.4132 Acres |
||
|
Land Value: 16,200 |
|
|||
|
Sect 1-T11N-R2W Qtr NE |
KANALY EAST RENO AVE
Block
004
Lot
009
|
|||
| Full Legal Description: KANALY EAST RENO AVE 004 009 |
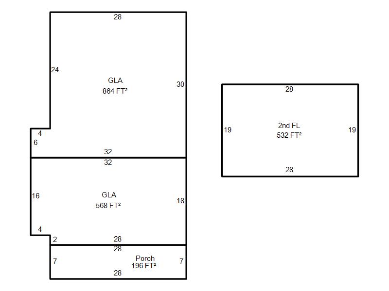
| Photo & Sketch (if available) | Comp Sales (ordered by relevancy) |
|
||||||||||||||||||
|
||||||||||||||||||||
| Value History (*The County Treasurer 405-713-1300 posts & collects actual tax amounts. Contact information HERE) | |||||||||||||
|---|---|---|---|---|---|---|---|---|---|---|---|---|---|
| Year | Market Value | Taxable Mkt Value | Gross Assessed | Exemption | Net Assessed | Millage | Est. Tax | Tax Savings | |||||
|
2026 |
166,000 |
166,000 |
18,260 |
1,000 |
17,260 |
119.58 |
$2,064 |
$120 |
|||||
|
2025 |
173,000 |
172,926 |
19,021 |
1,000 |
18,021 |
119.58 |
$2,155 |
$121 |
|||||
|
2024 |
172,000 |
167,890 |
18,467 |
1,000 |
17,467 |
122.51 |
$2,140 |
$178 |
|||||
|
2023 |
163,000 |
163,000 |
17,930 |
1,000 |
16,930 |
117.71 |
$1,993 |
$118 |
|||||
|
2022 |
145,500 |
126,759 |
13,942 |
0 |
13,942 |
116.64 |
$1,626 |
$240 |
|||||
| Property Account Status/Adjustments/Exemptions | ||
|---|---|---|
| Account # | Exemption Description | Amount |
|
R150957600 |
3% Cap Homestead |
0 |
|
R150957600 |
Homestead |
1,000 |
| Property Deed Transaction History (Recorded in the County Clerk's Office) | ||||||||||
|---|---|---|---|---|---|---|---|---|---|---|
| Date | Type | Book | Page | Price | Grantor | Grantee | ||||
|
7/22/2022 |
|
Deeds |
$160,000 |
JACKSON CRAIG |
RING CANDACE BROOKE |
|||||
|
3/31/2008 |
|
Deeds |
$0 |
JACKSON CRAIG & SHAUNA M |
JACKSON CRAIG |
|||||
|
11/17/2003 |
|
Deeds |
$76,500 |
POINTON WILLIAM P & MARY G |
JACKSON CRAIG |
|||||
|
7/26/2002 |
|
Deeds |
$0 |
POINTON WILLIAM P & MARY GARDNER |
POINTON WILLIAM P & MARY G |
|||||
|
2/19/2002 |
|
Deeds |
$3,500 |
BUHS DEBRA K |
POINTON WILLIAM P & MARY GARDNER |
|||||
| Last Mailed Notice of Value (N.O.V.) Information/History | ||||||||
|---|---|---|---|---|---|---|---|---|
| Year | Date | Market Value | Taxable Market Value | Gross Assessed | Exemption | Net Assessed | ||
|
2025 |
01/31/2025 |
173,000 |
172,926 |
19,021 |
1,000 |
18,021 |
||
|
2024 |
01/22/2024 |
172,000 |
167,890 |
18,467 |
1,000 |
17,467 |
||
|
2023 |
01/23/2023 |
163,000 |
163,000 |
17,930 |
1,000 |
16,930 |
||
|
2022 |
02/22/2022 |
145,500 |
126,759 |
13,942 |
0 |
13,942 |
||
|
2021 |
02/24/2021 |
121,500 |
120,723 |
13,279 |
0 |
13,279 |
||
| Property Building Permit History | ||||||
|---|---|---|---|---|---|---|
| Issued | Permit # | Provided by | Bldg # | Description | Est Construction Cost | Status |
|
5/20/1998 |
10247493 |
MIDWEST CITY |
1 |
Add On |
7,000 |
Inactive |
| Click button on building number to access detailed information: | ||||||
|---|---|---|---|---|---|---|
| Bldg # | Vacant/Improved Land | Bldg Description | Year Built | SqFt | # Stories | |
|
1 |
Improved |
1½ Story Fin |
1951 |
1,964 |
1.5 Stories |
|