|
|
|
| Larry Stein Oklahoma County Assessor (405) 713-1200 - Public Access System |
|
|
|
|
|
|
| Real Property Display - Screen Produced 4/12/2026 8:17:24 PM | ||||
|---|---|---|---|---|
| Account: R045001728 | Type: Residential | Location: |
1601 NW 21ST ST |
|
| Building Name/Occupant: |
|
OKLAHOMA CITY |
||
| Owner Name 1: | SPARKS HARVEY L |
Parcel PIN#: |
2713-04-500-1728 |
|
| Owner Name 2: | SPARKS JENIFER | 1/4 section #: |
2713 |
|
| Owner Name 3: | Parent Acct: |
|
||
| Billing Address: | 1601 NW 21ST ST | Tax District: |
|
|
| City, State, Zip | OKLAHOMA CITY, OK 73106 | School System: |
Oklahoma City #89 |
|
|
Country: (If noted) |
Land Size: |
0.1607 Acres |
||
|
Land Value: 38,850 |
|
|||
|
Sect 29-T12N-R3W Qtr NE |
UNIVERSITY ADDITION
Block
017
Lot
000
|
|||
| Full Legal Description: UNIVERSITY ADDITION 017 000 LOTS 17 & 18 |
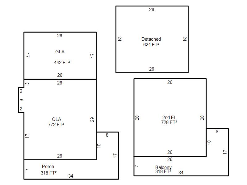
| Photo & Sketch (if available) | Comp Sales (ordered by relevancy) |
|
||||||||||||||||||
|
||||||||||||||||||||
| Value History (*The County Treasurer 405-713-1300 posts & collects actual tax amounts. Contact information HERE) | |||||||||||||
|---|---|---|---|---|---|---|---|---|---|---|---|---|---|
| Year | Market Value | Taxable Mkt Value | Gross Assessed | Exemption | Net Assessed | Millage | Est. Tax | Tax Savings | |||||
|
2026 |
331,500 |
331,500 |
36,465 |
0 |
36,465 |
122.90 |
$4,482 |
$0 |
|||||
|
2025 |
332,500 |
332,500 |
36,575 |
0 |
36,575 |
122.90 |
$4,495 |
$0 |
|||||
|
2024 |
328,500 |
318,150 |
34,996 |
0 |
34,996 |
123.89 |
$4,336 |
$141 |
|||||
|
2023 |
303,000 |
303,000 |
33,330 |
0 |
33,330 |
122.82 |
$4,094 |
$0 |
|||||
|
2022 |
299,500 |
247,244 |
27,196 |
0 |
27,196 |
117.63 |
$3,199 |
$676 |
|||||
| Property Account Status/Adjustments/Exemptions | ||
|---|---|---|
| Account # | Exemption Description | Amount |
|
R045001728 |
5% Capped Account |
0 |
| Property Deed Transaction History (Recorded in the County Clerk's Office) | ||||||||||
|---|---|---|---|---|---|---|---|---|---|---|
| Date | Type | Book | Page | Price | Grantor | Grantee | ||||
|
12/8/2022 |
|
Deeds |
$300,000 |
SHIRE INVESTMENTS LLC |
SPARKS HARVEY L |
|||||
|
2/6/2019 |
|
Hmstd Off & |
$0 |
SQUARE CURVE VENTURES LLC |
SHIRE INVESTMENTS LLC |
|||||
|
11/9/2018 |
|
Hmstd Off & |
$0 |
BRICK & MORTAR INVESTMENTS LLC |
SQUARE CURVE VENTURES LLC |
|||||
|
6/30/2015 |
|
Deeds |
$120,000 |
RJO PROPERTIES LLC |
BRICK & MORTAR INVESTMENTS LLC |
|||||
|
11/18/2014 |
|
Deeds |
$75,000 |
BRICK & MORTAR INVESTMENTS LLC |
RJO PROPERTIES LLC |
|||||
| Last Mailed Notice of Value (N.O.V.) Information/History | ||||||||
|---|---|---|---|---|---|---|---|---|
| Year | Date | Market Value | Taxable Market Value | Gross Assessed | Exemption | Net Assessed | ||
|
2025 |
02/14/2025 |
332,500 |
332,500 |
36,575 |
0 |
36,575 |
||
|
2024 |
02/13/2024 |
328,500 |
318,150 |
34,996 |
0 |
34,996 |
||
|
2023 |
02/14/2023 |
303,000 |
303,000 |
33,330 |
0 |
33,330 |
||
|
2022 |
03/15/2022 |
299,500 |
247,244 |
27,196 |
0 |
27,196 |
||
|
2021 |
03/19/2021 |
276,500 |
235,471 |
25,901 |
0 |
25,901 |
||
| Property Building Permit History | |||||||||||
|---|---|---|---|---|---|---|---|---|---|---|---|
| Issued | Permit # | Provided by | Bldg # | Description | Est Construction Cost | Status | |||||
| No Building Permit records returned. | |||||||||||
| Click button on building number to access detailed information: | ||||||
|---|---|---|---|---|---|---|
| Bldg # | Vacant/Improved Land | Bldg Description | Year Built | SqFt | # Stories | |
|
1 |
Improved |
1½ Story Fin |
1915 |
1,942 |
1.5 Stories |
|