|
|
|
| Larry Stein Oklahoma County Assessor (405) 713-1200 - Public Access System |
|
|
|
|
|
|
| Real Property Display - Screen Produced 4/12/2026 4:13:19 PM | ||||
|---|---|---|---|---|
| Account: R063746540 | Type: Residential | Location: |
2409 NW 17TH ST |
|
| Building Name/Occupant: |
|
OKLAHOMA CITY |
||
| Owner Name 1: | KIRBY CHADWICK J |
Parcel PIN#: |
2717-06-374-6540 |
|
| Owner Name 2: | KIRBY ANNE M | 1/4 section #: |
2717 |
|
| Owner Name 3: | Parent Acct: |
|
||
| Billing Address: | 2409 NW 17TH ST | Tax District: |
|
|
| City, State, Zip | OKLAHOMA CITY, OK 73107-4001 | School System: |
Oklahoma City #89 |
|
|
Country: (If noted) |
Land Size: |
0.1722 Acres |
||
|
Land Value: 32,625 |
|
|||
|
Sect 30-T12N-R3W Qtr NE |
AURORA ADDITION
Block
016
Lot
004
|
|||
| Full Legal Description: AURORA ADDITION 016 004 W50FT |
| Photo & Sketch (if available) | Comp Sales (ordered by relevancy) |
|
||||||||||||||||||
|
||||||||||||||||||||
| Value History (*The County Treasurer 405-713-1300 posts & collects actual tax amounts. Contact information HERE) | |||||||||||||
|---|---|---|---|---|---|---|---|---|---|---|---|---|---|
| Year | Market Value | Taxable Mkt Value | Gross Assessed | Exemption | Net Assessed | Millage | Est. Tax | Tax Savings | |||||
|
2026 |
328,500 |
328,500 |
36,135 |
0 |
36,135 |
122.90 |
$4,441 |
$0 |
|||||
|
2025 |
333,500 |
333,500 |
36,685 |
0 |
36,685 |
122.90 |
$4,509 |
$0 |
|||||
|
2024 |
233,500 |
233,500 |
25,685 |
0 |
25,685 |
123.89 |
$3,182 |
$0 |
|||||
|
2023 |
221,500 |
156,342 |
17,196 |
0 |
17,196 |
122.82 |
$2,112 |
$880 |
|||||
|
2022 |
172,500 |
148,898 |
16,377 |
0 |
16,377 |
117.63 |
$1,927 |
$305 |
|||||
| Property Account Status/Adjustments/Exemptions | ||
|---|---|---|
| Account # | Exemption Description | Amount |
|
R063746540 |
5% Capped Account |
0 |
| Property Deed Transaction History (Recorded in the County Clerk's Office) | ||||||||||
|---|---|---|---|---|---|---|---|---|---|---|
| Date | Type | Book | Page | Price | Grantor | Grantee | ||||
|
9/25/2024 |
|
Deeds |
$360,000 |
HENDREN JAMES W & JANELLE C |
KIRBY CHADWICK J |
|||||
|
6/29/2023 |
|
Hmstd Off & |
$0 |
J THREE HOMES LLC |
HENDREN JAMES W & JANELLE C |
|||||
|
6/23/2023 |
|
Deeds |
$150,000 |
WURTH DAVID M |
J THREE HOMES LLC |
|||||
|
4/12/2007 |
|
Deeds |
$115,000 |
WURTH MICHELLE J TRS WURTH MICHELLE J REV TRUST |
WURTH DAVID M |
|||||
|
4/17/1997 |
|
Historical |
$0 |
WURTH MICHELLE J |
WURTH MICHELLE J TRS |
|||||
| Last Mailed Notice of Value (N.O.V.) Information/History | ||||||||
|---|---|---|---|---|---|---|---|---|
| Year | Date | Market Value | Taxable Market Value | Gross Assessed | Exemption | Net Assessed | ||
|
2025 |
02/14/2025 |
333,500 |
333,500 |
36,685 |
0 |
36,685 |
||
|
2024 |
02/13/2024 |
233,500 |
233,500 |
25,685 |
0 |
25,685 |
||
|
2023 |
02/14/2023 |
221,500 |
156,342 |
17,196 |
0 |
17,196 |
||
|
2022 |
03/15/2022 |
172,500 |
148,898 |
16,377 |
0 |
16,377 |
||
|
2021 |
03/19/2021 |
155,500 |
141,808 |
15,598 |
0 |
15,598 |
||
| Property Building Permit History | ||||||
|---|---|---|---|---|---|---|
| Issued | Permit # | Provided by | Bldg # | Description | Est Construction Cost | Status |
|
6/11/2024 |
|
|
1 |
Remodeled |
|
Inactive |
|
12/18/2023 |
BLDR-2023-07830 |
|
1 |
Main Dwellin |
5,000 |
Inactive |
| Click button on building number to access detailed information: | ||||||
|---|---|---|---|---|---|---|
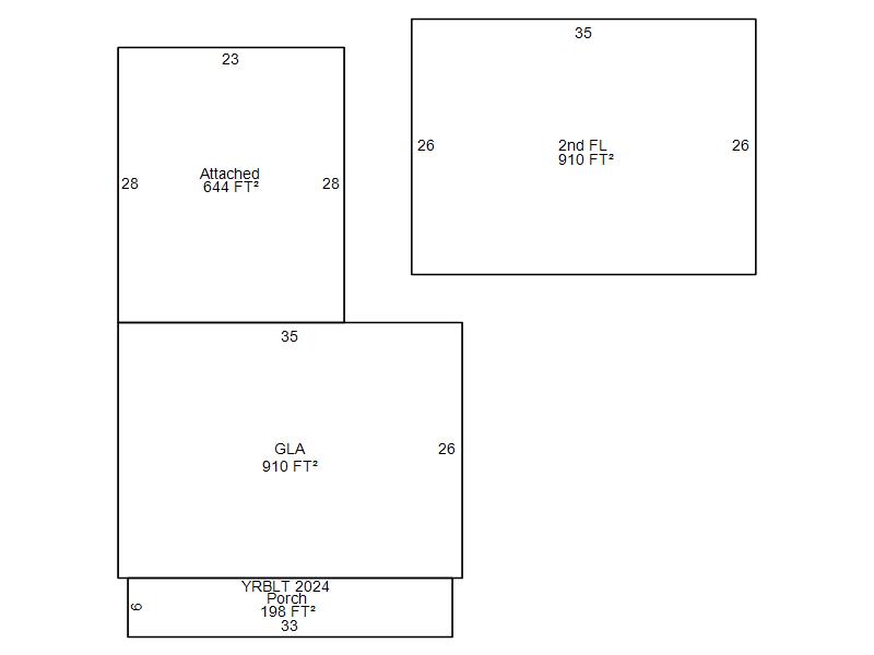
| Bldg # | Vacant/Improved Land | Bldg Description | Year Built | SqFt | # Stories | |
|
1 |
Improved |
2 Story |
1938 |
1,820 |
2 Stories |
|