|
|
|
| Larry Stein Oklahoma County Assessor (405) 713-1200 - Public Access System |
|
|
|
|
|
|
| Real Property Display - Screen Produced 4/12/2026 2:24:43 PM | ||||
|---|---|---|---|---|
| Account: R063343520 | Type: Residential | Location: |
2428 NW 13TH ST |
|
| Building Name/Occupant: |
|
OKLAHOMA CITY |
||
| Owner Name 1: | PAQUIN DONALD ALEXANDER & MICHELLE |
Parcel PIN#: |
2718-06-334-3520 |
|
| Owner Name 2: | 1/4 section #: |
2718 |
||
| Owner Name 3: | Parent Acct: |
|
||
| Billing Address: | 2428 NW 13TH ST | Tax District: |
|
|
| City, State, Zip | OKLAHOMA CITY, OK 73107-4908 | School System: |
Oklahoma City #89 |
|
|
Country: (If noted) |
Land Size: |
0.1607 Acres |
||
|
Land Value: 31,500 |
|
|||
|
Sect 30-T12N-R3W Qtr SE |
YOUNGS ENGLEWOOD ADD
Block
016
Lot
000
|
|||
| Full Legal Description: YOUNGS ENGLEWOOD ADD 016 000 LOTS 31 & 32 |
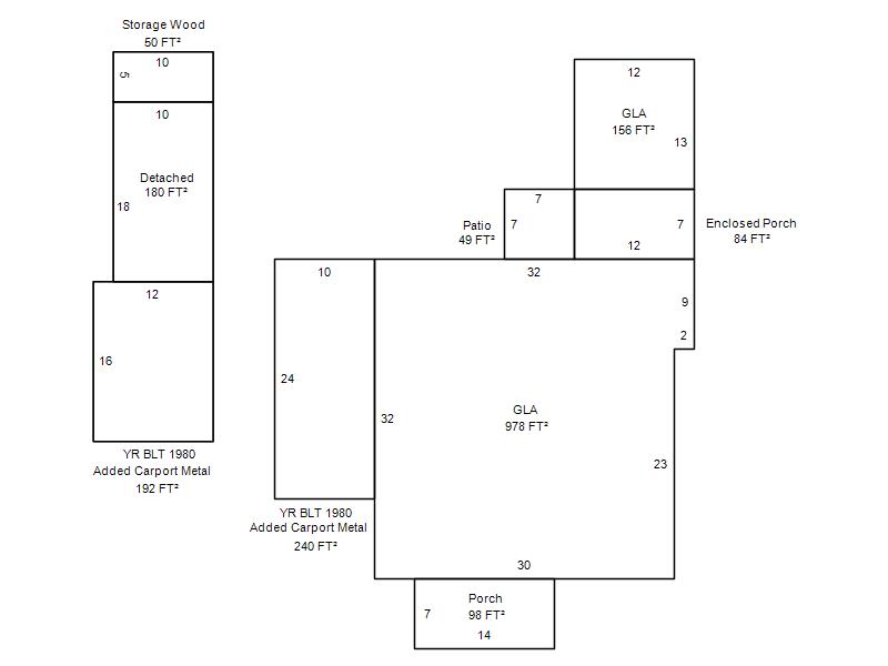
| Photo & Sketch (if available) | Comp Sales (ordered by relevancy) |
|
||||||||||||||||||
|
||||||||||||||||||||
| Value History (*The County Treasurer 405-713-1300 posts & collects actual tax amounts. Contact information HERE) | |||||||||||||
|---|---|---|---|---|---|---|---|---|---|---|---|---|---|
| Year | Market Value | Taxable Mkt Value | Gross Assessed | Exemption | Net Assessed | Millage | Est. Tax | Tax Savings | |||||
|
2026 |
211,500 |
211,500 |
23,265 |
0 |
23,265 |
122.90 |
$2,859 |
$0 |
|||||
|
2025 |
215,000 |
173,071 |
19,037 |
0 |
19,037 |
122.90 |
$2,340 |
$567 |
|||||
|
2024 |
210,500 |
164,830 |
18,130 |
0 |
18,130 |
123.89 |
$2,246 |
$622 |
|||||
|
2023 |
203,000 |
156,981 |
17,267 |
0 |
17,267 |
122.82 |
$2,121 |
$622 |
|||||
|
2022 |
167,500 |
149,506 |
16,444 |
0 |
16,444 |
117.63 |
$1,935 |
$233 |
|||||
| Property Account Status/Adjustments/Exemptions | ||||||
|---|---|---|---|---|---|---|
| Account # | Exemption Description | Amount | ||||
| No adjustment/exemption records returned. | ||||||
| Property Deed Transaction History (Recorded in the County Clerk's Office) | ||||||||||
|---|---|---|---|---|---|---|---|---|---|---|
| Date | Type | Book | Page | Price | Grantor | Grantee | ||||
|
3/4/2025 |
|
Deeds |
$205,000 |
MARSHALL STEVEN GRANT |
PAQUIN DONALD ALEXANDER & MICHELLE |
|||||
|
9/28/2018 |
|
Hmstd Off & |
$0 |
NIEMEYER JOHN C |
MARSHALL STEVEN GRANT |
|||||
|
4/27/2017 |
|
Deeds |
$130,000 |
3CP OKC LLC |
MARSHALL STEVEN GRANT |
|||||
|
1/13/2017 |
|
Deeds |
$74,000 |
SAVAGE GENE S |
3CP OKC LLC |
|||||
|
2/9/2009 |
|
Hmstd Off & |
$0 |
COVEY MARGRETT |
SAVAGE GENE S |
|||||
| Last Mailed Notice of Value (N.O.V.) Information/History | ||||||||
|---|---|---|---|---|---|---|---|---|
| Year | Date | Market Value | Taxable Market Value | Gross Assessed | Exemption | Net Assessed | ||
|
2026 |
02/23/2026 |
211,500 |
211,500 |
23,265 |
0 |
23,265 |
||
|
2025 |
02/14/2025 |
215,000 |
173,071 |
19,037 |
0 |
19,037 |
||
|
2025 |
03/28/2025 |
215,000 |
173,071 |
19,037 |
0 |
19,037 |
||
|
2024 |
02/13/2024 |
210,500 |
164,830 |
18,130 |
0 |
18,130 |
||
|
2023 |
02/14/2023 |
203,000 |
156,981 |
17,267 |
0 |
17,267 |
||
| Property Building Permit History | |||||||||||
|---|---|---|---|---|---|---|---|---|---|---|---|
| Issued | Permit # | Provided by | Bldg # | Description | Est Construction Cost | Status | |||||
| No Building Permit records returned. | |||||||||||
| Click button on building number to access detailed information: | ||||||
|---|---|---|---|---|---|---|
| Bldg # | Vacant/Improved Land | Bldg Description | Year Built | SqFt | # Stories | |
|
1 |
Improved |
Ranch 1 Story |
1926 |
1,134 |
1 Stories |
|