|
|
|
| Larry Stein Oklahoma County Assessor (405) 713-1200 - Public Access System |
|
|
|
|
|
|
| Real Property Display - Screen Produced 4/12/2026 2:24:32 PM | ||||
|---|---|---|---|---|
| Account: R063345210 | Type: Residential | Location: |
2337 NW 13TH ST |
|
| Building Name/Occupant: |
|
OKLAHOMA CITY |
||
| Owner Name 1: | CANNON HELEN MARIE |
Parcel PIN#: |
2718-06-334-5210 |
|
| Owner Name 2: | 1/4 section #: |
2718 |
||
| Owner Name 3: | Parent Acct: |
|
||
| Billing Address: | 4009 APPLE VALLEY DR | Tax District: |
|
|
| City, State, Zip | OKLAHOMA CITY, OK 73120 | School System: |
Oklahoma City #89 |
|
|
Country: (If noted) |
Land Size: |
0.1607 Acres |
||
|
Land Value: 31,500 |
|
|||
|
Sect 30-T12N-R3W Qtr SE |
YOUNGS ENGLEWOOD ADD
Block
024
Lot
000
|
|||
| Full Legal Description: YOUNGS ENGLEWOOD ADD 024 000 LOTS 19 & 20 |
| Photo & Sketch (if available) | Comp Sales (ordered by relevancy) |
|
||||||||||||||||||
|
||||||||||||||||||||
| Value History (*The County Treasurer 405-713-1300 posts & collects actual tax amounts. Contact information HERE) | |||||||||||||
|---|---|---|---|---|---|---|---|---|---|---|---|---|---|
| Year | Market Value | Taxable Mkt Value | Gross Assessed | Exemption | Net Assessed | Millage | Est. Tax | Tax Savings | |||||
|
2026 |
220,500 |
220,500 |
24,255 |
1,000 |
23,255 |
122.90 |
$2,858 |
$123 |
|||||
|
2025 |
224,000 |
163,490 |
17,983 |
0 |
17,983 |
122.90 |
$2,210 |
$818 |
|||||
|
2024 |
218,000 |
155,705 |
17,127 |
0 |
17,127 |
123.89 |
$2,122 |
$849 |
|||||
|
2023 |
211,500 |
148,291 |
16,311 |
0 |
16,311 |
122.82 |
$2,003 |
$854 |
|||||
|
2022 |
170,500 |
141,230 |
15,534 |
0 |
15,534 |
117.63 |
$1,827 |
$379 |
|||||
| Property Account Status/Adjustments/Exemptions | ||
|---|---|---|
| Account # | Exemption Description | Amount |
|
R063345210 |
Freeze Senior Valuation |
0 |
|
R063345210 |
Homestead |
1,000 |
| Property Deed Transaction History (Recorded in the County Clerk's Office) | ||||||||||
|---|---|---|---|---|---|---|---|---|---|---|
| Date | Type | Book | Page | Price | Grantor | Grantee | ||||
|
2/28/2025 |
|
Deeds |
$213,500 |
HEAPS ANNA A |
CANNON HELEN MARIE |
|||||
|
12/18/2019 |
|
Hmstd Off & |
$0 |
HEAPS ANNA A |
HEAPS ANNA A |
|||||
|
8/9/2017 |
|
Deeds |
$115,000 |
GUSCHKE ASHLEY |
HEAPS ANNA A |
|||||
|
8/5/2003 |
|
Deeds |
$71,500 |
PHILLIPS SAM R & PILAR G |
GUSCHKE ASHLEY |
|||||
|
1/14/2003 |
|
Deeds |
$0 |
TURNER STACY GEORGE TURNER STACY S II |
TURNER STACY GEORGE |
|||||
| Last Mailed Notice of Value (N.O.V.) Information/History | ||||||||
|---|---|---|---|---|---|---|---|---|
| Year | Date | Market Value | Taxable Market Value | Gross Assessed | Exemption | Net Assessed | ||
|
2026 |
02/23/2026 |
220,500 |
220,500 |
24,255 |
1,000 |
23,255 |
||
|
2025 |
02/14/2025 |
224,000 |
163,490 |
17,983 |
0 |
17,983 |
||
|
2025 |
03/28/2025 |
224,000 |
163,490 |
17,983 |
0 |
17,983 |
||
|
2024 |
02/13/2024 |
218,000 |
155,705 |
17,127 |
0 |
17,127 |
||
|
2023 |
02/14/2023 |
211,500 |
148,291 |
16,311 |
0 |
16,311 |
||
| Property Building Permit History | |||||||||||
|---|---|---|---|---|---|---|---|---|---|---|---|
| Issued | Permit # | Provided by | Bldg # | Description | Est Construction Cost | Status | |||||
| No Building Permit records returned. | |||||||||||
| Click button on building number to access detailed information: | ||||||
|---|---|---|---|---|---|---|
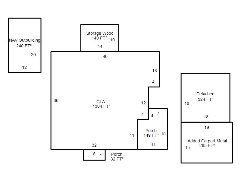
| Bldg # | Vacant/Improved Land | Bldg Description | Year Built | SqFt | # Stories | |
|
1 |
Improved |
Ranch 1 Story |
1930 |
1,304 |
1 Stories |
|