|
|
|
| Larry Stein Oklahoma County Assessor (405) 713-1200 - Public Access System |
|
|
|
|
|
|
| Real Property Display - Screen Produced 4/12/2026 2:24:44 PM | ||||
|---|---|---|---|---|
| Account: R063345010 | Type: Residential | Location: |
2240 NW 14TH ST |
|
| Building Name/Occupant: |
|
OKLAHOMA CITY |
||
| Owner Name 1: | APC HOMES II LLC |
Parcel PIN#: |
2718-06-334-5010 |
|
| Owner Name 2: | 1/4 section #: |
2718 |
||
| Owner Name 3: | Parent Acct: |
|
||
| Billing Address: | 315 W 2ND ST | Tax District: |
|
|
| City, State, Zip | EDMOND, OK 73003-5415 | School System: |
Oklahoma City #89 |
|
|
Country: (If noted) |
Land Size: |
0.1607 Acres |
||
|
Land Value: 31,500 |
|
|||
|
Sect 30-T12N-R3W Qtr SE |
YOUNGS ENGLEWOOD ADD
Block
023
Lot
000
|
|||
| Full Legal Description: YOUNGS ENGLEWOOD ADD 023 000 LOTS 27 & 28 |
| Photo & Sketch (if available) | Comp Sales (ordered by relevancy) |
|
||||||||||||||||||
|
||||||||||||||||||||
| Value History (*The County Treasurer 405-713-1300 posts & collects actual tax amounts. Contact information HERE) | |||||||||||||
|---|---|---|---|---|---|---|---|---|---|---|---|---|---|
| Year | Market Value | Taxable Mkt Value | Gross Assessed | Exemption | Net Assessed | Millage | Est. Tax | Tax Savings | |||||
|
2026 |
197,500 |
197,500 |
21,725 |
0 |
21,725 |
122.90 |
$2,670 |
$0 |
|||||
|
2025 |
191,500 |
139,821 |
15,379 |
0 |
15,379 |
122.90 |
$1,890 |
$699 |
|||||
|
2024 |
187,000 |
133,163 |
14,647 |
0 |
14,647 |
123.89 |
$1,815 |
$734 |
|||||
|
2023 |
187,500 |
126,822 |
13,950 |
0 |
13,950 |
122.82 |
$1,713 |
$820 |
|||||
|
2022 |
149,500 |
120,783 |
13,285 |
0 |
13,285 |
117.63 |
$1,563 |
$372 |
|||||
| Property Account Status/Adjustments/Exemptions | ||||||
|---|---|---|---|---|---|---|
| Account # | Exemption Description | Amount | ||||
| No adjustment/exemption records returned. | ||||||
| Property Deed Transaction History (Recorded in the County Clerk's Office) | ||||||||||
|---|---|---|---|---|---|---|---|---|---|---|
| Date | Type | Book | Page | Price | Grantor | Grantee | ||||
|
6/11/2025 |
|
Hmstd Off & |
$0 |
MINERA FRANK & ANITA |
MINERA BARRIOS FRANK A |
|||||
|
6/11/2025 |
|
Deeds |
$265,000 |
MINERA BARRIOS FRANK A |
APC HOMES II LLC |
|||||
|
3/22/2024 |
|
Hmstd Off & |
$0 |
MINERA ANITA |
BARRIOS FRANK A MINERA |
|||||
|
8/28/2002 |
|
Deeds |
$0 |
MINERA ANITA IRIS |
MINERA ANITA |
|||||
|
6/14/2002 |
|
Deeds |
$50,000 |
KENNEDY PLACE MANAGEMENT INC |
MINERA ANITA IRIS |
|||||
| Last Mailed Notice of Value (N.O.V.) Information/History | ||||||||
|---|---|---|---|---|---|---|---|---|
| Year | Date | Market Value | Taxable Market Value | Gross Assessed | Exemption | Net Assessed | ||
|
2026 |
02/23/2026 |
197,500 |
197,500 |
21,725 |
0 |
21,725 |
||
|
2025 |
02/14/2025 |
191,500 |
139,821 |
15,379 |
0 |
15,379 |
||
|
2024 |
02/13/2024 |
187,000 |
133,163 |
14,647 |
0 |
14,647 |
||
|
2023 |
02/14/2023 |
187,500 |
126,822 |
13,950 |
0 |
13,950 |
||
|
2022 |
03/15/2022 |
149,500 |
120,783 |
13,285 |
0 |
13,285 |
||
| Property Building Permit History | ||||||
|---|---|---|---|---|---|---|
| Issued | Permit # | Provided by | Bldg # | Description | Est Construction Cost | Status |
|
6/29/2000 |
10193792 |
OKLAHOMA CITY |
1 |
Other |
2,600 |
Inactive |
|
5/29/1998 |
10193793 |
OKLAHOMA CITY |
1 |
Remodeled |
1,308 |
Inactive |
| Click button on building number to access detailed information: | ||||||
|---|---|---|---|---|---|---|
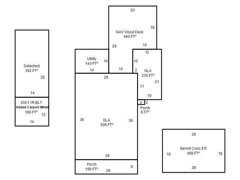
| Bldg # | Vacant/Improved Land | Bldg Description | Year Built | SqFt | # Stories | |
|
1 |
Improved |
Ranch 1 Story |
1930 |
1,166 |
1 Stories |
|