|
|
|
| Larry Stein Oklahoma County Assessor (405) 713-1200 - Public Access System |
|
|
|
|
|
|
| Real Property Display - Screen Produced 4/12/2026 2:29:51 PM | ||||
|---|---|---|---|---|
| Account: R063583350 | Type: Residential | Location: |
2732 NW 22ND ST |
|
| Building Name/Occupant: |
|
OKLAHOMA CITY |
||
| Owner Name 1: | BLOSSER CHERYL SUE TRS |
Parcel PIN#: |
2720-06-358-3350 |
|
| Owner Name 2: | BLOSSER FAMILY LIV TRUST | 1/4 section #: |
2720 |
|
| Owner Name 3: | Parent Acct: |
|
||
| Billing Address: | 2732 NW 22ND ST | Tax District: |
|
|
| City, State, Zip | OKLAHOMA CITY, OK 73107 | School System: |
Oklahoma City #89 |
|
|
Country: (If noted) |
UNITED STATES |
Land Size: |
0.1722 Acres |
|
|
Land Value: 35,250 |
|
|||
|
Sect 30-T12N-R3W Qtr NW |
CRESTWOOD ADDITION
Block
004
Lot
000
|
|||
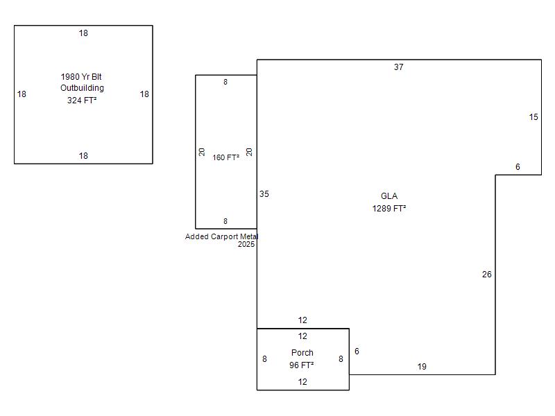
| Full Legal Description: CRESTWOOD ADDITION 004 000 LOTS 19 & 20 |
| Photo & Sketch (if available) | Comp Sales (ordered by relevancy) |
|
||||||||||||||||||
|
||||||||||||||||||||
| Value History (*The County Treasurer 405-713-1300 posts & collects actual tax amounts. Contact information HERE) | |||||||||||||
|---|---|---|---|---|---|---|---|---|---|---|---|---|---|
| Year | Market Value | Taxable Mkt Value | Gross Assessed | Exemption | Net Assessed | Millage | Est. Tax | Tax Savings | |||||
|
2026 |
277,500 |
277,500 |
30,525 |
1,000 |
29,525 |
122.90 |
$3,629 |
$123 |
|||||
|
2025 |
286,500 |
286,500 |
31,515 |
1,000 |
30,515 |
122.90 |
$3,750 |
$123 |
|||||
|
2024 |
280,500 |
280,500 |
30,855 |
0 |
30,855 |
123.89 |
$3,823 |
$0 |
|||||
|
2023 |
43,425 |
43,425 |
4,776 |
0 |
4,776 |
122.82 |
$587 |
$0 |
|||||
|
2022 |
130,000 |
130,000 |
14,300 |
1,000 |
13,300 |
117.63 |
$1,564 |
$118 |
|||||
| Property Account Status/Adjustments/Exemptions | ||
|---|---|---|
| Account # | Exemption Description | Amount |
|
R063583350 |
3% Cap Homestead |
0 |
|
R063583350 |
Homestead |
1,000 |
| Property Deed Transaction History (Recorded in the County Clerk's Office) | ||||||||||
|---|---|---|---|---|---|---|---|---|---|---|
| Date | Type | Book | Page | Price | Grantor | Grantee | ||||
|
8/16/2023 |
|
Deeds |
$0 |
BLOSSER CHERYL |
BLOSSER CHERYL SUE TRS |
|||||
|
4/17/2023 |
|
Deeds |
$235,000 |
MULLINS PROPERTIES I LLC |
BLOSSER CHERYL |
|||||
|
6/3/2022 |
|
Deeds |
$133,000 |
GEORGE THEODORE |
MULLINS PROPERTIES I LLC |
|||||
|
3/20/2019 |
|
Deeds |
$133,500 |
TEDFORD MICHELLE SUC TRS |
GEORGE THEODORE |
|||||
|
12/5/2018 |
|
Hmstd Off & |
$0 |
TEDFORD R W & PAULINE CO TRS |
TEDFORD MICHELLE SUC TRS |
|||||
| Last Mailed Notice of Value (N.O.V.) Information/History | ||||||||
|---|---|---|---|---|---|---|---|---|
| Year | Date | Market Value | Taxable Market Value | Gross Assessed | Exemption | Net Assessed | ||
|
2025 |
02/14/2025 |
286,500 |
286,500 |
31,515 |
1,000 |
30,515 |
||
|
2024 |
02/13/2024 |
280,500 |
280,500 |
30,855 |
0 |
30,855 |
||
|
2022 |
03/15/2022 |
130,000 |
130,000 |
14,300 |
1,000 |
13,300 |
||
|
2020 |
03/10/2020 |
132,000 |
132,000 |
14,520 |
1,000 |
13,520 |
||
|
2019 |
04/02/2019 |
102,500 |
97,650 |
10,742 |
0 |
10,742 |
||
| Property Building Permit History | ||||||
|---|---|---|---|---|---|---|
| Issued | Permit # | Provided by | Bldg # | Description | Est Construction Cost | Status |
|
10/9/2025 |
BLDR-2025-05535 |
|
1 |
Carport |
2,850 |
Inactive |
|
12/20/2022 |
|
|
1 |
Remodeled |
|
Inactive |
|
12/31/2009 |
10393094 |
OKLAHOMA CITY |
1 |
Fire Remodel |
33,960 |
Inactive |
|
10/2/2009 |
10387735 |
OKLAHOMA CITY |
1 |
Fire Remodel |
7,000 |
Inactive |
|
8/19/2009 |
10385352 |
OKLAHOMA CITY |
1 |
Burn - Trip |
10,000 |
Inactive |
| Click button on building number to access detailed information: | ||||||
|---|---|---|---|---|---|---|
| Bldg # | Vacant/Improved Land | Bldg Description | Year Built | SqFt | # Stories | |
|
1 |
Improved |
Ranch 1 Story |
1930 |
1,289 |
1 Stories |
|