|
|
|
| Larry Stein Oklahoma County Assessor (405) 713-1200 - Public Access System |
|
|
|
|
|
|
| Real Property Display - Screen Produced 4/12/2026 2:24:43 PM | ||||
|---|---|---|---|---|
| Account: R064144570 | Type: Residential | Location: |
1513 N MILLER BLVD |
|
| Building Name/Occupant: |
|
OKLAHOMA CITY |
||
| Owner Name 1: | MILKOWSKI LINDSAY |
Parcel PIN#: |
2719-06-414-4570 |
|
| Owner Name 2: | MILKOWSKI CRAIG | 1/4 section #: |
2719 |
|
| Owner Name 3: | MILKOWSKI ELSIE | Parent Acct: |
|
|
| Billing Address: | 1513 N MILLER BLVD | Tax District: |
|
|
| City, State, Zip | OKLAHOMA CITY, OK 73107-4837 | School System: |
Oklahoma City #89 |
|
|
Country: (If noted) |
Land Size: |
0.1274 Acres |
||
|
Land Value: 24,143 |
|
|||
|
Sect 30-T12N-R3W Qtr SW |
MILLERS BOULEVARD
Block
016
Lot
002
|
|||
| Full Legal Description: MILLERS BOULEVARD 016 002 N37 1/2FT |
| Photo & Sketch (if available) | Comp Sales (ordered by relevancy) |
|
||||||||||||||||||
|
||||||||||||||||||||
| Value History (*The County Treasurer 405-713-1300 posts & collects actual tax amounts. Contact information HERE) | |||||||||||||
|---|---|---|---|---|---|---|---|---|---|---|---|---|---|
| Year | Market Value | Taxable Mkt Value | Gross Assessed | Exemption | Net Assessed | Millage | Est. Tax | Tax Savings | |||||
|
2026 |
267,000 |
267,000 |
29,370 |
0 |
29,370 |
122.90 |
$3,610 |
$0 |
|||||
|
2025 |
274,500 |
209,247 |
23,016 |
1,000 |
22,016 |
122.90 |
$2,706 |
$1,005 |
|||||
|
2024 |
269,500 |
203,153 |
22,345 |
1,000 |
21,345 |
123.89 |
$2,645 |
$1,028 |
|||||
|
2023 |
260,500 |
197,236 |
21,695 |
1,000 |
20,695 |
122.82 |
$2,542 |
$978 |
|||||
|
2022 |
218,500 |
191,492 |
21,063 |
1,000 |
20,063 |
117.63 |
$2,360 |
$467 |
|||||
| Property Account Status/Adjustments/Exemptions | ||||||
|---|---|---|---|---|---|---|
| Account # | Exemption Description | Amount | ||||
| No adjustment/exemption records returned. | ||||||
| Property Deed Transaction History (Recorded in the County Clerk's Office) | ||||||||||
|---|---|---|---|---|---|---|---|---|---|---|
| Date | Type | Book | Page | Price | Grantor | Grantee | ||||
|
11/7/2025 |
|
Deeds |
$235,000 |
REAVIS BRETT |
MILKOWSKI LINDSAY |
|||||
|
12/21/2018 |
|
Deeds |
$184,000 |
J & M RENOVATION CO LLC |
REAVIS BRETT |
|||||
|
5/18/2018 |
|
Deeds |
$101,500 |
BUCKMAN CHRISTOPHER E |
J & M RENOVATION CO LLC |
|||||
|
1/14/2011 |
|
Deeds |
$69,000 |
FRANK PEGGY L |
BUCKMAN CHRISTOPHER E |
|||||
|
7/3/1991 |
|
Historical |
$0 |
CHRISTENSON SCOTT C |
FRANK PEGGY L |
|||||
| Last Mailed Notice of Value (N.O.V.) Information/History | ||||||||
|---|---|---|---|---|---|---|---|---|
| Year | Date | Market Value | Taxable Market Value | Gross Assessed | Exemption | Net Assessed | ||
|
2026 |
02/23/2026 |
267,000 |
267,000 |
29,370 |
0 |
29,370 |
||
|
2025 |
02/14/2025 |
274,500 |
209,247 |
23,016 |
1,000 |
22,016 |
||
|
2024 |
02/13/2024 |
269,500 |
203,153 |
22,345 |
1,000 |
21,345 |
||
|
2023 |
02/14/2023 |
260,500 |
197,236 |
21,695 |
1,000 |
20,695 |
||
|
2022 |
03/15/2022 |
218,500 |
191,492 |
21,063 |
1,000 |
20,063 |
||
| Property Building Permit History | |||||||||||
|---|---|---|---|---|---|---|---|---|---|---|---|
| Issued | Permit # | Provided by | Bldg # | Description | Est Construction Cost | Status | |||||
| No Building Permit records returned. | |||||||||||
| Click button on building number to access detailed information: | ||||||
|---|---|---|---|---|---|---|
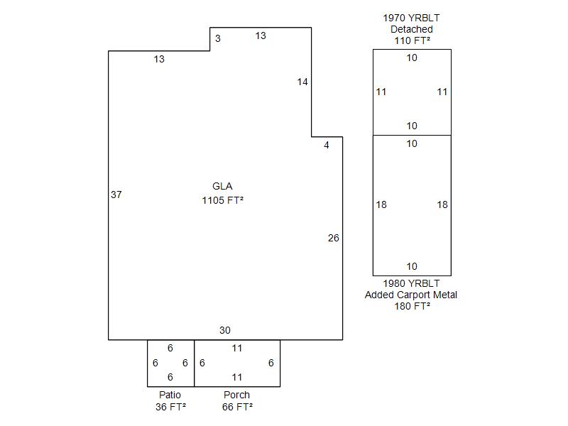
| Bldg # | Vacant/Improved Land | Bldg Description | Year Built | SqFt | # Stories | |
|
1 |
Improved |
Ranch 1 Story |
1928 |
1,105 |
1 Stories |
|