|
|
|
| Larry Stein Oklahoma County Assessor (405) 713-1200 - Public Access System |
|
|
|
|
|
|
| Real Property Display - Screen Produced 4/12/2026 4:13:18 PM | ||||
|---|---|---|---|---|
| Account: R063583820 | Type: Residential | Location: |
2517 NW 21ST ST |
|
| Building Name/Occupant: |
|
OKLAHOMA CITY |
||
| Owner Name 1: | JANACEK JUSTIN |
Parcel PIN#: |
2720-06-358-3820 |
|
| Owner Name 2: | 1/4 section #: |
2720 |
||
| Owner Name 3: | Parent Acct: |
|
||
| Billing Address: | 2517 NW 21ST ST | Tax District: |
|
|
| City, State, Zip | OKLAHOMA CITY, OK 73107-3201 | School System: |
Oklahoma City #89 |
|
|
Country: (If noted) |
Land Size: |
0.1607 Acres |
||
|
Land Value: 47,705 |
|
|||
|
Sect 30-T12N-R3W Qtr NW |
CRESTWOOD ADDITION
Block
005
Lot
000
|
|||
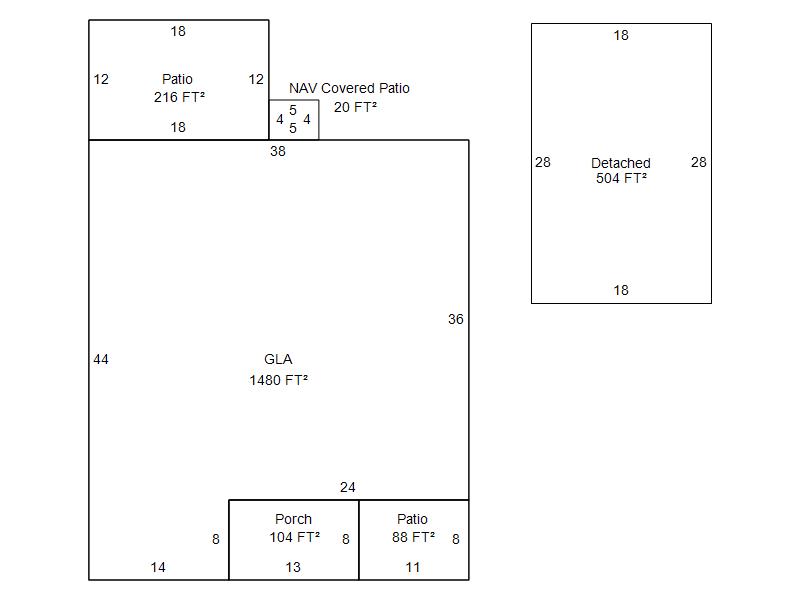
| Full Legal Description: CRESTWOOD ADDITION 005 000 LOTS 39 & 40 |
| Photo & Sketch (if available) | Comp Sales (ordered by relevancy) |
|
||||||||||||||||||
|
||||||||||||||||||||
| Value History (*The County Treasurer 405-713-1300 posts & collects actual tax amounts. Contact information HERE) | |||||||||||||
|---|---|---|---|---|---|---|---|---|---|---|---|---|---|
| Year | Market Value | Taxable Mkt Value | Gross Assessed | Exemption | Net Assessed | Millage | Est. Tax | Tax Savings | |||||
|
2026 |
266,500 |
266,500 |
29,315 |
1,000 |
28,315 |
122.90 |
$3,480 |
$123 |
|||||
|
2025 |
273,500 |
273,500 |
30,085 |
1,000 |
29,085 |
122.90 |
$3,575 |
$123 |
|||||
|
2024 |
268,000 |
268,000 |
29,480 |
0 |
29,480 |
123.89 |
$3,652 |
$0 |
|||||
|
2023 |
260,000 |
260,000 |
28,600 |
0 |
28,600 |
122.82 |
$3,513 |
$0 |
|||||
|
2022 |
252,000 |
252,000 |
27,720 |
0 |
27,720 |
117.63 |
$3,261 |
$0 |
|||||
| Property Account Status/Adjustments/Exemptions | ||
|---|---|---|
| Account # | Exemption Description | Amount |
|
R063583820 |
3% Cap Homestead |
0 |
|
R063583820 |
Homestead |
1,000 |
| Property Deed Transaction History (Recorded in the County Clerk's Office) | ||||||||||
|---|---|---|---|---|---|---|---|---|---|---|
| Date | Type | Book | Page | Price | Grantor | Grantee | ||||
|
5/3/2024 |
|
Deeds |
$306,000 |
GARRISON CALEB MATTHEW |
JANACEK JUSTIN |
|||||
|
9/10/2021 |
|
Deeds |
$255,000 |
MOODY CHRISTOPHER |
GARRISON CALEB MATTHEW |
|||||
|
2/21/2018 |
|
Deeds |
$190,000 |
OKLAHOMA HOME REBUILDERS LLC |
MOODY CHRISTOPHER |
|||||
|
9/15/2016 |
|
Deeds |
$73,000 |
MAI THONG Q |
OKLAHOMA HOME REBUILDERS LLC |
|||||
|
7/7/2005 |
|
Deeds |
$0 |
MAI THONG Q PHAM MONG |
MAI THONG Q |
|||||
| Last Mailed Notice of Value (N.O.V.) Information/History | ||||||||
|---|---|---|---|---|---|---|---|---|
| Year | Date | Market Value | Taxable Market Value | Gross Assessed | Exemption | Net Assessed | ||
|
2025 |
02/14/2025 |
273,500 |
273,500 |
30,085 |
0 |
30,085 |
||
|
2024 |
02/13/2024 |
268,000 |
268,000 |
29,480 |
0 |
29,480 |
||
|
2023 |
02/14/2023 |
260,000 |
260,000 |
28,600 |
0 |
28,600 |
||
|
2022 |
03/15/2022 |
252,000 |
252,000 |
27,720 |
0 |
27,720 |
||
|
2021 |
03/19/2021 |
223,000 |
216,300 |
23,793 |
0 |
23,793 |
||
| Property Building Permit History | ||||||
|---|---|---|---|---|---|---|
| Issued | Permit # | Provided by | Bldg # | Description | Est Construction Cost | Status |
|
5/26/2017 |
10494075 |
OKLAHOMA CITY |
1 |
Burn - Trip |
0 |
Inactive |
|
1/9/2017 |
10491518 |
OKLAHOMA CITY |
1 |
Fire Remodel |
25,000 |
Inactive |
| Click button on building number to access detailed information: | ||||||
|---|---|---|---|---|---|---|
| Bldg # | Vacant/Improved Land | Bldg Description | Year Built | SqFt | # Stories | |
|
1 |
Improved |
Ranch 1 Story |
1930 |
1,480 |
1 Stories |
|