|
|
|
| Larry Stein Oklahoma County Assessor (405) 713-1200 - Public Access System |
|
|
|
|
|
|
| Real Property Display - Screen Produced 4/12/2026 5:25:53 AM | ||||
|---|---|---|---|---|
| Account: R063586690 | Type: Residential | Location: |
2545 NW 18TH ST |
|
| Building Name/Occupant: |
|
OKLAHOMA CITY |
||
| Owner Name 1: | COMPASS KEY LLC |
Parcel PIN#: |
2720-06-358-6690 |
|
| Owner Name 2: | 1/4 section #: |
2720 |
||
| Owner Name 3: | Parent Acct: |
|
||
| Billing Address: | 2600 NW 15TH ST | Tax District: |
|
|
| City, State, Zip | OKLAHOMA CITY, OK 73107 | School System: |
Oklahoma City #89 |
|
|
Country: (If noted) |
Land Size: |
0.1722 Acres |
||
|
Land Value: 35,250 |
|
|||
|
Sect 30-T12N-R3W Qtr NW |
CRESTWOOD ADDITION
Block
014
Lot
000
|
|||
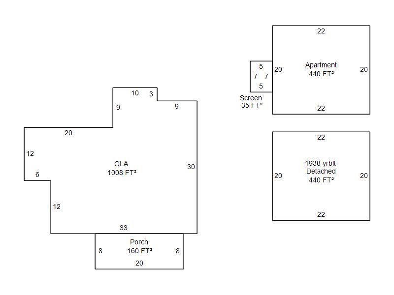
| Full Legal Description: CRESTWOOD ADDITION 014 000 LOTS 38 & 39 |
| Photo & Sketch (if available) | Comp Sales (ordered by relevancy) |
|
||||||||||||||||||
|
||||||||||||||||||||
| Value History (*The County Treasurer 405-713-1300 posts & collects actual tax amounts. Contact information HERE) | |||||||||||||
|---|---|---|---|---|---|---|---|---|---|---|---|---|---|
| Year | Market Value | Taxable Mkt Value | Gross Assessed | Exemption | Net Assessed | Millage | Est. Tax | Tax Savings | |||||
|
2026 |
183,500 |
183,500 |
20,185 |
0 |
20,185 |
122.90 |
$2,481 |
$0 |
|||||
|
2025 |
182,000 |
145,369 |
15,990 |
0 |
15,990 |
122.90 |
$1,965 |
$495 |
|||||
|
2024 |
179,000 |
138,447 |
15,228 |
1,000 |
14,228 |
123.89 |
$1,763 |
$677 |
|||||
|
2023 |
167,500 |
134,415 |
14,785 |
1,000 |
13,785 |
122.82 |
$1,693 |
$570 |
|||||
|
2022 |
130,500 |
130,500 |
14,355 |
1,000 |
13,355 |
117.63 |
$1,571 |
$118 |
|||||
| Property Account Status/Adjustments/Exemptions | ||||||
|---|---|---|---|---|---|---|
| Account # | Exemption Description | Amount | ||||
| No adjustment/exemption records returned. | ||||||
| Property Deed Transaction History (Recorded in the County Clerk's Office) | ||||||||||
|---|---|---|---|---|---|---|---|---|---|---|
| Date | Type | Book | Page | Price | Grantor | Grantee | ||||
|
10/14/2025 |
|
Deeds |
$138,000 |
SHEPERD REALTY INC |
COMPASS KEY LLC |
|||||
|
11/19/2024 |
|
Hmstd Off & |
$0 |
GRAHAM SUMMER SANCHELL |
SHEPERD REALTY INC |
|||||
|
11/15/2021 |
|
Other |
$0 |
SHEPERD REALTY INC |
GRAHAM SUMMER SANCHELL |
|||||
|
12/22/2014 |
|
Deeds |
$72,500 |
LEMLEY EVAN C LEMLEY BROOKE B |
SHEPERD REALTY INC |
|||||
|
4/18/2006 |
|
Deeds |
$0 |
LEMLEY EVAN C & VANESSA BROOKE |
LEMLEY EVAN C LEMLEY BROOKE B |
|||||
| Last Mailed Notice of Value (N.O.V.) Information/History | ||||||||
|---|---|---|---|---|---|---|---|---|
| Year | Date | Market Value | Taxable Market Value | Gross Assessed | Exemption | Net Assessed | ||
|
2026 |
02/23/2026 |
183,500 |
183,500 |
20,185 |
0 |
20,185 |
||
|
2025 |
02/14/2025 |
182,000 |
145,369 |
15,990 |
0 |
15,990 |
||
|
2024 |
02/13/2024 |
179,000 |
138,447 |
15,228 |
1,000 |
14,228 |
||
|
2023 |
02/14/2023 |
167,500 |
134,415 |
14,785 |
1,000 |
13,785 |
||
|
2022 |
03/15/2022 |
130,500 |
130,500 |
14,355 |
1,000 |
13,355 |
||
| Property Building Permit History | ||||||
|---|---|---|---|---|---|---|
| Issued | Permit # | Provided by | Bldg # | Description | Est Construction Cost | Status |
|
1/25/2013 |
10447882 |
OKLAHOMA CITY |
1 |
Fire Remodel |
5,000 |
Inactive |
|
10/11/2012 |
10444855 |
OKLAHOMA CITY |
1 |
Burn - Trip |
5,000 |
Inactive |
| Click button on building number to access detailed information: | ||||||
|---|---|---|---|---|---|---|
| Bldg # | Vacant/Improved Land | Bldg Description | Year Built | SqFt | # Stories | |
|
1 |
Improved |
Ranch 1 Story |
1926 |
1,008 |
1 Stories |
|