|
|
|
| Larry Stein Oklahoma County Assessor (405) 713-1200 - Public Access System |
|
|
|
|
|
|
| Real Property Display - Screen Produced 4/1/2026 5:42:07 PM | ||||
|---|---|---|---|---|
| Account: R112151080 | Type: Residential | Location: |
3032 NW 67TH ST |
|
| Building Name/Occupant: |
|
OKLAHOMA CITY |
||
| Owner Name 1: | HJ LEGACY PROPERTIES LLC |
Parcel PIN#: |
2802-11-215-1080 |
|
| Owner Name 2: | 1/4 section #: |
2802 |
||
| Owner Name 3: | Parent Acct: |
|
||
| Billing Address: | 3325 NW 173RD ST | Tax District: |
|
|
| City, State, Zip | EDMOND, OK 73012-7102 | School System: |
Oklahoma City #89 |
|
|
Country: (If noted) |
Land Size: |
0.2014 Acres |
||
|
Land Value: 39,926 |
|
|||
|
Sect 1-T12N-R4W Qtr SE |
BILTMORE ESTATES ADD
Block
001
Lot
000
|
|||
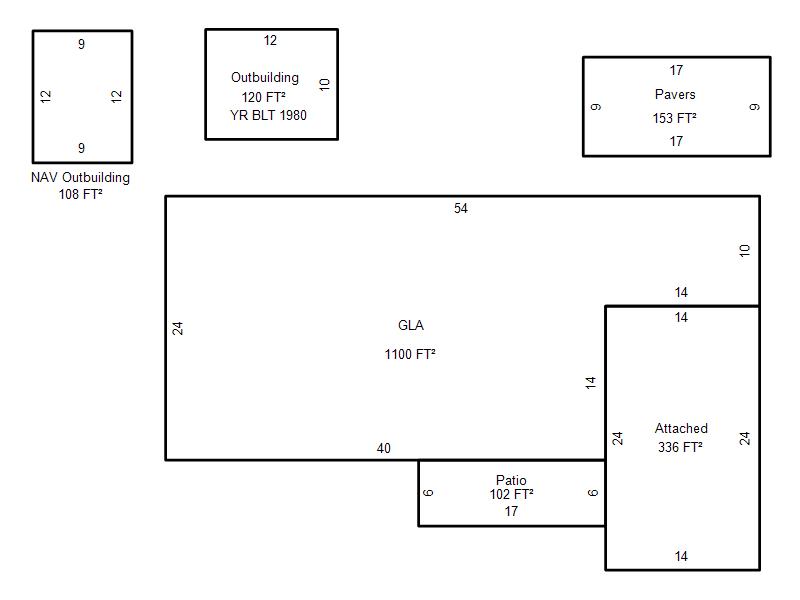
| Full Legal Description: BILTMORE ESTATES ADD 001 000 LOT 24 & E15FT OF LOT 25 |
| Photo & Sketch (if available) | Comp Sales (ordered by relevancy) |
|
||||||||||||||||||
|
||||||||||||||||||||
| Value History (*The County Treasurer 405-713-1300 posts & collects actual tax amounts. Contact information HERE) | |||||||||||||
|---|---|---|---|---|---|---|---|---|---|---|---|---|---|
| Year | Market Value | Taxable Mkt Value | Gross Assessed | Exemption | Net Assessed | Millage | Est. Tax | Tax Savings | |||||
|
2026 |
192,500 |
192,500 |
21,175 |
0 |
21,175 |
122.90 |
$2,602 |
$0 |
|||||
|
2025 |
214,000 |
192,744 |
21,201 |
0 |
21,201 |
122.90 |
$2,606 |
$287 |
|||||
|
2024 |
213,000 |
183,566 |
20,191 |
0 |
20,191 |
123.89 |
$2,502 |
$401 |
|||||
|
2023 |
182,500 |
174,825 |
19,230 |
0 |
19,230 |
122.82 |
$2,362 |
$104 |
|||||
|
2022 |
166,500 |
166,500 |
18,315 |
0 |
18,315 |
117.63 |
$2,154 |
$0 |
|||||
| Property Account Status/Adjustments/Exemptions | ||||||
|---|---|---|---|---|---|---|
| Account # | Exemption Description | Amount | ||||
| No adjustment/exemption records returned. | ||||||
| Property Deed Transaction History (Recorded in the County Clerk's Office) | |||||||
|---|---|---|---|---|---|---|---|
| Date | Type | Book | Page | Price | Grantor | Grantee | |
|
9/10/2025 |
|
Deeds |
$167,500 |
ARNOLD DORIAN REX |
HJ LEGACY PROPERTIES LLC |
||
|
9/24/2021 |
|
Deeds |
$160,000 |
WILSON JEFFREY L |
ARNOLD DORIAN REX |
||
|
5/19/2016 |
|
Deeds |
$0 |
WILSON KAY E |
WILSON JEFFREY L |
||
|
3/1/1983 |
|
Historical |
$0 |
|
WILSON JEFFREY LYNN & KAY E |
||
| Last Mailed Notice of Value (N.O.V.) Information/History | ||||||||
|---|---|---|---|---|---|---|---|---|
| Year | Date | Market Value | Taxable Market Value | Gross Assessed | Exemption | Net Assessed | ||
|
2025 |
02/14/2025 |
214,000 |
192,744 |
21,201 |
0 |
21,201 |
||
|
2024 |
02/13/2024 |
213,000 |
183,566 |
20,191 |
0 |
20,191 |
||
|
2023 |
02/14/2023 |
182,500 |
174,825 |
19,230 |
0 |
19,230 |
||
|
2022 |
03/15/2022 |
166,500 |
166,500 |
18,315 |
0 |
18,315 |
||
|
2021 |
03/19/2021 |
122,000 |
118,656 |
13,052 |
0 |
13,052 |
||
| Property Building Permit History | |||||||||||
|---|---|---|---|---|---|---|---|---|---|---|---|
| Issued | Permit # | Provided by | Bldg # | Description | Est Construction Cost | Status | |||||
| No Building Permit records returned. | |||||||||||
| Click button on building number to access detailed information: | ||||||
|---|---|---|---|---|---|---|
| Bldg # | Vacant/Improved Land | Bldg Description | Year Built | SqFt | # Stories | |
|
1 |
Improved |
Ranch 1 Story |
1954 |
1,100 |
1 Stories |
|