|
|
|
| Larry Stein Oklahoma County Assessor (405) 713-1200 - Public Access System |
|
|
|
|
|
|
| Real Property Display - Screen Produced 4/4/2026 3:04:27 AM | ||||
|---|---|---|---|---|
| Account: R189071690 | Type: Residential | Location: |
6054 NW EXPRESSWAY ST, Unit 6054 |
|
| Building Name/Occupant: |
|
WARR ACRES |
||
| Owner Name 1: | 810 PROPERTIES LLC |
Parcel PIN#: |
2813-18-907-1690 |
|
| Owner Name 2: | 1/4 section #: |
2813 |
||
| Owner Name 3: | Parent Acct: |
|
||
| Billing Address: | 5300 N SHARTEL AVE, Unit 18174 | Tax District: |
|
|
| City, State, Zip | OKLAHOMA CITY, OK 73154 | School System: |
Putnam City #1 |
|
|
Country: (If noted) |
Land Size: |
1.0000 Square Feet |
||
|
Land Value: 8,820 |
|
|||
|
Sect 4-T12N-R4W Qtr NE |
CEDAR LAKE ESTATES
Block
000
Lot
000
|
|||
| Full Legal Description: CEDAR LAKE ESTATES 000 000 UNIT 6054 |
| Photo & Sketch (if available) | Comp Sales (ordered by relevancy) |
|
||||||||||||||||||
|
||||||||||||||||||||
| Value History (*The County Treasurer 405-713-1300 posts & collects actual tax amounts. Contact information HERE) | |||||||||||||
|---|---|---|---|---|---|---|---|---|---|---|---|---|---|
| Year | Market Value | Taxable Mkt Value | Gross Assessed | Exemption | Net Assessed | Millage | Est. Tax | Tax Savings | |||||
|
2026 |
64,000 |
64,000 |
7,040 |
0 |
7,040 |
115.77 |
$815 |
$0 |
|||||
|
2025 |
63,500 |
63,500 |
6,985 |
0 |
6,985 |
115.77 |
$809 |
$0 |
|||||
|
2024 |
64,500 |
64,500 |
7,095 |
0 |
7,095 |
114.25 |
$811 |
$0 |
|||||
|
2023 |
56,000 |
56,000 |
6,160 |
1,000 |
5,160 |
117.84 |
$608 |
$118 |
|||||
|
2022 |
56,000 |
56,000 |
6,160 |
1,000 |
5,160 |
120.40 |
$621 |
$120 |
|||||
| Property Account Status/Adjustments/Exemptions | ||
|---|---|---|
| Account # | Exemption Description | Amount |
|
R189071690 |
5% Capped Account |
0 |
| Property Deed Transaction History (Recorded in the County Clerk's Office) | ||||||||||
|---|---|---|---|---|---|---|---|---|---|---|
| Date | Type | Book | Page | Price | Grantor | Grantee | ||||
|
9/22/2023 |
|
Deeds |
$60,000 |
TAVANGAR KHOSRO TRS |
810 PROPERTIES LLC |
|||||
|
8/4/2023 |
|
Other |
$0 |
HERRERA BRAYAN |
TAVANGAR KHOSRO TRS |
|||||
|
6/9/2021 |
|
Deeds |
$57,000 |
TAVANGAR KHOSRO TRS |
HERRERA BRAYAN |
|||||
|
4/29/2021 |
|
Deeds |
$48,000 |
ASADI TEHRANI REZA & MERY A |
TAVANGAR KHOSRO TRS |
|||||
|
3/15/2021 |
|
Deeds |
$37,000 |
POGUE RUSSELL WAYNE |
ASADI TEHRANI REZA & MERY A |
|||||
| Last Mailed Notice of Value (N.O.V.) Information/History | ||||||||
|---|---|---|---|---|---|---|---|---|
| Year | Date | Market Value | Taxable Market Value | Gross Assessed | Exemption | Net Assessed | ||
|
2026 |
02/23/2026 |
64,000 |
64,000 |
7,040 |
0 |
7,040 |
||
|
2024 |
03/01/2024 |
64,500 |
64,500 |
7,095 |
0 |
7,095 |
||
|
2022 |
03/15/2022 |
56,000 |
56,000 |
6,160 |
1,000 |
5,160 |
||
|
2021 |
03/19/2021 |
42,000 |
42,000 |
4,620 |
0 |
4,620 |
||
|
2021 |
04/09/2021 |
42,000 |
42,000 |
4,620 |
0 |
4,620 |
||
| Property Building Permit History | |||||||||||
|---|---|---|---|---|---|---|---|---|---|---|---|
| Issued | Permit # | Provided by | Bldg # | Description | Est Construction Cost | Status | |||||
| No Building Permit records returned. | |||||||||||
| Click button on building number to access detailed information: | ||||||
|---|---|---|---|---|---|---|
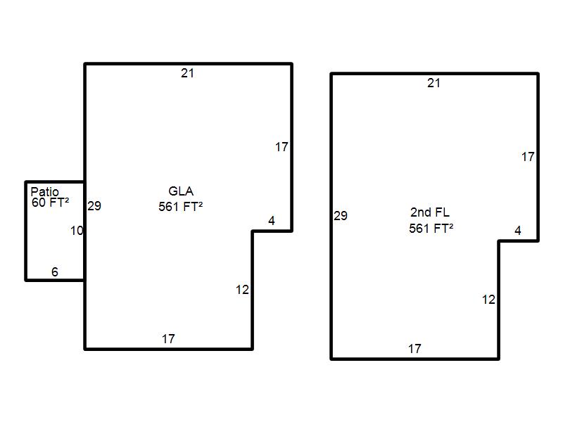
| Bldg # | Vacant/Improved Land | Bldg Description | Year Built | SqFt | # Stories | |
|
1 |
Improved |
Condo <= 3 Stories |
1979 |
1,122 |
2 Stories |
|