|
|
|
| Larry Stein Oklahoma County Assessor (405) 713-1200 - Public Access System |
|
|
|
|
|
|
| Real Property Display - Screen Produced 4/3/2026 9:06:47 PM | ||||
|---|---|---|---|---|
| Account: R065666000 | Type: Residential | Location: |
3300 NW 13TH ST |
|
| Building Name/Occupant: |
|
OKLAHOMA CITY |
||
| Owner Name 1: | BERTELS EMILY CHRISTINE |
Parcel PIN#: |
2899-06-566-6000 |
|
| Owner Name 2: | 1/4 section #: |
2899 |
||
| Owner Name 3: | Parent Acct: |
|
||
| Billing Address: | 3300 NW 13TH ST | Tax District: |
|
|
| City, State, Zip | OKLAHOMA CITY, OK 73107 | School System: |
Oklahoma City #89 |
|
|
Country: (If noted) |
Land Size: |
0.1871 Acres |
||
|
Land Value: 17,930 |
|
|||
|
Sect 25-T12N-R4W Qtr SW |
BARBER HEIGHTS SUB
Block
002
Lot
000
|
|||
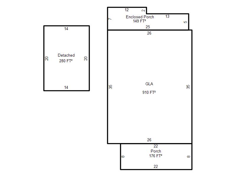
| Full Legal Description: BARBER HEIGHTS SUB 002 000 N50FT OF LOTS 1 THRU 6 |
| Photo & Sketch (if available) | Comp Sales (ordered by relevancy) |
|
||||||||||||||||||
|
||||||||||||||||||||
| Value History (*The County Treasurer 405-713-1300 posts & collects actual tax amounts. Contact information HERE) | |||||||||||||
|---|---|---|---|---|---|---|---|---|---|---|---|---|---|
| Year | Market Value | Taxable Mkt Value | Gross Assessed | Exemption | Net Assessed | Millage | Est. Tax | Tax Savings | |||||
|
2026 |
132,000 |
132,000 |
14,520 |
1,000 |
13,520 |
122.90 |
$1,662 |
$123 |
|||||
|
2025 |
134,000 |
134,000 |
14,740 |
0 |
14,740 |
122.90 |
$1,812 |
$0 |
|||||
|
2024 |
131,500 |
128,625 |
14,148 |
0 |
14,148 |
123.89 |
$1,753 |
$39 |
|||||
|
2023 |
122,500 |
122,500 |
13,475 |
0 |
13,475 |
122.82 |
$1,655 |
$0 |
|||||
|
2022 |
89,500 |
74,088 |
8,149 |
0 |
8,149 |
117.63 |
$959 |
$199 |
|||||
| Property Account Status/Adjustments/Exemptions | ||
|---|---|---|
| Account # | Exemption Description | Amount |
|
R065666000 |
Homestead |
1,000 |
|
R065666000 |
3% Cap Homestead |
0 |
| Property Deed Transaction History (Recorded in the County Clerk's Office) | ||||||||||
|---|---|---|---|---|---|---|---|---|---|---|
| Date | Type | Book | Page | Price | Grantor | Grantee | ||||
|
10/3/2022 |
|
Deeds |
$125,000 |
JLM MANAGEMENT LLC |
BERTELS EMILY CHRISTINE |
|||||
|
11/28/2011 |
|
Deeds |
$38,000 |
BROOM CRYSTAL ALICIA |
JLM MANAGEMENT LLC |
|||||
|
10/3/2011 |
|
Hmstd Off & |
$0 |
FLOYD MARY KESTER RAYMOND |
BROOM CRYSTAL ALICIA |
|||||
|
11/19/2010 |
|
Other |
$0 |
BROOM CRYSTAL ALICIA |
FLOYD MARY KESTER RAYMOND |
|||||
|
8/30/2010 |
|
Hmstd Off & |
$0 |
BROOM VERNA LOUISE |
BROOM CRYSTAL ALICIA |
|||||
| Last Mailed Notice of Value (N.O.V.) Information/History | ||||||||
|---|---|---|---|---|---|---|---|---|
| Year | Date | Market Value | Taxable Market Value | Gross Assessed | Exemption | Net Assessed | ||
|
2025 |
02/14/2025 |
134,000 |
134,000 |
14,740 |
0 |
14,740 |
||
|
2024 |
02/13/2024 |
131,500 |
128,625 |
14,148 |
0 |
14,148 |
||
|
2023 |
02/14/2023 |
122,500 |
122,500 |
13,475 |
0 |
13,475 |
||
|
2022 |
03/15/2022 |
89,500 |
74,088 |
8,149 |
0 |
8,149 |
||
|
2021 |
03/19/2021 |
74,500 |
70,560 |
7,761 |
0 |
7,761 |
||
| Property Building Permit History | |||||||||||
|---|---|---|---|---|---|---|---|---|---|---|---|
| Issued | Permit # | Provided by | Bldg # | Description | Est Construction Cost | Status | |||||
| No Building Permit records returned. | |||||||||||
| Click button on building number to access detailed information: | ||||||
|---|---|---|---|---|---|---|
| Bldg # | Vacant/Improved Land | Bldg Description | Year Built | SqFt | # Stories | |
|
1 |
Improved |
Ranch 1 Story |
1939 |
910 |
1 Stories |
|