|
|
|
| Larry Stein Oklahoma County Assessor (405) 713-1200 - Public Access System |
|
|
|
|
|
|
| Real Property Display - Screen Produced 4/4/2026 10:44:34 AM | ||||
|---|---|---|---|---|
| Account: R130648350 | Type: Residential | Location: |
1445 NW 94TH ST |
|
| Building Name/Occupant: |
|
OKLAHOMA CITY |
||
| Owner Name 1: | DE LOERA ANGEL ESCALERA |
Parcel PIN#: |
3714-13-064-8350 |
|
| Owner Name 2: | PULIDO LUZ MARTINEZ | 1/4 section #: |
3714 |
|
| Owner Name 3: | Parent Acct: |
|
||
| Billing Address: | 9901 N WESTERN AVE | Tax District: |
|
|
| City, State, Zip | OKLAHOMA CITY, OK 73114 | School System: |
Oklahoma City #89 |
|
|
Country: (If noted) |
Land Size: |
0.1607 Acres |
||
|
Land Value: 18,200 |
|
|||
|
Sect 29-T13N-R3W Qtr SE |
ALTAVUE ADDITION
Block
028
Lot
000
|
|||
| Full Legal Description: ALTAVUE ADDITION 028 000 LOTS 29 & 30 |
| Photo & Sketch (if available) | Comp Sales (ordered by relevancy) |
|
||||||||||||||||||
|
||||||||||||||||||||
| Value History (*The County Treasurer 405-713-1300 posts & collects actual tax amounts. Contact information HERE) | |||||||||||||
|---|---|---|---|---|---|---|---|---|---|---|---|---|---|
| Year | Market Value | Taxable Mkt Value | Gross Assessed | Exemption | Net Assessed | Millage | Est. Tax | Tax Savings | |||||
|
2026 |
142,000 |
142,000 |
15,620 |
0 |
15,620 |
122.90 |
$1,920 |
$0 |
|||||
|
2025 |
108,000 |
59,097 |
6,500 |
0 |
6,500 |
122.90 |
$799 |
$661 |
|||||
|
2024 |
103,500 |
56,283 |
6,190 |
0 |
6,190 |
123.89 |
$767 |
$643 |
|||||
|
2023 |
97,500 |
53,603 |
5,895 |
0 |
5,895 |
122.82 |
$724 |
$593 |
|||||
|
2022 |
69,500 |
51,051 |
5,614 |
0 |
5,614 |
117.63 |
$661 |
$239 |
|||||
| Property Account Status/Adjustments/Exemptions | ||||||
|---|---|---|---|---|---|---|
| Account # | Exemption Description | Amount | ||||
| No adjustment/exemption records returned. | ||||||
| Property Deed Transaction History (Recorded in the County Clerk's Office) | ||||||||||
|---|---|---|---|---|---|---|---|---|---|---|
| Date | Type | Book | Page | Price | Grantor | Grantee | ||||
|
9/10/2025 |
|
Deeds |
$150,000 |
SPARK BRIXTON LLC |
DE LOERA ANGEL ESCALERA |
|||||
|
3/6/2025 |
|
Deeds |
$81,000 |
CORTES ALEJANDRO |
SAINT CASTLE PROPERTIES LLC |
|||||
|
3/6/2025 |
|
Deeds |
$92,000 |
SAINT CASTLE PROPERTIES LLC |
SPARK BRIXTON LLC |
|||||
|
5/25/2005 |
|
Deeds |
$30,000 |
WELSH JEFFERY S |
CORTES ALEJANDRO |
|||||
|
8/26/1996 |
|
Historical |
$12,500 |
ARRINGTON DALTON E & JO ANN |
WELSH JEFFERY S |
|||||
| Last Mailed Notice of Value (N.O.V.) Information/History | ||||||||
|---|---|---|---|---|---|---|---|---|
| Year | Date | Market Value | Taxable Market Value | Gross Assessed | Exemption | Net Assessed | ||
|
2026 |
02/23/2026 |
142,000 |
142,000 |
15,620 |
0 |
15,620 |
||
|
2025 |
02/14/2025 |
108,000 |
59,097 |
6,500 |
0 |
6,500 |
||
|
2025 |
03/28/2025 |
108,000 |
59,097 |
6,500 |
0 |
6,500 |
||
|
2024 |
02/13/2024 |
103,500 |
56,283 |
6,190 |
0 |
6,190 |
||
|
2023 |
02/14/2023 |
97,500 |
53,603 |
5,895 |
0 |
5,895 |
||
| Property Building Permit History | |||||||||||
|---|---|---|---|---|---|---|---|---|---|---|---|
| Issued | Permit # | Provided by | Bldg # | Description | Est Construction Cost | Status | |||||
| No Building Permit records returned. | |||||||||||
| Click button on building number to access detailed information: | ||||||
|---|---|---|---|---|---|---|
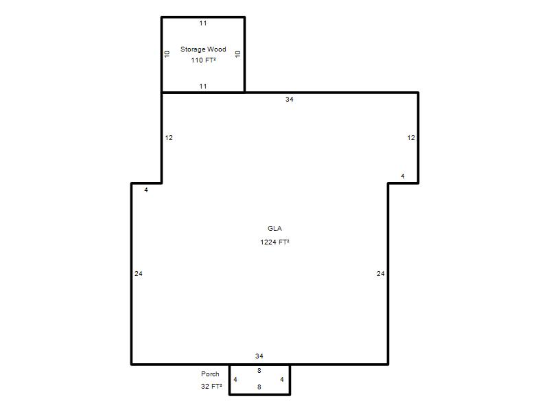
| Bldg # | Vacant/Improved Land | Bldg Description | Year Built | SqFt | # Stories | |
|
1 |
Improved |
Ranch 1 Story |
1946 |
1,224 |
1 Stories |
|