|
|
|
| Larry Stein Oklahoma County Assessor (405) 713-1200 - Public Access System |
|
|
|
|
|
|
| Real Property Display - Screen Produced 4/3/2026 8:21:42 PM | ||||
|---|---|---|---|---|
| Account: R144663820 | Type: Residential | Location: |
11313 BLUFF CREEK DR |
|
| Building Name/Occupant: |
|
OKLAHOMA CITY |
||
| Owner Name 1: | RUTHERFORD CARSON |
Parcel PIN#: |
3887-14-466-3820 |
|
| Owner Name 2: | 1/4 section #: |
3887 |
||
| Owner Name 3: | Parent Acct: |
|
||
| Billing Address: | 11313 BLUFF CREEK DR | Tax District: |
|
|
| City, State, Zip | OKLAHOMA CITY, OK 73162-3724 | School System: |
Putnam City #1 |
|
|
Country: (If noted) |
Land Size: |
0.2130 Acres |
||
|
Land Value: 40,832 |
|
|||
|
Sect 22-T13N-R4W Qtr SW |
BLUFF CREEK
Block
010
Lot
013
|
|||
| Full Legal Description: BLUFF CREEK 010 013 |
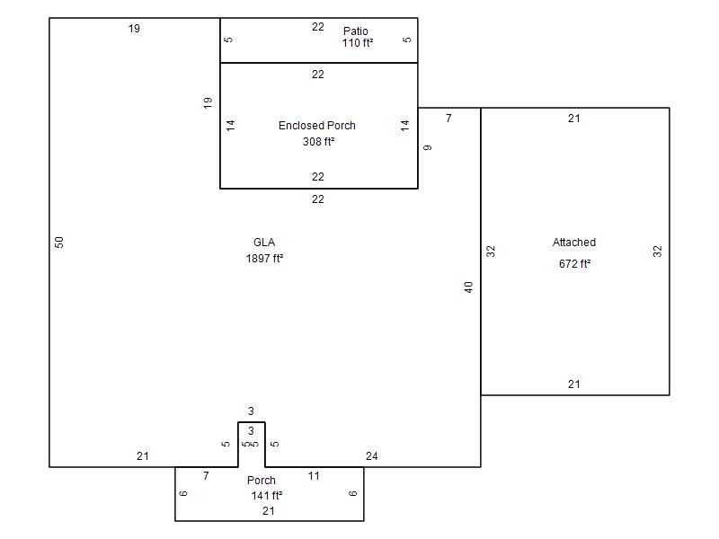
| Photo & Sketch (if available) | Comp Sales (ordered by relevancy) |
|
||||||||||||||||||
|
||||||||||||||||||||
| Value History (*The County Treasurer 405-713-1300 posts & collects actual tax amounts. Contact information HERE) | |||||||||||||
|---|---|---|---|---|---|---|---|---|---|---|---|---|---|
| Year | Market Value | Taxable Mkt Value | Gross Assessed | Exemption | Net Assessed | Millage | Est. Tax | Tax Savings | |||||
|
2026 |
237,000 |
237,000 |
26,070 |
1,000 |
25,070 |
123.17 |
$3,088 |
$123 |
|||||
|
2025 |
231,500 |
231,500 |
25,465 |
1,000 |
24,465 |
123.17 |
$3,013 |
$123 |
|||||
|
2024 |
227,500 |
179,560 |
19,751 |
0 |
19,751 |
122.30 |
$2,416 |
$645 |
|||||
|
2023 |
216,000 |
171,010 |
18,810 |
1,000 |
17,810 |
121.91 |
$2,171 |
$725 |
|||||
|
2022 |
192,000 |
166,030 |
18,262 |
1,000 |
17,262 |
123.41 |
$2,130 |
$476 |
|||||
| Property Account Status/Adjustments/Exemptions | ||
|---|---|---|
| Account # | Exemption Description | Amount |
|
R144663820 |
3% Cap Homestead |
0 |
|
R144663820 |
Homestead |
1,000 |
| Property Deed Transaction History (Recorded in the County Clerk's Office) | |||||||
|---|---|---|---|---|---|---|---|
| Date | Type | Book | Page | Price | Grantor | Grantee | |
|
4/18/2024 |
|
Deeds |
$245,000 |
COCHRAN GARY F & PEGGY J |
RUTHERFORD CARSON |
||
|
11/1/1983 |
|
Historical |
$0 |
|
COCHRAN GARY F & PEGGY J |
||
| Last Mailed Notice of Value (N.O.V.) Information/History | ||||||||
|---|---|---|---|---|---|---|---|---|
| Year | Date | Market Value | Taxable Market Value | Gross Assessed | Exemption | Net Assessed | ||
|
2026 |
02/23/2026 |
237,000 |
237,000 |
26,070 |
1,000 |
25,070 |
||
|
2025 |
02/14/2025 |
231,500 |
231,500 |
25,465 |
0 |
25,465 |
||
|
2024 |
02/13/2024 |
227,500 |
179,560 |
19,751 |
0 |
19,751 |
||
|
2023 |
02/14/2023 |
216,000 |
171,010 |
18,810 |
1,000 |
17,810 |
||
|
2022 |
03/15/2022 |
192,000 |
166,030 |
18,262 |
1,000 |
17,262 |
||
| Property Building Permit History | |||||||||||
|---|---|---|---|---|---|---|---|---|---|---|---|
| Issued | Permit # | Provided by | Bldg # | Description | Est Construction Cost | Status | |||||
| No Building Permit records returned. | |||||||||||
| Click button on building number to access detailed information: | ||||||
|---|---|---|---|---|---|---|
| Bldg # | Vacant/Improved Land | Bldg Description | Year Built | SqFt | # Stories | |
|
1 |
Improved |
Ranch 1 Story |
1976 |
1,897 |
1 Stories |
|