|
|
|
| Larry Stein Oklahoma County Assessor (405) 713-1200 - Public Access System |
|
|
|
|
|
|
| Real Property Display - Screen Produced 4/3/2026 6:49:04 PM | ||||
|---|---|---|---|---|
| Account: R145634570 | Type: Residential | Location: |
5616 NW 109TH ST |
|
| Building Name/Occupant: |
|
OKLAHOMA CITY |
||
| Owner Name 1: | MAJLUF ZULMITA CHAVEZ |
Parcel PIN#: |
3887-14-563-4570 |
|
| Owner Name 2: | 1/4 section #: |
3887 |
||
| Owner Name 3: | Parent Acct: |
|
||
| Billing Address: | 5200 HALES DR, Unit 214 | Tax District: |
|
|
| City, State, Zip | OKLAHOMA CITY, OK 73112-5338 | School System: |
Putnam City #1 |
|
|
Country: (If noted) |
Land Size: |
0.2360 Acres |
||
|
Land Value: 45,236 |
|
|||
|
Sect 22-T13N-R4W Qtr SW |
BLUFF CREEK SEC 3
Block
021
Lot
021
|
|||
| Full Legal Description: BLUFF CREEK SEC 3 021 021 |
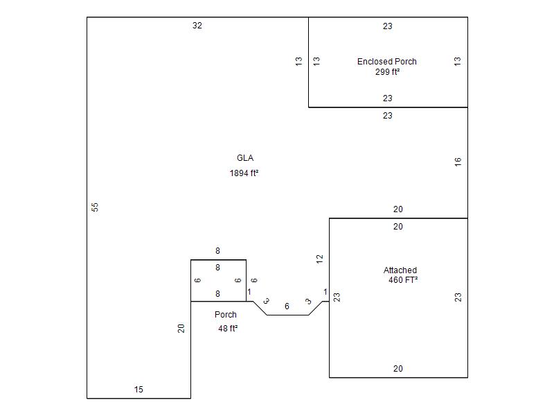
| Photo & Sketch (if available) | Comp Sales (ordered by relevancy) |
|
||||||||||||||||||
|
||||||||||||||||||||
| Value History (*The County Treasurer 405-713-1300 posts & collects actual tax amounts. Contact information HERE) | |||||||||||||
|---|---|---|---|---|---|---|---|---|---|---|---|---|---|
| Year | Market Value | Taxable Mkt Value | Gross Assessed | Exemption | Net Assessed | Millage | Est. Tax | Tax Savings | |||||
|
2026 |
230,500 |
230,500 |
25,355 |
0 |
25,355 |
123.17 |
$3,123 |
$0 |
|||||
|
2025 |
225,500 |
192,657 |
21,192 |
0 |
21,192 |
123.17 |
$2,610 |
$445 |
|||||
|
2024 |
222,000 |
183,483 |
20,183 |
0 |
20,183 |
122.30 |
$2,468 |
$518 |
|||||
|
2023 |
211,000 |
174,746 |
19,221 |
0 |
19,221 |
121.91 |
$2,343 |
$486 |
|||||
|
2022 |
188,000 |
166,425 |
18,306 |
0 |
18,306 |
123.41 |
$2,259 |
$293 |
|||||
| Property Account Status/Adjustments/Exemptions | ||||||
|---|---|---|---|---|---|---|
| Account # | Exemption Description | Amount | ||||
| No adjustment/exemption records returned. | ||||||
| Property Deed Transaction History (Recorded in the County Clerk's Office) | |||||||
|---|---|---|---|---|---|---|---|
| Date | Type | Book | Page | Price | Grantor | Grantee | |
|
11/25/2025 |
|
Deeds |
$230,000 |
WOOD GREGORY L |
MAJLUF ZULMITA CHAVEZ |
||
|
6/1/2016 |
|
Deeds |
$148,500 |
CULVER ROBERTA D TRS CULVER ROBERTA D REV TRUST |
WOOD GREGORY L |
||
|
6/16/1992 |
|
Historical |
$0 |
CULVER KENNETH & ROBERTA |
CULVER ROBERTA D TRS |
||
|
9/1/1977 |
|
Historical |
$0 |
|
CULVER KENNETH & ROBERTA |
||
| Last Mailed Notice of Value (N.O.V.) Information/History | ||||||||
|---|---|---|---|---|---|---|---|---|
| Year | Date | Market Value | Taxable Market Value | Gross Assessed | Exemption | Net Assessed | ||
|
2026 |
02/23/2026 |
230,500 |
230,500 |
25,355 |
0 |
25,355 |
||
|
2025 |
02/14/2025 |
225,500 |
192,657 |
21,192 |
0 |
21,192 |
||
|
2024 |
02/13/2024 |
222,000 |
183,483 |
20,183 |
0 |
20,183 |
||
|
2023 |
02/14/2023 |
211,000 |
174,746 |
19,221 |
0 |
19,221 |
||
|
2022 |
03/15/2022 |
188,000 |
166,425 |
18,306 |
0 |
18,306 |
||
| Property Building Permit History | |||||||||||
|---|---|---|---|---|---|---|---|---|---|---|---|
| Issued | Permit # | Provided by | Bldg # | Description | Est Construction Cost | Status | |||||
| No Building Permit records returned. | |||||||||||
| Click button on building number to access detailed information: | ||||||
|---|---|---|---|---|---|---|
| Bldg # | Vacant/Improved Land | Bldg Description | Year Built | SqFt | # Stories | |
|
1 |
Improved |
Ranch 1 Story |
1977 |
1,894 |
1 Stories |
|