|
|
|
| Larry Stein Oklahoma County Assessor (405) 713-1200 - Public Access System |
|
|
|
|
|
|
| Real Property Display - Screen Produced 4/3/2026 8:21:42 PM | ||||
|---|---|---|---|---|
| Account: R144663570 | Type: Residential | Location: |
11424 BLUFF CREEK DR |
|
| Building Name/Occupant: |
|
OKLAHOMA CITY |
||
| Owner Name 1: | THEE KEVIN |
Parcel PIN#: |
3887-14-466-3570 |
|
| Owner Name 2: | 1/4 section #: |
3887 |
||
| Owner Name 3: | Parent Acct: |
|
||
| Billing Address: | 11424 BLUFF CREEK DR | Tax District: |
|
|
| City, State, Zip | OKLAHOMA CITY, OK 73162-3725 | School System: |
Putnam City #1 |
|
|
Country: (If noted) |
Land Size: |
0.2009 Acres |
||
|
Land Value: 38,500 |
|
|||
|
Sect 22-T13N-R4W Qtr SW |
BLUFF CREEK
Block
009
Lot
002
|
|||
| Full Legal Description: BLUFF CREEK 009 002 |
| Photo & Sketch (if available) | Comp Sales (ordered by relevancy) |
|
||||||||||||||||||
|
||||||||||||||||||||
| Value History (*The County Treasurer 405-713-1300 posts & collects actual tax amounts. Contact information HERE) | |||||||||||||
|---|---|---|---|---|---|---|---|---|---|---|---|---|---|
| Year | Market Value | Taxable Mkt Value | Gross Assessed | Exemption | Net Assessed | Millage | Est. Tax | Tax Savings | |||||
|
2026 |
258,000 |
258,000 |
28,380 |
0 |
28,380 |
123.17 |
$3,496 |
$0 |
|||||
|
2025 |
253,500 |
253,500 |
27,885 |
0 |
27,885 |
123.17 |
$3,435 |
$0 |
|||||
|
2024 |
211,000 |
160,909 |
17,699 |
0 |
17,699 |
122.30 |
$2,165 |
$674 |
|||||
|
2023 |
201,000 |
153,247 |
16,856 |
0 |
16,856 |
121.91 |
$2,055 |
$640 |
|||||
|
2022 |
180,500 |
145,950 |
16,054 |
0 |
16,054 |
123.41 |
$1,981 |
$469 |
|||||
| Property Account Status/Adjustments/Exemptions | ||
|---|---|---|
| Account # | Exemption Description | Amount |
|
R144663570 |
5% Capped Account |
0 |
| Property Deed Transaction History (Recorded in the County Clerk's Office) | |||||||
|---|---|---|---|---|---|---|---|
| Date | Type | Book | Page | Price | Grantor | Grantee | |
|
9/11/2024 |
|
Deeds |
$285,000 |
KAVEN NORA |
THEE KEVIN |
||
|
6/11/2019 |
|
Deeds |
$126,000 |
HINTZ DAVID R SUC TRS |
KAVEN NORA |
||
|
1/4/2018 |
|
Hmstd Off & |
$0 |
KALOGERSON THOMAS A & JULIANNE L TRS |
HINTZ DAVID R SUC TRS |
||
|
9/11/2001 |
|
Deeds |
$0 |
KALOGERSON THOMAS A & JULIE L |
KALOGERSON THOMAS A & JULIANNE L TRS |
||
|
10/1/1978 |
|
Historical |
$0 |
|
KALOGERSON THOMAS A & JULIE L |
||
| Last Mailed Notice of Value (N.O.V.) Information/History | ||||||||
|---|---|---|---|---|---|---|---|---|
| Year | Date | Market Value | Taxable Market Value | Gross Assessed | Exemption | Net Assessed | ||
|
2026 |
02/23/2026 |
258,000 |
258,000 |
28,380 |
0 |
28,380 |
||
|
2025 |
02/14/2025 |
253,500 |
253,500 |
27,885 |
0 |
27,885 |
||
|
2024 |
02/13/2024 |
211,000 |
160,909 |
17,699 |
0 |
17,699 |
||
|
2023 |
02/14/2023 |
201,000 |
153,247 |
16,856 |
0 |
16,856 |
||
|
2022 |
03/15/2022 |
180,500 |
145,950 |
16,054 |
0 |
16,054 |
||
| Property Building Permit History | |||||||||||
|---|---|---|---|---|---|---|---|---|---|---|---|
| Issued | Permit # | Provided by | Bldg # | Description | Est Construction Cost | Status | |||||
| No Building Permit records returned. | |||||||||||
| Click button on building number to access detailed information: | ||||||
|---|---|---|---|---|---|---|
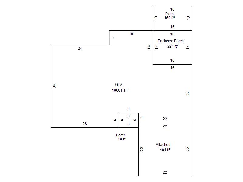
| Bldg # | Vacant/Improved Land | Bldg Description | Year Built | SqFt | # Stories | |
|
1 |
Improved |
Ranch 1 Story |
1975 |
1,860 |
1 Stories |
|