|
|
|
| Larry Stein Oklahoma County Assessor (405) 713-1200 - Public Access System |
|
|
|
|
|
|
| Real Property Display - Screen Produced 4/4/2026 2:02:11 PM | ||||
|---|---|---|---|---|
| Account: R106101500 | Type: Residential | Location: |
3217 STONYBROOK RD |
|
| Building Name/Occupant: |
|
OKLAHOMA CITY |
||
| Owner Name 1: | CLINE JONATHON |
Parcel PIN#: |
3894-10-610-1500 |
|
| Owner Name 2: | CLINE BRIANNA | 1/4 section #: |
3894 |
|
| Owner Name 3: | Parent Acct: |
|
||
| Billing Address: | 3217 STONYBROOK RD | Tax District: |
|
|
| City, State, Zip | OKLAHOMA CITY, OK 73120-5310 | School System: |
Oklahoma City #89 |
|
|
Country: (If noted) |
Land Size: |
0.2439 Acres |
||
|
Land Value: 69,594 |
|
|||
|
Sect 24-T13N-R4W Qtr SE |
QUAIL CREEK SEC 23
Block
115
Lot
014
|
|||
| Full Legal Description: QUAIL CREEK SEC 23 115 014 |
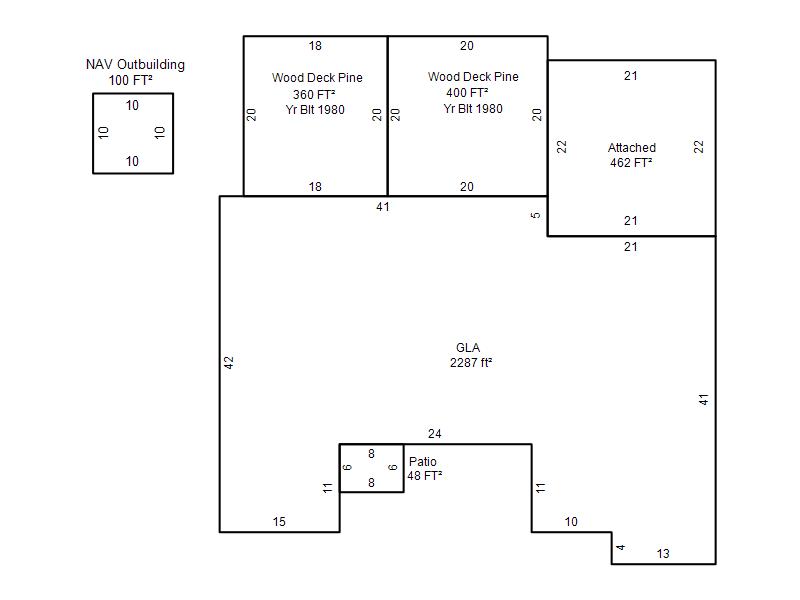
| Photo & Sketch (if available) | Comp Sales (ordered by relevancy) |
|
||||||||||||||||||
|
||||||||||||||||||||
| Value History (*The County Treasurer 405-713-1300 posts & collects actual tax amounts. Contact information HERE) | |||||||||||||
|---|---|---|---|---|---|---|---|---|---|---|---|---|---|
| Year | Market Value | Taxable Mkt Value | Gross Assessed | Exemption | Net Assessed | Millage | Est. Tax | Tax Savings | |||||
|
2026 |
439,000 |
439,000 |
48,290 |
1,000 |
47,290 |
122.90 |
$5,812 |
$123 |
|||||
|
2025 |
434,500 |
429,450 |
47,239 |
0 |
47,239 |
122.90 |
$5,806 |
$68 |
|||||
|
2024 |
409,000 |
409,000 |
44,990 |
0 |
44,990 |
123.89 |
$5,574 |
$0 |
|||||
|
2023 |
394,500 |
302,685 |
33,294 |
1,000 |
32,294 |
122.82 |
$3,967 |
$1,363 |
|||||
|
2022 |
328,500 |
293,869 |
32,325 |
1,000 |
31,325 |
117.63 |
$3,685 |
$566 |
|||||
| Property Account Status/Adjustments/Exemptions | ||
|---|---|---|
| Account # | Exemption Description | Amount |
|
R106101500 |
Homestead |
1,000 |
|
R106101500 |
3% Cap Homestead |
0 |
| Property Deed Transaction History (Recorded in the County Clerk's Office) | ||||||||||
|---|---|---|---|---|---|---|---|---|---|---|
| Date | Type | Book | Page | Price | Grantor | Grantee | ||||
|
5/1/2023 |
|
Deeds |
$405,000 |
SHADID PHILIP SHANE |
CLINE JONATHON |
|||||
|
8/31/2016 |
|
Deeds |
$269,000 |
SCOTT MARY B |
SHADID PHILIP SHANE |
|||||
|
8/31/2001 |
|
Deeds |
$137,500 |
EDWARDS GERALD D & JEANNE W WOODWARD THOMAS L & CATHERINE |
SCOTT MARY B |
|||||
|
7/7/1998 |
|
Historical |
$140,000 |
CAMERON ROBERT C & LYNDA |
EDWARDS GERALD D & JEANNE W |
|||||
|
5/1/1995 |
|
Historical |
$121,500 |
ANDERSON DENNIS C |
CAMERON ROBERT C & LYNDA |
|||||
| Last Mailed Notice of Value (N.O.V.) Information/History | ||||||||
|---|---|---|---|---|---|---|---|---|
| Year | Date | Market Value | Taxable Market Value | Gross Assessed | Exemption | Net Assessed | ||
|
2026 |
02/23/2026 |
439,000 |
439,000 |
48,290 |
0 |
48,290 |
||
|
2025 |
02/14/2025 |
434,500 |
429,450 |
47,239 |
0 |
47,239 |
||
|
2024 |
02/13/2024 |
409,000 |
409,000 |
44,990 |
0 |
44,990 |
||
|
2023 |
02/14/2023 |
394,500 |
302,685 |
33,294 |
1,000 |
32,294 |
||
|
2022 |
03/15/2022 |
328,500 |
293,869 |
32,325 |
1,000 |
31,325 |
||
| Property Building Permit History | ||||||
|---|---|---|---|---|---|---|
| Issued | Permit # | Provided by | Bldg # | Description | Est Construction Cost | Status |
|
4/17/2003 |
10284169 |
OKLAHOMA CITY |
1 |
Storage Buil |
1,400 |
Inactive |
| Click button on building number to access detailed information: | ||||||
|---|---|---|---|---|---|---|
| Bldg # | Vacant/Improved Land | Bldg Description | Year Built | SqFt | # Stories | |
|
1 |
Improved |
Ranch 1 Story |
1972 |
2,287 |
1 Stories |
|