|
|
|
| Larry Stein Oklahoma County Assessor (405) 713-1200 - Public Access System |
|
|
|
|
|
|
| Real Property Display - Screen Produced 4/4/2026 1:23:31 PM | ||||
|---|---|---|---|---|
| Account: R188308200 | Type: Residential | Location: |
2601 VALLEY BROOK DR |
|
| Building Name/Occupant: |
|
EDMOND |
||
| Owner Name 1: | DELANEY TAYLOR JANE |
Parcel PIN#: |
4693-18-830-8200 |
|
| Owner Name 2: | SCHAEFFER GEORGE | 1/4 section #: |
4693 |
|
| Owner Name 3: | Parent Acct: |
|
||
| Billing Address: | 2601 VALLEY BROOK DR | Tax District: |
|
|
| City, State, Zip | EDMOND, OK 73034-4873 | School System: |
Edmond #12 |
|
|
Country: (If noted) |
Land Size: |
0.2410 Acres |
||
|
Land Value: 36,330 |
|
|||
|
Sect 24-T14N-R3W Qtr NE |
BROOKHAVEN NORTH
Block
011
Lot
002
|
|||
| Full Legal Description: BROOKHAVEN NORTH 011 002 |
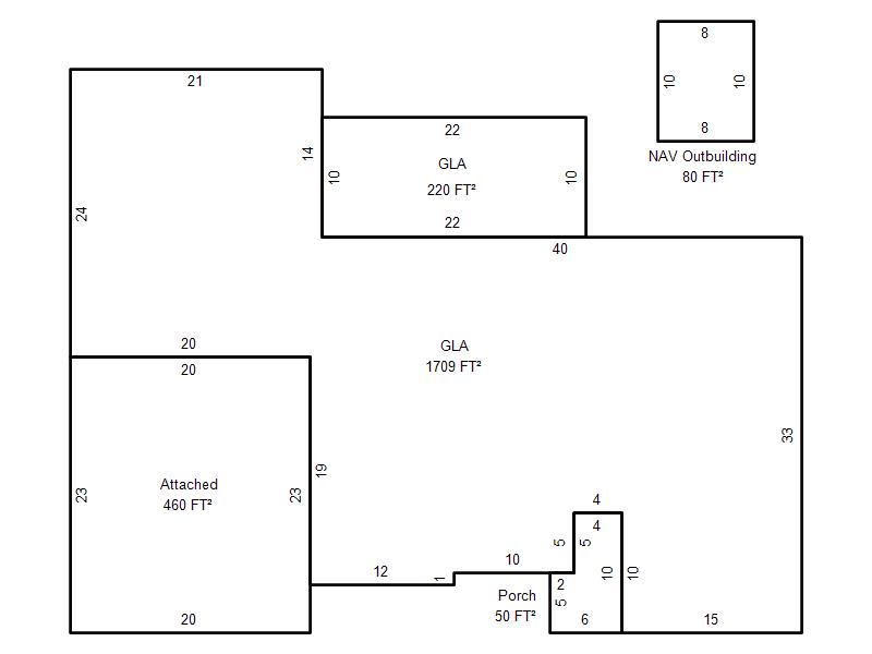
| Photo & Sketch (if available) | Comp Sales (ordered by relevancy) |
|
||||||||||||||||||
|
||||||||||||||||||||
| Value History (*The County Treasurer 405-713-1300 posts & collects actual tax amounts. Contact information HERE) | |||||||||||||
|---|---|---|---|---|---|---|---|---|---|---|---|---|---|
| Year | Market Value | Taxable Mkt Value | Gross Assessed | Exemption | Net Assessed | Millage | Est. Tax | Tax Savings | |||||
|
2026 |
285,000 |
285,000 |
31,350 |
0 |
31,350 |
105.16 |
$3,297 |
$0 |
|||||
|
2025 |
284,500 |
243,225 |
26,754 |
0 |
26,754 |
105.16 |
$2,814 |
$477 |
|||||
|
2024 |
269,500 |
231,643 |
25,480 |
0 |
25,480 |
105.03 |
$2,676 |
$437 |
|||||
|
2023 |
259,000 |
220,613 |
24,266 |
0 |
24,266 |
104.24 |
$2,530 |
$440 |
|||||
|
2022 |
225,000 |
210,108 |
23,111 |
0 |
23,111 |
104.64 |
$2,418 |
$171 |
|||||
| Property Account Status/Adjustments/Exemptions | ||||||
|---|---|---|---|---|---|---|
| Account # | Exemption Description | Amount | ||||
| No adjustment/exemption records returned. | ||||||
| Property Deed Transaction History (Recorded in the County Clerk's Office) | ||||||||||
|---|---|---|---|---|---|---|---|---|---|---|
| Date | Type | Book | Page | Price | Grantor | Grantee | ||||
|
8/26/2025 |
|
Deeds |
$310,000 |
ROSE CAMERYN & KIEFER |
DELANEY TAYLOR JANE |
|||||
|
7/27/2018 |
|
Deeds |
$185,000 |
MCCALEB HOMES INC |
ROSE CAMERYN & KIEFER |
|||||
|
1/19/2018 |
|
Deeds |
$157,500 |
GLASS SHAD S & JAMMYE |
MCCALEB HOMES INC |
|||||
|
12/30/2010 |
|
Deeds |
$0 |
GLASS SHAD S JONES JAMMYE |
GLASS SHAD S & JAMMYE |
|||||
|
8/4/2006 |
|
Deeds |
$139,500 |
DICKERSON JOHN |
GLASS SHAD S JONES JAMMYE |
|||||
| Last Mailed Notice of Value (N.O.V.) Information/History | ||||||||
|---|---|---|---|---|---|---|---|---|
| Year | Date | Market Value | Taxable Market Value | Gross Assessed | Exemption | Net Assessed | ||
|
2026 |
02/06/2026 |
285,000 |
285,000 |
31,350 |
0 |
31,350 |
||
|
2025 |
01/31/2025 |
284,500 |
243,225 |
26,754 |
0 |
26,754 |
||
|
2024 |
01/22/2024 |
269,500 |
231,643 |
25,480 |
0 |
25,480 |
||
|
2023 |
01/23/2023 |
259,000 |
220,613 |
24,266 |
0 |
24,266 |
||
|
2022 |
02/22/2022 |
225,000 |
210,108 |
23,111 |
0 |
23,111 |
||
| Property Building Permit History | |||||||||||
|---|---|---|---|---|---|---|---|---|---|---|---|
| Issued | Permit # | Provided by | Bldg # | Description | Est Construction Cost | Status | |||||
| No Building Permit records returned. | |||||||||||
| Click button on building number to access detailed information: | ||||||
|---|---|---|---|---|---|---|
| Bldg # | Vacant/Improved Land | Bldg Description | Year Built | SqFt | # Stories | |
|
1 |
Improved |
Ranch 1 Story |
1980 |
1,929 |
1 Stories |
|