|
|
|
| Larry Stein Oklahoma County Assessor (405) 713-1200 - Public Access System |
|
|
|
|
|
|
| Real Property Display - Screen Produced 4/4/2026 5:28:20 PM | ||||
|---|---|---|---|---|
| Account: R188308670 | Type: Residential | Location: |
2501 BROOKDALE AVE |
|
| Building Name/Occupant: |
|
EDMOND |
||
| Owner Name 1: | SALEH MONIR |
Parcel PIN#: |
4693-18-830-8670 |
|
| Owner Name 2: | KAKAWAND SOROUSH | 1/4 section #: |
4693 |
|
| Owner Name 3: | EBRAHIMI SAHAR | Parent Acct: |
|
|
| Billing Address: | 2501 BROOKDALE AVE | Tax District: |
|
|
| City, State, Zip | EDMOND, OK 73034 | School System: |
Edmond #12 |
|
|
Country: (If noted) |
Land Size: |
0.2663 Acres |
||
|
Land Value: 40,136 |
|
|||
|
Sect 24-T14N-R3W Qtr NE |
BROOKHAVEN NORTH
Block
013
Lot
007
|
|||
| Full Legal Description: BROOKHAVEN NORTH 013 007 |
| Photo & Sketch (if available) | Comp Sales (ordered by relevancy) |
|
||||||||||||||||||
|
||||||||||||||||||||
| Value History (*The County Treasurer 405-713-1300 posts & collects actual tax amounts. Contact information HERE) | |||||||||||||
|---|---|---|---|---|---|---|---|---|---|---|---|---|---|
| Year | Market Value | Taxable Mkt Value | Gross Assessed | Exemption | Net Assessed | Millage | Est. Tax | Tax Savings | |||||
|
2026 |
308,000 |
306,425 |
33,706 |
2,000 |
31,706 |
105.16 |
$3,334 |
$229 |
|||||
|
2025 |
308,000 |
306,425 |
33,706 |
2,000 |
31,706 |
105.16 |
$3,334 |
$229 |
|||||
|
2024 |
297,500 |
297,500 |
32,725 |
0 |
32,725 |
105.03 |
$3,437 |
$0 |
|||||
|
2023 |
285,000 |
186,076 |
20,468 |
1,000 |
19,468 |
104.24 |
$2,029 |
$1,239 |
|||||
|
2022 |
246,500 |
186,076 |
20,468 |
1,000 |
19,468 |
104.64 |
$2,037 |
$800 |
|||||
| Property Account Status/Adjustments/Exemptions | ||
|---|---|---|
| Account # | Exemption Description | Amount |
|
R188308670 |
3% Cap Homestead |
0 |
|
R188308670 |
Freeze Senior Valuation |
0 |
|
R188308670 |
Homestead |
1,000 |
|
R188308670 |
Senior Additional Homestead |
1,000 |
| Property Deed Transaction History (Recorded in the County Clerk's Office) | ||||||||||
|---|---|---|---|---|---|---|---|---|---|---|
| Date | Type | Book | Page | Price | Grantor | Grantee | ||||
|
10/20/2023 |
|
Deeds |
$308,000 |
MCCOLLOM MARY A & DAVID L |
SALEH MONIR |
|||||
|
9/14/2016 |
|
Deeds |
$0 |
MCCOLLOM MARY A & DAVID L |
MCCOLLOM MARY A & DAVID L |
|||||
|
10/4/2010 |
|
Deeds |
$0 |
MCCOLLOM MARY A |
MCCOLLOM MARY A & DAVID L |
|||||
|
2/5/2008 |
|
Deeds |
$0 |
MCCOLLOM DAVID LINK & MARY A |
MCCOLLOM MARY A |
|||||
|
8/29/1989 |
|
Historical |
$0 |
DEAN STEPHEN P & BETSY D |
MCCOLLOM DAVID LINK & MARY A |
|||||
| Last Mailed Notice of Value (N.O.V.) Information/History | ||||||||
|---|---|---|---|---|---|---|---|---|
| Year | Date | Market Value | Taxable Market Value | Gross Assessed | Exemption | Net Assessed | ||
|
2025 |
01/31/2025 |
308,000 |
308,000 |
33,880 |
0 |
33,880 |
||
|
2024 |
01/22/2024 |
297,500 |
297,500 |
32,725 |
0 |
32,725 |
||
|
2023 |
01/23/2023 |
285,000 |
186,076 |
20,468 |
1,000 |
19,468 |
||
|
2022 |
02/22/2022 |
246,500 |
186,076 |
20,468 |
1,000 |
19,468 |
||
|
2021 |
02/24/2021 |
223,000 |
186,076 |
20,468 |
1,000 |
19,468 |
||
| Property Building Permit History | ||||||
|---|---|---|---|---|---|---|
| Issued | Permit # | Provided by | Bldg # | Description | Est Construction Cost | Status |
|
5/1/1996 |
10260285 |
EDMOND |
1 |
Swimming Pool |
18,885 |
Inactive |
| Click button on building number to access detailed information: | ||||||
|---|---|---|---|---|---|---|
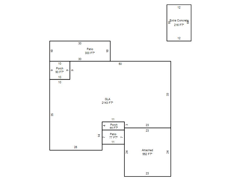
| Bldg # | Vacant/Improved Land | Bldg Description | Year Built | SqFt | # Stories | |
|
1 |
Improved |
Ranch 1 Story |
1980 |
2,143 |
1 Stories |
|