|
|
|
| Larry Stein Oklahoma County Assessor (405) 713-1200 - Public Access System |
|
|
|
|
|
|
| Real Property Display - Screen Produced 4/2/2026 8:42:40 AM | ||||
|---|---|---|---|---|
| Account: R211401230 | Type: Residential | Location: |
3024 WAKEFIELD RD |
|
| Building Name/Occupant: |
|
EDMOND |
||
| Owner Name 1: | SELVIDGE JASON |
Parcel PIN#: |
4459-21-140-1230 |
|
| Owner Name 2: | SELVIDGE AMY | 1/4 section #: |
4459 |
|
| Owner Name 3: | Parent Acct: |
4459-16-863-1400 |
||
| Billing Address: | 3024 WAKEFIELD RD | Tax District: |
|
|
| City, State, Zip | EDMOND, OK 73034-9491 | School System: |
Edmond #12 |
|
|
Country: (If noted) |
Land Size: |
0.1839 Acres |
||
|
Land Value: 74,915 |
|
|||
|
Sect 15-T14N-R2W Qtr SW |
HAMPDEN HOLLOW II
Block
007
Lot
006
|
|||
| Full Legal Description: HAMPDEN HOLLOW II 007 006 |
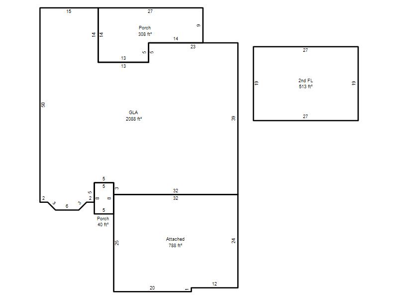
| Photo & Sketch (if available) | Comp Sales (ordered by relevancy) |
|
|||||||||||||||
|
|||||||||||||||||
| Value History (*The County Treasurer 405-713-1300 posts & collects actual tax amounts. Contact information HERE) | |||||||||||||
|---|---|---|---|---|---|---|---|---|---|---|---|---|---|
| Year | Market Value | Taxable Mkt Value | Gross Assessed | Exemption | Net Assessed | Millage | Est. Tax | Tax Savings | |||||
|
2026 |
454,500 |
454,500 |
49,995 |
0 |
49,995 |
105.16 |
$5,257 |
$0 |
|||||
|
2025 |
463,500 |
409,624 |
45,058 |
0 |
45,058 |
105.16 |
$4,738 |
$623 |
|||||
|
2024 |
456,500 |
390,119 |
42,912 |
0 |
42,912 |
105.03 |
$4,507 |
$767 |
|||||
|
2023 |
444,000 |
371,542 |
40,869 |
0 |
40,869 |
104.24 |
$4,260 |
$831 |
|||||
|
2022 |
385,000 |
353,850 |
38,923 |
0 |
38,923 |
104.64 |
$4,073 |
$359 |
|||||
| Property Account Status/Adjustments/Exemptions | ||||||
|---|---|---|---|---|---|---|
| Account # | Exemption Description | Amount | ||||
| No adjustment/exemption records returned. | ||||||
| Property Deed Transaction History (Recorded in the County Clerk's Office) | |||||||
|---|---|---|---|---|---|---|---|
| Date | Type | Book | Page | Price | Grantor | Grantee | |
|
7/28/2025 |
|
Deeds |
$400,000 |
HABBEN ANGELA SUE |
SELVIDGE JASON |
||
|
1/15/2020 |
|
Deeds |
$335,000 |
PILLAR PAUL S |
HABBEN ANGELA SUE |
||
|
7/17/2015 |
|
Deeds |
$329,000 |
HIGHLANDS LLC |
PILLAR PAUL S |
||
|
4/8/2014 |
|
Deeds |
$35,000 |
GAP DEVELOPMENT LLC |
HIGHLANDS LLC |
||
| Last Mailed Notice of Value (N.O.V.) Information/History | ||||||||
|---|---|---|---|---|---|---|---|---|
| Year | Date | Market Value | Taxable Market Value | Gross Assessed | Exemption | Net Assessed | ||
|
2026 |
02/06/2026 |
454,500 |
454,500 |
49,995 |
0 |
49,995 |
||
|
2025 |
01/31/2025 |
463,500 |
409,624 |
45,058 |
0 |
45,058 |
||
|
2024 |
01/22/2024 |
456,500 |
390,119 |
42,912 |
0 |
42,912 |
||
|
2023 |
01/23/2023 |
444,000 |
371,542 |
40,869 |
0 |
40,869 |
||
|
2022 |
02/22/2022 |
385,000 |
353,850 |
38,923 |
0 |
38,923 |
||
| Property Building Permit History | ||||||
|---|---|---|---|---|---|---|
| Issued | Permit # | Provided by | Bldg # | Description | Est Construction Cost | Status |
|
5/7/2014 |
10462729 |
EDMOND |
1 |
Main Dwellin |
328,000 |
Inactive |
| Click button on building number to access detailed information: | ||||||
|---|---|---|---|---|---|---|
| Bldg # | Vacant/Improved Land | Bldg Description | Year Built | SqFt | # Stories | |
|
1 |
Improved |
1½ Story Fin |
2014 |
2,601 |
1.5 Stories |
|