|
|
|
| Larry Stein Oklahoma County Assessor (405) 713-1200 - Public Access System |
|
|
|
|
|
|
| Real Property Display - Screen Produced 4/2/2026 8:42:39 AM | ||||
|---|---|---|---|---|
| Account: R211401310 | Type: Residential | Location: |
5925 REGIS CT |
|
| Building Name/Occupant: |
|
EDMOND |
||
| Owner Name 1: | MADLUNG BRENDAN L & CHELSEA L |
Parcel PIN#: |
4459-21-140-1310 |
|
| Owner Name 2: | 1/4 section #: |
4459 |
||
| Owner Name 3: | Parent Acct: |
4459-16-863-1400 |
||
| Billing Address: | 5925 REGIS CT | Tax District: |
|
|
| City, State, Zip | EDMOND, OK 73034-8010 | School System: |
Edmond #12 |
|
|
Country: (If noted) |
Land Size: |
0.1952 Acres |
||
|
Land Value: 79,506 |
|
|||
|
Sect 15-T14N-R2W Qtr SW |
HAMPDEN HOLLOW II
Block
008
Lot
002
|
|||
| Full Legal Description: HAMPDEN HOLLOW II 008 002 |
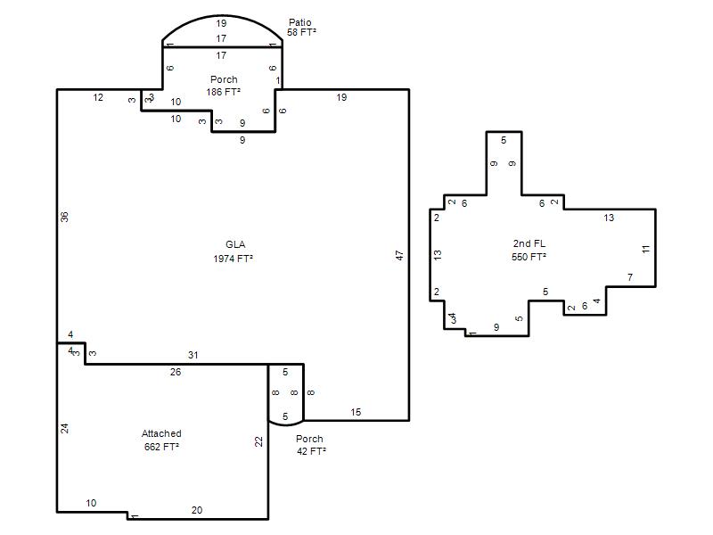
| Photo & Sketch (if available) | Comp Sales (ordered by relevancy) |
|
||||||||||||||||||
|
||||||||||||||||||||
| Value History (*The County Treasurer 405-713-1300 posts & collects actual tax amounts. Contact information HERE) | |||||||||||||
|---|---|---|---|---|---|---|---|---|---|---|---|---|---|
| Year | Market Value | Taxable Mkt Value | Gross Assessed | Exemption | Net Assessed | Millage | Est. Tax | Tax Savings | |||||
|
2026 |
438,000 |
438,000 |
48,180 |
1,000 |
47,180 |
105.16 |
$4,961 |
$105 |
|||||
|
2025 |
447,500 |
398,686 |
43,855 |
0 |
43,855 |
105.16 |
$4,612 |
$565 |
|||||
|
2024 |
442,000 |
379,701 |
41,766 |
0 |
41,766 |
105.03 |
$4,387 |
$720 |
|||||
|
2023 |
430,500 |
361,620 |
39,778 |
0 |
39,778 |
104.24 |
$4,146 |
$790 |
|||||
|
2022 |
374,000 |
344,400 |
37,884 |
0 |
37,884 |
104.64 |
$3,964 |
$341 |
|||||
| Property Account Status/Adjustments/Exemptions | ||
|---|---|---|
| Account # | Exemption Description | Amount |
|
R211401310 |
Homestead |
1,000 |
| Property Deed Transaction History (Recorded in the County Clerk's Office) | |||||||
|---|---|---|---|---|---|---|---|
| Date | Type | Book | Page | Price | Grantor | Grantee | |
|
10/24/2025 |
|
Deeds |
$420,000 |
MODDIE EVERETT & STACEY |
MADLUNG BRENDAN L & CHELSEA L |
||
|
9/16/2016 |
|
Deeds |
$318,500 |
DINALLO DAVID & KAILA |
MODDIE EVERETT & STACEY |
||
|
10/16/2014 |
|
Deeds |
$321,000 |
TABER BUILT HOMES LLC |
DINALLO DAVID & KAILA |
||
|
10/21/2013 |
|
Deeds |
$43,000 |
GAP DEVELOPMENT LLC |
TABER BUILT HOMES LLC |
||
| Last Mailed Notice of Value (N.O.V.) Information/History | ||||||||
|---|---|---|---|---|---|---|---|---|
| Year | Date | Market Value | Taxable Market Value | Gross Assessed | Exemption | Net Assessed | ||
|
2026 |
02/06/2026 |
438,000 |
438,000 |
48,180 |
0 |
48,180 |
||
|
2025 |
01/31/2025 |
447,500 |
398,686 |
43,855 |
0 |
43,855 |
||
|
2024 |
01/22/2024 |
442,000 |
379,701 |
41,766 |
0 |
41,766 |
||
|
2023 |
01/23/2023 |
430,500 |
361,620 |
39,778 |
0 |
39,778 |
||
|
2022 |
02/22/2022 |
374,000 |
344,400 |
37,884 |
0 |
37,884 |
||
| Property Building Permit History | ||||||
|---|---|---|---|---|---|---|
| Issued | Permit # | Provided by | Bldg # | Description | Est Construction Cost | Status |
|
10/22/2013 |
10456152 |
EDMOND |
1 |
Main Dwellin |
250,000 |
Inactive |
| Click button on building number to access detailed information: | ||||||
|---|---|---|---|---|---|---|
| Bldg # | Vacant/Improved Land | Bldg Description | Year Built | SqFt | # Stories | |
|
1 |
Improved |
1½ Story Fin |
2014 |
2,524 |
1.5 Stories |
|