|
|
|
| Larry Stein Oklahoma County Assessor (405) 713-1200 - Public Access System |
|
|
|
|
|
|
| Real Property Display - Screen Produced 4/13/2026 12:32:40 AM | ||||
|---|---|---|---|---|
| Account: R062141600 | Type: Residential | Location: |
1315 NW 20TH ST |
|
| Building Name/Occupant: |
|
OKLAHOMA CITY |
||
| Owner Name 1: | GRENIER DAYNE R |
Parcel PIN#: |
2713-06-214-1600 |
|
| Owner Name 2: | HALL MOLLY C | 1/4 section #: |
2713 |
|
| Owner Name 3: | Parent Acct: |
|
||
| Billing Address: | 1315 NW 20TH ST | Tax District: |
|
|
| City, State, Zip | OKLAHOMA CITY, OK 73106-4005 | School System: |
Oklahoma City #89 |
|
|
Country: (If noted) |
Land Size: |
0.2755 Acres |
||
|
Land Value: 73,200 |
|
|||
|
Sect 29-T12N-R3W Qtr NE |
UNIVERSITY PLACE ADD
Block
002
Lot
008
|
|||
| Full Legal Description: UNIVERSITY PLACE ADD 002 008 |
| Photo & Sketch (if available) | Comp Sales (ordered by relevancy) |
|
||||||||||||||||||
|
||||||||||||||||||||
| Value History (*The County Treasurer 405-713-1300 posts & collects actual tax amounts. Contact information HERE) | |||||||||||||
|---|---|---|---|---|---|---|---|---|---|---|---|---|---|
| Year | Market Value | Taxable Mkt Value | Gross Assessed | Exemption | Net Assessed | Millage | Est. Tax | Tax Savings | |||||
|
2026 |
532,000 |
532,000 |
58,520 |
0 |
58,520 |
122.90 |
$7,192 |
$0 |
|||||
|
2025 |
549,000 |
549,000 |
60,390 |
0 |
60,390 |
122.90 |
$7,422 |
$0 |
|||||
|
2024 |
543,000 |
509,762 |
56,073 |
1,000 |
55,073 |
123.89 |
$6,823 |
$577 |
|||||
|
2023 |
542,500 |
494,915 |
54,440 |
1,000 |
53,440 |
122.82 |
$6,564 |
$766 |
|||||
|
2022 |
480,500 |
480,500 |
52,855 |
1,000 |
51,855 |
117.63 |
$6,100 |
$118 |
|||||
| Property Account Status/Adjustments/Exemptions | ||
|---|---|---|
| Account # | Exemption Description | Amount |
|
R062141600 |
5% Capped Account |
0 |
| Property Deed Transaction History (Recorded in the County Clerk's Office) | ||||||||||
|---|---|---|---|---|---|---|---|---|---|---|
| Date | Type | Book | Page | Price | Grantor | Grantee | ||||
|
8/29/2024 |
|
Deeds |
$495,000 |
DEVAUGHN FORREST L |
GRENIER DAYNE R |
|||||
|
1/24/2020 |
|
Deeds |
$485,000 |
STONE BARBARA L |
DEVAUGHN FORREST L |
|||||
|
6/1/2012 |
|
Deeds |
$208,000 |
MURPHY ROBERT J |
STONE BARBARA L |
|||||
|
6/12/2009 |
|
Deeds |
$0 |
MURPHY ROBERT J & KATHRINE A |
MURPHY ROBERT J |
|||||
|
12/20/1995 |
|
Historical |
$98,000 |
HENLEY ROSALIE G & W RICHARD |
MURPHY ROBERT J & KATHRINE A |
|||||
| Last Mailed Notice of Value (N.O.V.) Information/History | ||||||||
|---|---|---|---|---|---|---|---|---|
| Year | Date | Market Value | Taxable Market Value | Gross Assessed | Exemption | Net Assessed | ||
|
2025 |
02/14/2025 |
549,000 |
549,000 |
60,390 |
0 |
60,390 |
||
|
2024 |
02/13/2024 |
543,000 |
509,762 |
56,073 |
1,000 |
55,073 |
||
|
2023 |
02/14/2023 |
542,500 |
494,915 |
54,440 |
1,000 |
53,440 |
||
|
2022 |
03/15/2022 |
480,500 |
480,500 |
52,855 |
1,000 |
51,855 |
||
|
2021 |
03/19/2021 |
480,000 |
480,000 |
52,800 |
1,000 |
51,800 |
||
| Property Building Permit History | ||||||
|---|---|---|---|---|---|---|
| Issued | Permit # | Provided by | Bldg # | Description | Est Construction Cost | Status |
|
7/10/2012 |
10443391 |
OKLAHOMA CITY |
1 |
Remodeled |
42,000 |
Inactive |
| Click button on building number to access detailed information: | ||||||
|---|---|---|---|---|---|---|
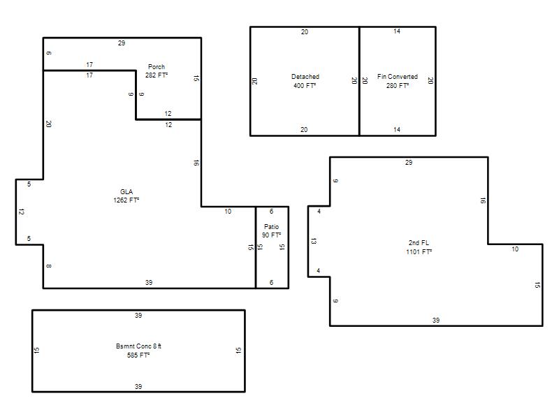
| Bldg # | Vacant/Improved Land | Bldg Description | Year Built | SqFt | # Stories | |
|
1 |
Improved |
2 Story |
1923 |
2,363 |
2 Stories |
|