|
|
|
| Larry Stein Oklahoma County Assessor (405) 713-1200 - Public Access System |
|
|
|
|
|
|
| Real Property Display - Screen Produced 4/13/2026 12:35:18 AM | ||||
|---|---|---|---|---|
| Account: R062144400 | Type: Residential | Location: |
1420 NW 20TH ST |
|
| Building Name/Occupant: |
|
OKLAHOMA CITY |
||
| Owner Name 1: | DEMOSS DANIEL J |
Parcel PIN#: |
2713-06-214-4400 |
|
| Owner Name 2: | 1/4 section #: |
2713 |
||
| Owner Name 3: | Parent Acct: |
|
||
| Billing Address: | 1420 NW 20TH ST | Tax District: |
|
|
| City, State, Zip | OKLAHOMA CITY, OK 73106-4014 | School System: |
Oklahoma City #89 |
|
|
Country: (If noted) |
Land Size: |
0.1722 Acres |
||
|
Land Value: 41,625 |
|
|||
|
Sect 29-T12N-R3W Qtr NE |
UNIVERSITY PLACE ADD
Block
004
Lot
005
|
|||
| Full Legal Description: UNIVERSITY PLACE ADD 004 005 |
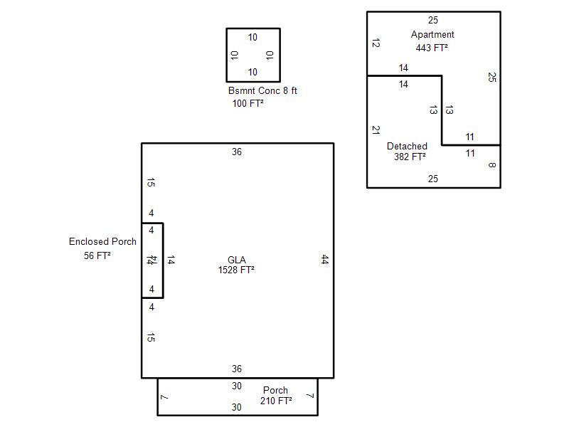
| Photo & Sketch (if available) | Comp Sales (ordered by relevancy) |
|
||||||||||||||||||
|
||||||||||||||||||||
| Value History (*The County Treasurer 405-713-1300 posts & collects actual tax amounts. Contact information HERE) | |||||||||||||
|---|---|---|---|---|---|---|---|---|---|---|---|---|---|
| Year | Market Value | Taxable Mkt Value | Gross Assessed | Exemption | Net Assessed | Millage | Est. Tax | Tax Savings | |||||
|
2026 |
311,000 |
172,121 |
18,932 |
1,000 |
17,932 |
122.90 |
$2,204 |
$2,000 |
|||||
|
2025 |
313,000 |
167,108 |
18,381 |
1,000 |
17,381 |
122.90 |
$2,136 |
$2,095 |
|||||
|
2024 |
306,500 |
162,241 |
17,845 |
1,000 |
16,845 |
123.89 |
$2,087 |
$2,090 |
|||||
|
2023 |
297,000 |
157,516 |
17,326 |
1,000 |
16,326 |
122.82 |
$2,005 |
$2,007 |
|||||
|
2022 |
259,000 |
152,929 |
16,820 |
1,000 |
15,820 |
117.63 |
$1,861 |
$1,490 |
|||||
| Property Account Status/Adjustments/Exemptions | ||
|---|---|---|
| Account # | Exemption Description | Amount |
|
R062144400 |
3% Cap Homestead |
0 |
|
R062144400 |
Homestead |
1,000 |
| Property Deed Transaction History (Recorded in the County Clerk's Office) | ||||||||||
|---|---|---|---|---|---|---|---|---|---|---|
| Date | Type | Book | Page | Price | Grantor | Grantee | ||||
|
2/13/2014 |
|
Deeds |
$115,000 |
BACON BRIANNA J |
DEMOSS DANIEL J |
|||||
|
11/7/2008 |
|
Deeds |
$74,000 |
ROBINSON STEPHEN A |
BACON BRIANNA J |
|||||
|
5/29/2001 |
|
Deeds |
$63,000 |
THOMPSON FREDERICK K & NANCY V |
ROBINSON STEPHEN A |
|||||
|
5/5/1994 |
|
Historical |
$0 |
NGUYEN BINH THANH |
THOMPSON FREDERICK K & NANCY V |
|||||
|
4/23/1990 |
|
Historical |
$0 |
SECRETARY OF HOUSING |
NGUYEN BINH THANH |
|||||
| Last Mailed Notice of Value (N.O.V.) Information/History | ||||||||
|---|---|---|---|---|---|---|---|---|
| Year | Date | Market Value | Taxable Market Value | Gross Assessed | Exemption | Net Assessed | ||
|
2026 |
02/23/2026 |
311,000 |
172,121 |
18,932 |
1,000 |
17,932 |
||
|
2025 |
02/14/2025 |
313,000 |
167,108 |
18,381 |
1,000 |
17,381 |
||
|
2024 |
02/13/2024 |
306,500 |
162,241 |
17,845 |
1,000 |
16,845 |
||
|
2023 |
02/14/2023 |
297,000 |
157,516 |
17,326 |
1,000 |
16,326 |
||
|
2022 |
03/15/2022 |
259,000 |
152,929 |
16,820 |
1,000 |
15,820 |
||
| Property Building Permit History | |||||||||||
|---|---|---|---|---|---|---|---|---|---|---|---|
| Issued | Permit # | Provided by | Bldg # | Description | Est Construction Cost | Status | |||||
| No Building Permit records returned. | |||||||||||
| Click button on building number to access detailed information: | ||||||
|---|---|---|---|---|---|---|
| Bldg # | Vacant/Improved Land | Bldg Description | Year Built | SqFt | # Stories | |
|
1 |
Improved |
Ranch 1 Story |
1921 |
1,528 |
1 Stories |
|