|
|
|
| Larry Stein Oklahoma County Assessor (405) 713-1200 - Public Access System |
|
|
|
|
|
|
| Real Property Display - Screen Produced 4/12/2026 8:17:24 PM | ||||
|---|---|---|---|---|
| Account: R045006500 | Type: Residential | Location: |
1909 N MCKINLEY AVE |
|
| Building Name/Occupant: |
|
OKLAHOMA CITY |
||
| Owner Name 1: | SOTER GEORGE JAMES |
Parcel PIN#: |
2713-04-500-6500 |
|
| Owner Name 2: | CARR ASHLEY LYNN | 1/4 section #: |
2713 |
|
| Owner Name 3: | Parent Acct: |
|
||
| Billing Address: | 1909 N MCKINLEY AVE | Tax District: |
|
|
| City, State, Zip | OKLAHOMA CITY, OK 73106-4256 | School System: |
Oklahoma City #89 |
|
|
Country: (If noted) |
Land Size: |
0.0562 Acres |
||
|
Land Value: 13,598 |
|
|||
|
Sect 29-T12N-R3W Qtr NE |
UNIVERSITY ADDITION
Block
056
Lot
000
|
|||
| Full Legal Description: UNIVERSITY ADDITION 056 000 N49.4FT LOTS 17 & 18 |
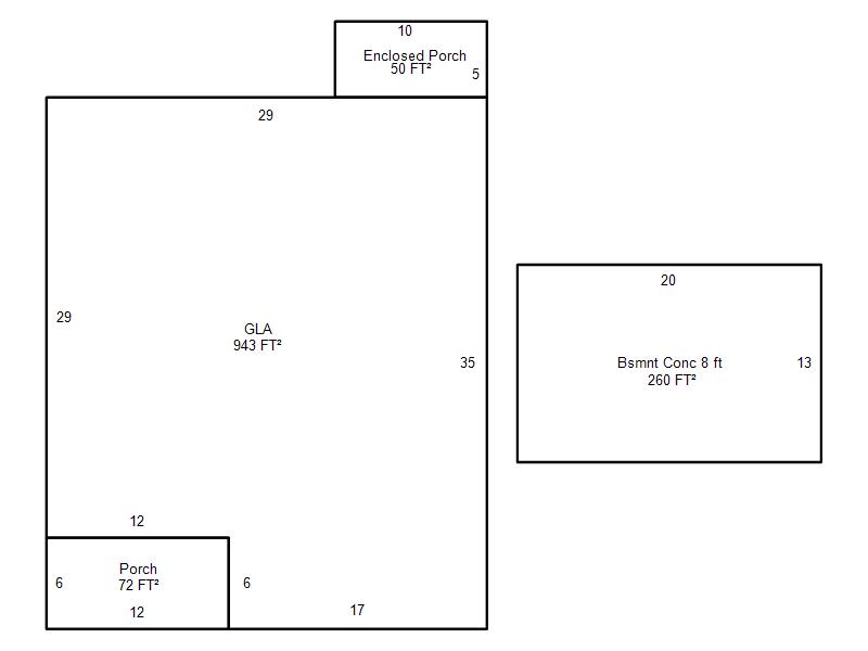
| Photo & Sketch (if available) | Comp Sales (ordered by relevancy) |
|
||||||||||||||||||
|
||||||||||||||||||||
| Value History (*The County Treasurer 405-713-1300 posts & collects actual tax amounts. Contact information HERE) | |||||||||||||
|---|---|---|---|---|---|---|---|---|---|---|---|---|---|
| Year | Market Value | Taxable Mkt Value | Gross Assessed | Exemption | Net Assessed | Millage | Est. Tax | Tax Savings | |||||
|
2026 |
185,500 |
185,500 |
20,405 |
1,000 |
19,405 |
122.90 |
$2,385 |
$123 |
|||||
|
2025 |
186,500 |
186,500 |
20,515 |
0 |
20,515 |
122.90 |
$2,521 |
$0 |
|||||
|
2024 |
178,500 |
178,500 |
19,635 |
0 |
19,635 |
123.89 |
$2,433 |
$0 |
|||||
|
2023 |
228,000 |
228,000 |
25,080 |
0 |
25,080 |
122.82 |
$3,080 |
$0 |
|||||
|
2022 |
112,500 |
77,120 |
8,481 |
0 |
8,481 |
117.63 |
$998 |
$458 |
|||||
| Property Account Status/Adjustments/Exemptions | ||
|---|---|---|
| Account # | Exemption Description | Amount |
|
R045006500 |
Homestead |
1,000 |
| Property Deed Transaction History (Recorded in the County Clerk's Office) | ||||||||||
|---|---|---|---|---|---|---|---|---|---|---|
| Date | Type | Book | Page | Price | Grantor | Grantee | ||||
|
11/11/2025 |
|
Deeds |
$235,000 |
SHADY OAKS COTTAGES LLC |
SOTER GEORGE JAMES |
|||||
|
4/6/2022 |
|
Deeds |
$227,000 |
HOME HEROES LLC |
SHADY OAKS COTTAGES LLC |
|||||
|
7/15/2011 |
|
Hmstd Off & |
$0 |
METRO AREA INVESTORS LLC |
HOME HEROES LLC |
|||||
|
4/20/2010 |
|
Deeds |
$0 |
HERRING WILLARD G HERRING D ANN |
CLARK D ANN |
|||||
|
4/20/2010 |
|
Mult Parcel |
$76,000 |
CLARK D ANN |
HOME HEROES LLC |
|||||
| Last Mailed Notice of Value (N.O.V.) Information/History | ||||||||
|---|---|---|---|---|---|---|---|---|
| Year | Date | Market Value | Taxable Market Value | Gross Assessed | Exemption | Net Assessed | ||
|
2025 |
02/14/2025 |
186,500 |
186,500 |
20,515 |
0 |
20,515 |
||
|
2023 |
02/14/2023 |
228,000 |
228,000 |
25,080 |
0 |
25,080 |
||
|
2022 |
03/15/2022 |
112,500 |
77,120 |
8,481 |
0 |
8,481 |
||
|
2021 |
03/19/2021 |
102,000 |
73,448 |
8,079 |
0 |
8,079 |
||
|
2020 |
03/10/2020 |
85,500 |
66,141 |
7,275 |
0 |
7,275 |
||
| Property Building Permit History | ||||||
|---|---|---|---|---|---|---|
| Issued | Permit # | Provided by | Bldg # | Description | Est Construction Cost | Status |
|
10/20/2020 |
|
|
1 |
Remodeled |
|
Inactive |
| Click button on building number to access detailed information: | ||||||
|---|---|---|---|---|---|---|
| Bldg # | Vacant/Improved Land | Bldg Description | Year Built | SqFt | # Stories | |
|
1 |
Improved |
Ranch 1 Story |
1925 |
943 |
1 Stories |
|