|
|
|
| Larry Stein Oklahoma County Assessor (405) 713-1200 - Public Access System |
|
|
|
|
|
|
| Real Property Display - Screen Produced 4/12/2026 12:49:15 PM | ||||
|---|---|---|---|---|
| Account: R063741260 | Type: Residential | Location: |
2334 NW 22ND ST |
|
| Building Name/Occupant: |
|
OKLAHOMA CITY |
||
| Owner Name 1: | PIERCE WANDA JANE |
Parcel PIN#: |
2717-06-374-1260 |
|
| Owner Name 2: | 1/4 section #: |
2717 |
||
| Owner Name 3: | Parent Acct: |
|
||
| Billing Address: | 2334 NW 22ND ST | Tax District: |
|
|
| City, State, Zip | OKLAHOMA CITY, OK 73107-3331 | School System: |
Oklahoma City #89 |
|
|
Country: (If noted) |
Land Size: |
0.1791 Acres |
||
|
Land Value: 33,930 |
|
|||
|
Sect 30-T12N-R3W Qtr NE |
AURORA ADDITION
Block
005
Lot
000
|
|||
| Full Legal Description: AURORA ADDITION 005 000 E52FT OF N 1/2 |
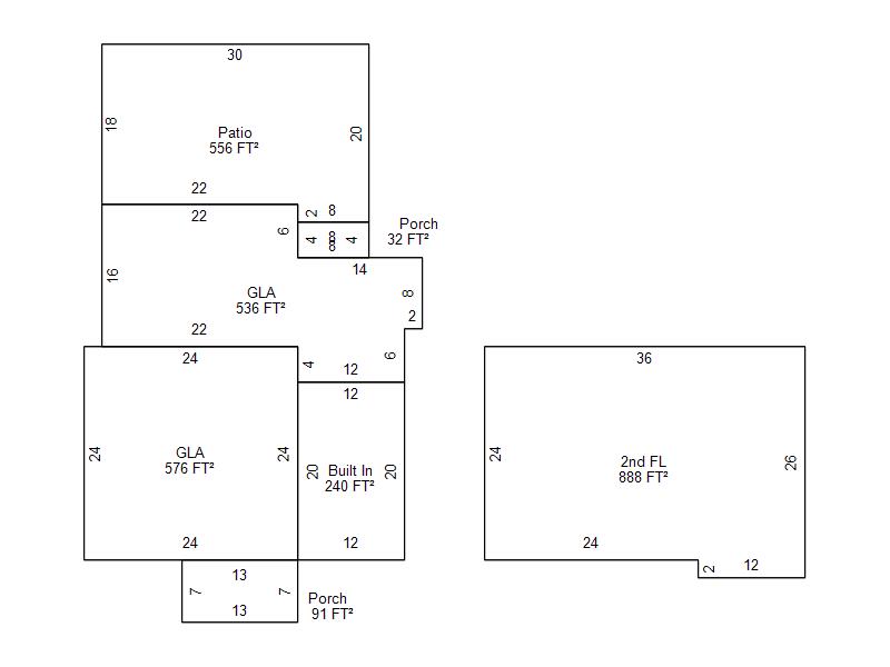
| Photo & Sketch (if available) | Comp Sales (ordered by relevancy) |
|
||||||||||||||||||
|
||||||||||||||||||||
| Value History (*The County Treasurer 405-713-1300 posts & collects actual tax amounts. Contact information HERE) | |||||||||||||
|---|---|---|---|---|---|---|---|---|---|---|---|---|---|
| Year | Market Value | Taxable Mkt Value | Gross Assessed | Exemption | Net Assessed | Millage | Est. Tax | Tax Savings | |||||
|
2026 |
226,000 |
98,661 |
10,852 |
1,000 |
9,852 |
122.90 |
$1,211 |
$1,844 |
|||||
|
2025 |
219,000 |
98,661 |
10,852 |
1,000 |
9,852 |
122.90 |
$1,211 |
$1,750 |
|||||
|
2024 |
216,500 |
98,661 |
10,852 |
1,000 |
9,852 |
123.89 |
$1,221 |
$1,730 |
|||||
|
2023 |
211,000 |
98,661 |
10,852 |
1,000 |
9,852 |
122.82 |
$1,210 |
$1,641 |
|||||
|
2022 |
164,000 |
98,661 |
10,852 |
1,000 |
9,852 |
117.63 |
$1,159 |
$963 |
|||||
| Property Account Status/Adjustments/Exemptions | ||
|---|---|---|
| Account # | Exemption Description | Amount |
|
R063741260 |
Freeze Senior Valuation |
0 |
|
R063741260 |
3% Cap Homestead |
0 |
|
R063741260 |
Homestead |
1,000 |
| Property Deed Transaction History (Recorded in the County Clerk's Office) | |||||||
|---|---|---|---|---|---|---|---|
| Date | Type | Book | Page | Price | Grantor | Grantee | |
|
3/12/1992 |
|
Historical |
$0 |
PIERCE LANCE M & WANDA J |
PIERCE WANDA JANE |
||
|
1/1/1987 |
|
Historical |
$0 |
TRENT WANDA J |
PIERCE LANCE M & WANDA J |
||
|
3/1/1979 |
|
Historical |
$0 |
|
TRENT WANDA J |
||
| Last Mailed Notice of Value (N.O.V.) Information/History | ||||||||
|---|---|---|---|---|---|---|---|---|
| Year | Date | Market Value | Taxable Market Value | Gross Assessed | Exemption | Net Assessed | ||
|
2026 |
02/23/2026 |
226,000 |
98,661 |
10,852 |
1,000 |
9,852 |
||
|
2025 |
02/14/2025 |
219,000 |
98,661 |
10,852 |
1,000 |
9,852 |
||
|
2024 |
02/13/2024 |
216,500 |
98,661 |
10,852 |
1,000 |
9,852 |
||
|
2023 |
02/14/2023 |
211,000 |
98,661 |
10,852 |
1,000 |
9,852 |
||
|
2022 |
03/15/2022 |
164,000 |
98,661 |
10,852 |
1,000 |
9,852 |
||
| Property Building Permit History | |||||||||||
|---|---|---|---|---|---|---|---|---|---|---|---|
| Issued | Permit # | Provided by | Bldg # | Description | Est Construction Cost | Status | |||||
| No Building Permit records returned. | |||||||||||
| Click button on building number to access detailed information: | ||||||
|---|---|---|---|---|---|---|
| Bldg # | Vacant/Improved Land | Bldg Description | Year Built | SqFt | # Stories | |
|
1 |
Improved |
2 Story |
1939 |
2,000 |
2 Stories |
|