|
|
|
| Larry Stein Oklahoma County Assessor (405) 713-1200 - Public Access System |
|
|
|
|
|
|
| Real Property Display - Screen Produced 4/12/2026 6:30:45 PM | ||||
|---|---|---|---|---|
| Account: R060030760 | Type: Residential | Location: |
2517 NW 13TH ST |
|
| Building Name/Occupant: |
|
OKLAHOMA CITY |
||
| Owner Name 1: | HIGH MESA LLC |
Parcel PIN#: |
2719-06-003-0760 |
|
| Owner Name 2: | 1/4 section #: |
2719 |
||
| Owner Name 3: | Parent Acct: |
|
||
| Billing Address: | PO BOX 12266 | Tax District: |
|
|
| City, State, Zip | OKLAHOMA CITY, OK 73157-2266 | School System: |
Oklahoma City #89 |
|
|
Country: (If noted) |
Land Size: |
0.1722 Acres |
||
|
Land Value: 32,625 |
|
|||
|
Sect 30-T12N-R3W Qtr SW |
MILLER BLVD RESUB N 1/2
Block
003
Lot
020
|
|||
| Full Legal Description: MILLER BLVD RESUB N 1/2 003 020 |
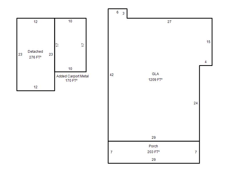
| Photo & Sketch (if available) | Comp Sales (ordered by relevancy) |
|
||||||||||||||||||
|
||||||||||||||||||||
| Value History (*The County Treasurer 405-713-1300 posts & collects actual tax amounts. Contact information HERE) | |||||||||||||
|---|---|---|---|---|---|---|---|---|---|---|---|---|---|
| Year | Market Value | Taxable Mkt Value | Gross Assessed | Exemption | Net Assessed | Millage | Est. Tax | Tax Savings | |||||
|
2026 |
178,500 |
135,592 |
14,914 |
0 |
14,914 |
122.90 |
$1,833 |
$580 |
|||||
|
2025 |
179,500 |
129,136 |
14,204 |
0 |
14,204 |
122.90 |
$1,746 |
$681 |
|||||
|
2024 |
173,000 |
122,987 |
13,528 |
0 |
13,528 |
123.89 |
$1,676 |
$682 |
|||||
|
2023 |
165,500 |
117,131 |
12,883 |
0 |
12,883 |
122.82 |
$1,582 |
$653 |
|||||
|
2022 |
129,500 |
111,554 |
12,270 |
0 |
12,270 |
117.63 |
$1,443 |
$232 |
|||||
| Property Account Status/Adjustments/Exemptions | ||
|---|---|---|
| Account # | Exemption Description | Amount |
|
R060030760 |
5% Capped Account |
0 |
| Property Deed Transaction History (Recorded in the County Clerk's Office) | |||||||
|---|---|---|---|---|---|---|---|
| Date | Type | Book | Page | Price | Grantor | Grantee | |
|
5/13/1997 |
|
Historical |
$32,500 |
GIDDENS THOMAS H TRUST |
HIGH MESA LLC |
||
|
3/7/1996 |
|
Historical |
$0 |
GIDDENS THOMAS H |
GIDDENS THOMAS H TRUST |
||
|
11/2/1987 |
|
Historical |
$0 |
GIDDENS IUKA & THOMAS H |
GIDDENS THOMAS H |
||
|
11/11/1911 |
|
Historical |
$0 |
|
GIDDENS IUKA & THOMAS H |
||
| Last Mailed Notice of Value (N.O.V.) Information/History | ||||||||
|---|---|---|---|---|---|---|---|---|
| Year | Date | Market Value | Taxable Market Value | Gross Assessed | Exemption | Net Assessed | ||
|
2026 |
02/23/2026 |
178,500 |
135,592 |
14,914 |
0 |
14,914 |
||
|
2025 |
02/14/2025 |
179,500 |
129,136 |
14,204 |
0 |
14,204 |
||
|
2024 |
02/13/2024 |
173,000 |
122,987 |
13,528 |
0 |
13,528 |
||
|
2023 |
02/14/2023 |
165,500 |
117,131 |
12,883 |
0 |
12,883 |
||
|
2022 |
03/15/2022 |
129,500 |
111,554 |
12,270 |
0 |
12,270 |
||
| Property Building Permit History | |||||||||||
|---|---|---|---|---|---|---|---|---|---|---|---|
| Issued | Permit # | Provided by | Bldg # | Description | Est Construction Cost | Status | |||||
| No Building Permit records returned. | |||||||||||
| Click button on building number to access detailed information: | ||||||
|---|---|---|---|---|---|---|
| Bldg # | Vacant/Improved Land | Bldg Description | Year Built | SqFt | # Stories | |
|
1 |
Improved |
Ranch 1 Story |
1927 |
1,209 |
1 Stories |
|