|
|
|
| Larry Stein Oklahoma County Assessor (405) 713-1200 - Public Access System |
|
|
|
|
|
|
| Real Property Display - Screen Produced 4/12/2026 6:12:51 PM | ||||
|---|---|---|---|---|
| Account: R060042630 | Type: Residential | Location: |
2640 NW 14TH ST |
|
| Building Name/Occupant: |
|
OKLAHOMA CITY |
||
| Owner Name 1: | LINDSAY DANNY D & SHELLY L |
Parcel PIN#: |
2719-06-004-2630 |
|
| Owner Name 2: | 1/4 section #: |
2719 |
||
| Owner Name 3: | Parent Acct: |
|
||
| Billing Address: | 2640 NW 14TH ST | Tax District: |
|
|
| City, State, Zip | OKLAHOMA CITY, OK 73107-4818 | School System: |
Oklahoma City #89 |
|
|
Country: (If noted) |
Land Size: |
0.1722 Acres |
||
|
Land Value: 32,625 |
|
|||
|
Sect 30-T12N-R3W Qtr SW |
MILLERS BOULEVARD AMD
Block
012
Lot
011
|
|||
| Full Legal Description: MILLERS BOULEVARD AMD 012 011 |
| Photo & Sketch (if available) | Comp Sales (ordered by relevancy) |
|
||||||||||||||||||
|
||||||||||||||||||||
| Value History (*The County Treasurer 405-713-1300 posts & collects actual tax amounts. Contact information HERE) | |||||||||||||
|---|---|---|---|---|---|---|---|---|---|---|---|---|---|
| Year | Market Value | Taxable Mkt Value | Gross Assessed | Exemption | Net Assessed | Millage | Est. Tax | Tax Savings | |||||
|
2026 |
200,000 |
151,633 |
16,679 |
0 |
16,679 |
122.90 |
$2,050 |
$654 |
|||||
|
2025 |
195,500 |
144,413 |
15,885 |
0 |
15,885 |
122.90 |
$1,952 |
$691 |
|||||
|
2024 |
187,500 |
137,537 |
15,128 |
0 |
15,128 |
123.89 |
$1,874 |
$681 |
|||||
|
2023 |
184,000 |
130,988 |
14,408 |
0 |
14,408 |
122.82 |
$1,770 |
$716 |
|||||
|
2022 |
144,000 |
124,751 |
13,721 |
0 |
13,721 |
117.63 |
$1,614 |
$249 |
|||||
| Property Account Status/Adjustments/Exemptions | ||
|---|---|---|
| Account # | Exemption Description | Amount |
|
R060042630 |
5% Capped Account |
0 |
| Property Deed Transaction History (Recorded in the County Clerk's Office) | |||||||
|---|---|---|---|---|---|---|---|
| Date | Type | Book | Page | Price | Grantor | Grantee | |
|
2/1/1994 |
|
Historical |
$40,000 |
DENNIS FARRIS & PATSY |
LINDSAY DANNY D & SHELLY L |
||
|
8/1/1990 |
|
Historical |
$0 |
WARREN SUSAN C |
DENNIS FARRIS & PATSY |
||
|
7/5/1990 |
|
Historical |
$0 |
SHAW JUDITH C |
WARREN SUSAN C |
||
|
6/21/1988 |
|
Historical |
$0 |
CHECHOVSKY ROY LEE |
SHAW JUDITH C |
||
|
7/1/1983 |
|
Historical |
$0 |
|
CHECHOVSKY ROY LEE |
||
| Last Mailed Notice of Value (N.O.V.) Information/History | ||||||||
|---|---|---|---|---|---|---|---|---|
| Year | Date | Market Value | Taxable Market Value | Gross Assessed | Exemption | Net Assessed | ||
|
2026 |
02/23/2026 |
200,000 |
151,633 |
16,679 |
0 |
16,679 |
||
|
2025 |
02/14/2025 |
195,500 |
144,413 |
15,885 |
0 |
15,885 |
||
|
2024 |
02/13/2024 |
187,500 |
137,537 |
15,128 |
0 |
15,128 |
||
|
2023 |
02/14/2023 |
184,000 |
130,988 |
14,408 |
0 |
14,408 |
||
|
2022 |
03/15/2022 |
144,000 |
124,751 |
13,721 |
0 |
13,721 |
||
| Property Building Permit History | |||||||||||
|---|---|---|---|---|---|---|---|---|---|---|---|
| Issued | Permit # | Provided by | Bldg # | Description | Est Construction Cost | Status | |||||
| No Building Permit records returned. | |||||||||||
| Click button on building number to access detailed information: | ||||||
|---|---|---|---|---|---|---|
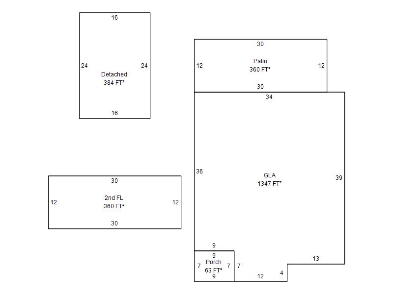
| Bldg # | Vacant/Improved Land | Bldg Description | Year Built | SqFt | # Stories | |
|
1 |
Improved |
1½ Story Fin |
1928 |
1,707 |
1.5 Stories |
|