|
|
|
| Larry Stein Oklahoma County Assessor (405) 713-1200 - Public Access System |
|
|
|
|
|
|
| Real Property Display - Screen Produced 4/12/2026 6:10:02 PM | ||||
|---|---|---|---|---|
| Account: R060042750 | Type: Residential | Location: |
2613 NW 13TH ST |
|
| Building Name/Occupant: |
|
OKLAHOMA CITY |
||
| Owner Name 1: | BASS ANTHONY |
Parcel PIN#: |
2719-06-004-2750 |
|
| Owner Name 2: | 1/4 section #: |
2719 |
||
| Owner Name 3: | Parent Acct: |
|
||
| Billing Address: | 5400 N STONEWALL AVE | Tax District: |
|
|
| City, State, Zip | OKLAHOMA CITY, OK 73111 | School System: |
Oklahoma City #89 |
|
|
Country: (If noted) |
Land Size: |
0.1722 Acres |
||
|
Land Value: 32,625 |
|
|||
|
Sect 30-T12N-R3W Qtr SW |
MILLERS BOULEVARD AMD
Block
012
Lot
023
|
|||
| Full Legal Description: MILLERS BOULEVARD AMD 012 023 |
| Photo & Sketch (if available) | Comp Sales (ordered by relevancy) |
|
||||||||||||||||||
|
||||||||||||||||||||
| Value History (*The County Treasurer 405-713-1300 posts & collects actual tax amounts. Contact information HERE) | |||||||||||||
|---|---|---|---|---|---|---|---|---|---|---|---|---|---|
| Year | Market Value | Taxable Mkt Value | Gross Assessed | Exemption | Net Assessed | Millage | Est. Tax | Tax Savings | |||||
|
2026 |
159,500 |
137,681 |
15,144 |
0 |
15,144 |
122.90 |
$1,861 |
$295 |
|||||
|
2025 |
158,500 |
131,125 |
14,422 |
0 |
14,422 |
122.90 |
$1,773 |
$370 |
|||||
|
2024 |
156,500 |
124,881 |
13,736 |
0 |
13,736 |
123.89 |
$1,702 |
$431 |
|||||
|
2023 |
156,500 |
118,935 |
13,081 |
0 |
13,081 |
122.82 |
$1,607 |
$508 |
|||||
|
2022 |
125,000 |
113,272 |
12,459 |
0 |
12,459 |
117.63 |
$1,466 |
$152 |
|||||
| Property Account Status/Adjustments/Exemptions | ||
|---|---|---|
| Account # | Exemption Description | Amount |
|
R060042750 |
5% Capped Account |
0 |
| Property Deed Transaction History (Recorded in the County Clerk's Office) | ||||||||||
|---|---|---|---|---|---|---|---|---|---|---|
| Date | Type | Book | Page | Price | Grantor | Grantee | ||||
|
6/30/2009 |
|
Deeds |
$0 |
BASS ANTHONY L & DEIDRA L |
BASS ANTHONY |
|||||
|
10/18/2007 |
|
Hmstd Off & |
$0 |
BASS ANTHONY SR |
BASS ANTHONY L & DEIDRA L |
|||||
|
7/7/2004 |
|
Deeds |
$81,000 |
MERCADANTE MARK |
BASS ANTHONY SR |
|||||
|
12/12/2003 |
|
Deeds |
$63,500 |
WOODSIDE WILBUR LEE SR |
MERCADANTE MARK |
|||||
|
8/10/2001 |
|
Deeds |
$0 |
WOODSIDE WILBUR L SR & DIAMOND M CO TRS |
WOODSIDE WILBUR LEE SR TRS |
|||||
| Last Mailed Notice of Value (N.O.V.) Information/History | ||||||||
|---|---|---|---|---|---|---|---|---|
| Year | Date | Market Value | Taxable Market Value | Gross Assessed | Exemption | Net Assessed | ||
|
2026 |
02/23/2026 |
159,500 |
137,681 |
15,144 |
0 |
15,144 |
||
|
2025 |
02/14/2025 |
158,500 |
131,125 |
14,422 |
0 |
14,422 |
||
|
2024 |
02/13/2024 |
156,500 |
124,881 |
13,736 |
0 |
13,736 |
||
|
2023 |
02/14/2023 |
156,500 |
118,935 |
13,081 |
0 |
13,081 |
||
|
2022 |
03/15/2022 |
125,000 |
113,272 |
12,459 |
0 |
12,459 |
||
| Property Building Permit History | |||||||||||
|---|---|---|---|---|---|---|---|---|---|---|---|
| Issued | Permit # | Provided by | Bldg # | Description | Est Construction Cost | Status | |||||
| No Building Permit records returned. | |||||||||||
| Click button on building number to access detailed information: | ||||||
|---|---|---|---|---|---|---|
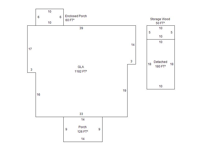
| Bldg # | Vacant/Improved Land | Bldg Description | Year Built | SqFt | # Stories | |
|
1 |
Improved |
Ranch 1 Story |
1927 |
1,182 |
1 Stories |
|