|
|
|
| Larry Stein Oklahoma County Assessor (405) 713-1200 - Public Access System |
|
|
|
|
|
|
| Real Property Display - Screen Produced 4/12/2026 6:12:51 PM | ||||
|---|---|---|---|---|
| Account: R060044300 | Type: Residential | Location: |
2609 NW 15TH ST |
|
| Building Name/Occupant: |
|
OKLAHOMA CITY |
||
| Owner Name 1: | PUNNEO GERALD D & SABRINA R |
Parcel PIN#: |
2719-06-004-4300 |
|
| Owner Name 2: | 1/4 section #: |
2719 |
||
| Owner Name 3: | Parent Acct: |
|
||
| Billing Address: | 2609 NW 15TH ST | Tax District: |
|
|
| City, State, Zip | OKLAHOMA CITY, OK 73107-4823 | School System: |
Oklahoma City #89 |
|
|
Country: (If noted) |
Land Size: |
0.1722 Acres |
||
|
Land Value: 32,625 |
|
|||
|
Sect 30-T12N-R3W Qtr SW |
MILLERS BOULEVARD AMD
Block
014
Lot
020
|
|||
| Full Legal Description: MILLERS BOULEVARD AMD 014 020 |
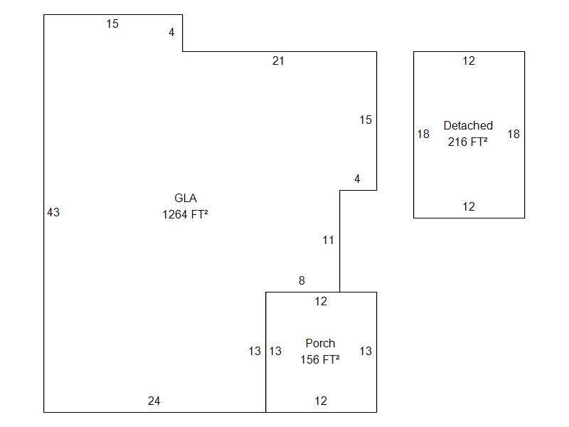
| Photo & Sketch (if available) | Comp Sales (ordered by relevancy) |
|
||||||||||||||||||
|
||||||||||||||||||||
| Value History (*The County Treasurer 405-713-1300 posts & collects actual tax amounts. Contact information HERE) | |||||||||||||
|---|---|---|---|---|---|---|---|---|---|---|---|---|---|
| Year | Market Value | Taxable Mkt Value | Gross Assessed | Exemption | Net Assessed | Millage | Est. Tax | Tax Savings | |||||
|
2026 |
163,500 |
125,653 |
13,821 |
0 |
13,821 |
122.90 |
$1,699 |
$512 |
|||||
|
2025 |
160,000 |
119,670 |
13,162 |
0 |
13,162 |
122.90 |
$1,618 |
$545 |
|||||
|
2024 |
154,500 |
113,972 |
12,535 |
0 |
12,535 |
123.89 |
$1,553 |
$552 |
|||||
|
2023 |
152,000 |
108,545 |
11,939 |
0 |
11,939 |
122.82 |
$1,466 |
$587 |
|||||
|
2022 |
118,000 |
103,377 |
11,370 |
0 |
11,370 |
117.63 |
$1,338 |
$189 |
|||||
| Property Account Status/Adjustments/Exemptions | ||
|---|---|---|
| Account # | Exemption Description | Amount |
|
R060044300 |
5% Capped Account |
0 |
| Property Deed Transaction History (Recorded in the County Clerk's Office) | |||||||
|---|---|---|---|---|---|---|---|
| Date | Type | Book | Page | Price | Grantor | Grantee | |
|
5/1/1997 |
|
Historical |
$35,500 |
MAUK INVESTMENT COMPANY |
PUNNEO GERALD D & SABRINA R |
||
|
12/15/1995 |
|
Historical |
$0 |
KENT A MAUK CPA INC |
MAUK INVESTMENT COMPANY |
||
|
5/13/1988 |
|
Historical |
$24,000 |
BRYSON CLIFFORD H |
KENT A MAUK CPA INC |
||
|
5/1/1976 |
|
Historical |
$0 |
|
BRYSON CLIFFORD H |
||
| Last Mailed Notice of Value (N.O.V.) Information/History | ||||||||
|---|---|---|---|---|---|---|---|---|
| Year | Date | Market Value | Taxable Market Value | Gross Assessed | Exemption | Net Assessed | ||
|
2026 |
02/23/2026 |
163,500 |
125,653 |
13,821 |
0 |
13,821 |
||
|
2025 |
02/14/2025 |
160,000 |
119,670 |
13,162 |
0 |
13,162 |
||
|
2024 |
02/13/2024 |
154,500 |
113,972 |
12,535 |
0 |
12,535 |
||
|
2023 |
02/14/2023 |
152,000 |
108,545 |
11,939 |
0 |
11,939 |
||
|
2022 |
03/15/2022 |
118,000 |
103,377 |
11,370 |
0 |
11,370 |
||
| Property Building Permit History | |||||||||||
|---|---|---|---|---|---|---|---|---|---|---|---|
| Issued | Permit # | Provided by | Bldg # | Description | Est Construction Cost | Status | |||||
| No Building Permit records returned. | |||||||||||
| Click button on building number to access detailed information: | ||||||
|---|---|---|---|---|---|---|
| Bldg # | Vacant/Improved Land | Bldg Description | Year Built | SqFt | # Stories | |
|
1 |
Improved |
Ranch 1 Story |
1928 |
1,264 |
1 Stories |
|