|
|
|
| Larry Stein Oklahoma County Assessor (405) 713-1200 - Public Access System |
|
|
|
|
|
|
| Real Property Display - Screen Produced 4/14/2026 4:53:16 AM | ||||
|---|---|---|---|---|
| Account: R064141070 | Type: Residential | Location: |
2501 NW 12TH ST |
|
| Building Name/Occupant: |
|
OKLAHOMA CITY |
||
| Owner Name 1: | NOECKER DREW WILLIAM |
Parcel PIN#: |
2719-06-414-1070 |
|
| Owner Name 2: | 1/4 section #: |
2719 |
||
| Owner Name 3: | Parent Acct: |
|
||
| Billing Address: | 701 NW 14TH ST | Tax District: |
|
|
| City, State, Zip | OKLAHOMA CITY, OK 73103 | School System: |
Oklahoma City #89 |
|
|
Country: (If noted) |
Land Size: |
0.0964 Acres |
||
|
Land Value: 18,270 |
|
|||
|
Sect 30-T12N-R3W Qtr SW |
MILLERS BOULEVARD
Block
004
Lot
000
|
|||
| Full Legal Description: MILLERS BOULEVARD 004 000 S84FT OF E50FT OF LOT 16 |
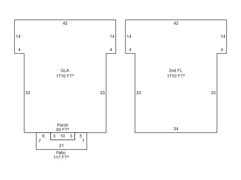
| Photo & Sketch (if available) | Comp Sales (ordered by relevancy) |
|
||||||||||||||||||
|
||||||||||||||||||||
| Value History (*The County Treasurer 405-713-1300 posts & collects actual tax amounts. Contact information HERE) | |||||||||||||
|---|---|---|---|---|---|---|---|---|---|---|---|---|---|
| Year | Market Value | Taxable Mkt Value | Gross Assessed | Exemption | Net Assessed | Millage | Est. Tax | Tax Savings | |||||
|
2026 |
540,500 |
540,500 |
59,455 |
0 |
59,455 |
122.90 |
$7,307 |
$0 |
|||||
|
2025 |
551,000 |
551,000 |
60,610 |
0 |
60,610 |
122.90 |
$7,449 |
$0 |
|||||
|
2024 |
35,370 |
35,370 |
3,890 |
0 |
3,890 |
123.89 |
$482 |
$0 |
|||||
|
2023 |
35,370 |
35,370 |
3,890 |
0 |
3,890 |
122.82 |
$478 |
$0 |
|||||
|
2022 |
206,500 |
206,500 |
22,715 |
0 |
22,715 |
117.63 |
$2,672 |
$0 |
|||||
| Property Account Status/Adjustments/Exemptions | ||
|---|---|---|
| Account # | Exemption Description | Amount |
|
R064141070 |
5% Capped Account |
0 |
| Property Deed Transaction History (Recorded in the County Clerk's Office) | ||||||||||
|---|---|---|---|---|---|---|---|---|---|---|
| Date | Type | Book | Page | Price | Grantor | Grantee | ||||
|
8/5/2022 |
|
Deeds |
$320,000 |
PARADIGM REAL ESTATE INVESTMENTS LLC |
NOECKER DREW WILLIAM |
|||||
|
7/6/2020 |
|
Mult Parcel |
$200,000 |
URBAN INVESTMENT GROUP LLC |
PARADIGM REAL ESTATE INVESTMENTS LLC |
|||||
|
7/17/2014 |
|
Deeds |
$138,500 |
RSB VIKING LLC |
URBAN INVESTMENT GROUP LLC |
|||||
|
2/26/2014 |
|
Deeds |
$0 |
RSB VIKING LLC |
RSB VIKING LLC |
|||||
|
1/20/2009 |
|
Hmstd Off & |
$0 |
BARROW ROBERT S |
RSB VIKING LLC |
|||||
| Last Mailed Notice of Value (N.O.V.) Information/History | ||||||||
|---|---|---|---|---|---|---|---|---|
| Year | Date | Market Value | Taxable Market Value | Gross Assessed | Exemption | Net Assessed | ||
|
2025 |
03/28/2025 |
551,000 |
551,000 |
60,610 |
0 |
60,610 |
||
|
2021 |
03/19/2021 |
224,000 |
224,000 |
24,640 |
0 |
24,640 |
||
|
2020 |
03/10/2020 |
188,000 |
137,025 |
15,072 |
0 |
15,072 |
||
|
2018 |
04/16/2018 |
132,427 |
132,427 |
14,567 |
0 |
14,567 |
||
|
2015 |
03/16/2015 |
139,069 |
139,069 |
15,296 |
0 |
15,296 |
||
| Property Building Permit History | ||||||
|---|---|---|---|---|---|---|
| Issued | Permit # | Provided by | Bldg # | Description | Est Construction Cost | Status |
|
12/15/2022 |
|
|
1 |
Remodeled |
|
Inactive |
|
8/28/2020 |
|
|
1 |
Remodeled |
|
Inactive |
| Click button on building number to access detailed information: | ||||||
|---|---|---|---|---|---|---|
| Bldg # | Vacant/Improved Land | Bldg Description | Year Built | SqFt | # Stories | |
|
1 |
Improved |
2 Story |
1928 |
3,420 |
2 Stories |
|