|
|
|
| Larry Stein Oklahoma County Assessor (405) 713-1200 - Public Access System |
|
|
|
|
|
|
| Real Property Display - Screen Produced 4/14/2026 4:40:44 AM | ||||
|---|---|---|---|---|
| Account: R064142430 | Type: Residential | Location: |
2635 NW 12TH ST |
|
| Building Name/Occupant: |
|
OKLAHOMA CITY |
||
| Owner Name 1: | STEELE LEO & JOANLE |
Parcel PIN#: |
2719-06-414-2430 |
|
| Owner Name 2: | 1/4 section #: |
2719 |
||
| Owner Name 3: | Parent Acct: |
|
||
| Billing Address: | 2635 NW 12TH ST | Tax District: |
|
|
| City, State, Zip | OKLAHOMA CITY, OK 73107-5419 | School System: |
Oklahoma City #89 |
|
|
Country: (If noted) |
Land Size: |
0.1722 Acres |
||
|
Land Value: 32,625 |
|
|||
|
Sect 30-T12N-R3W Qtr SW |
MILLERS BOULEVARD
Block
011
Lot
000
|
|||
| Full Legal Description: MILLERS BOULEVARD 011 000 E24FT OF LOT 11 W26FT LOT 12 |
| Photo & Sketch (if available) | Comp Sales (ordered by relevancy) |
|
||||||||||||||||||
|
||||||||||||||||||||
| Value History (*The County Treasurer 405-713-1300 posts & collects actual tax amounts. Contact information HERE) | |||||||||||||
|---|---|---|---|---|---|---|---|---|---|---|---|---|---|
| Year | Market Value | Taxable Mkt Value | Gross Assessed | Exemption | Net Assessed | Millage | Est. Tax | Tax Savings | |||||
|
2026 |
241,000 |
241,000 |
26,510 |
1,000 |
25,510 |
122.90 |
$3,135 |
$123 |
|||||
|
2025 |
212,000 |
212,000 |
23,320 |
0 |
23,320 |
122.90 |
$2,866 |
$0 |
|||||
|
2024 |
137,000 |
137,000 |
15,070 |
0 |
15,070 |
123.89 |
$1,867 |
$0 |
|||||
|
2023 |
157,500 |
94,185 |
10,359 |
1,000 |
9,359 |
122.82 |
$1,150 |
$978 |
|||||
|
2022 |
123,000 |
91,442 |
10,057 |
1,000 |
9,057 |
117.63 |
$1,066 |
$526 |
|||||
| Property Account Status/Adjustments/Exemptions | ||
|---|---|---|
| Account # | Exemption Description | Amount |
|
R064142430 |
Homestead |
1,000 |
| Property Deed Transaction History (Recorded in the County Clerk's Office) | ||||||||||
|---|---|---|---|---|---|---|---|---|---|---|
| Date | Type | Book | Page | Price | Grantor | Grantee | ||||
|
4/11/2025 |
|
Deeds |
$244,000 |
JIMENEZ HOME RENOVATION LLC |
STEELE LEO & JOANLE |
|||||
|
11/13/2023 |
|
Deeds |
$103,000 |
CLENDENING JOHN D |
PEREZ INVESTMENTS LLC |
|||||
|
11/2/2023 |
|
Deeds |
$141,000 |
PEREZ INVESTMENTS LLC |
JIMENEZ HOME RENOVATION LLC |
|||||
|
10/15/1991 |
|
Historical |
$0 |
CLENDENING CARL CURTIS |
CLENDENING JOHN D |
|||||
|
3/25/1991 |
|
Historical |
$0 |
CLENDENING JOHN D |
CLENDENING CARL CURTIS |
|||||
| Last Mailed Notice of Value (N.O.V.) Information/History | ||||||||
|---|---|---|---|---|---|---|---|---|
| Year | Date | Market Value | Taxable Market Value | Gross Assessed | Exemption | Net Assessed | ||
|
2026 |
02/23/2026 |
241,000 |
241,000 |
26,510 |
1,000 |
25,510 |
||
|
2025 |
03/28/2025 |
212,000 |
212,000 |
23,320 |
0 |
23,320 |
||
|
2024 |
02/13/2024 |
137,000 |
137,000 |
15,070 |
0 |
15,070 |
||
|
2023 |
02/14/2023 |
157,500 |
94,185 |
10,359 |
1,000 |
9,359 |
||
|
2022 |
03/15/2022 |
123,000 |
91,442 |
10,057 |
1,000 |
9,057 |
||
| Property Building Permit History | ||||||
|---|---|---|---|---|---|---|
| Issued | Permit # | Provided by | Bldg # | Description | Est Construction Cost | Status |
|
11/29/2023 |
|
|
1 |
Remodeled |
|
Inactive |
| Click button on building number to access detailed information: | ||||||
|---|---|---|---|---|---|---|
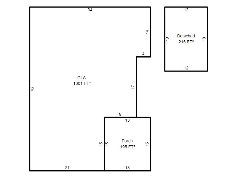
| Bldg # | Vacant/Improved Land | Bldg Description | Year Built | SqFt | # Stories | |
|
1 |
Improved |
Ranch 1 Story |
1927 |
1,301 |
1 Stories |
|