|
|
|
| Larry Stein Oklahoma County Assessor (405) 713-1200 - Public Access System |
|
|
|
|
|
|
| Real Property Display - Screen Produced 4/15/2026 4:33:35 AM | ||||
|---|---|---|---|---|
| Account: R064144800 | Type: Residential | Location: |
2732 NW 14TH ST |
|
| Building Name/Occupant: |
|
OKLAHOMA CITY |
||
| Owner Name 1: | HARVEY VAN REX |
Parcel PIN#: |
2719-06-414-4800 |
|
| Owner Name 2: | 1/4 section #: |
2719 |
||
| Owner Name 3: | Parent Acct: |
|
||
| Billing Address: | 2732 NW 14TH ST | Tax District: |
|
|
| City, State, Zip | OKLAHOMA CITY, OK 73107-4820 | School System: |
Oklahoma City #89 |
|
|
Country: (If noted) |
Land Size: |
0.2583 Acres |
||
|
Land Value: 48,938 |
|
|||
|
Sect 30-T12N-R3W Qtr SW |
MILLERS BOULEVARD
Block
017
Lot
010
|
|||
| Full Legal Description: MILLERS BOULEVARD 017 010 |
| Photo & Sketch (if available) | Comp Sales (ordered by relevancy) |
|
||||||||||||||||||
|
||||||||||||||||||||
| Value History (*The County Treasurer 405-713-1300 posts & collects actual tax amounts. Contact information HERE) | |||||||||||||
|---|---|---|---|---|---|---|---|---|---|---|---|---|---|
| Year | Market Value | Taxable Mkt Value | Gross Assessed | Exemption | Net Assessed | Millage | Est. Tax | Tax Savings | |||||
|
2026 |
184,500 |
132,898 |
14,618 |
0 |
14,618 |
122.90 |
$1,797 |
$698 |
|||||
|
2025 |
179,500 |
126,570 |
13,921 |
0 |
13,921 |
122.90 |
$1,711 |
$716 |
|||||
|
2024 |
169,000 |
120,543 |
13,259 |
0 |
13,259 |
123.89 |
$1,643 |
$660 |
|||||
|
2023 |
164,000 |
114,803 |
12,628 |
0 |
12,628 |
122.82 |
$1,551 |
$665 |
|||||
|
2022 |
128,500 |
109,337 |
12,026 |
0 |
12,026 |
117.63 |
$1,415 |
$248 |
|||||
| Property Account Status/Adjustments/Exemptions | ||
|---|---|---|
| Account # | Exemption Description | Amount |
|
R064144800 |
5% Capped Account |
0 |
| Property Deed Transaction History (Recorded in the County Clerk's Office) | |||||||
|---|---|---|---|---|---|---|---|
| Date | Type | Book | Page | Price | Grantor | Grantee | |
|
1/1/1986 |
|
Historical |
$34,766 |
|
HARVEY VAN REX |
||
| Last Mailed Notice of Value (N.O.V.) Information/History | ||||||||
|---|---|---|---|---|---|---|---|---|
| Year | Date | Market Value | Taxable Market Value | Gross Assessed | Exemption | Net Assessed | ||
|
2026 |
02/23/2026 |
184,500 |
132,898 |
14,618 |
0 |
14,618 |
||
|
2025 |
02/14/2025 |
179,500 |
126,570 |
13,921 |
0 |
13,921 |
||
|
2024 |
02/13/2024 |
169,000 |
120,543 |
13,259 |
0 |
13,259 |
||
|
2023 |
02/14/2023 |
164,000 |
114,803 |
12,628 |
0 |
12,628 |
||
|
2022 |
03/15/2022 |
128,500 |
109,337 |
12,026 |
0 |
12,026 |
||
| Property Building Permit History | |||||||||||
|---|---|---|---|---|---|---|---|---|---|---|---|
| Issued | Permit # | Provided by | Bldg # | Description | Est Construction Cost | Status | |||||
| No Building Permit records returned. | |||||||||||
| Click button on building number to access detailed information: | ||||||
|---|---|---|---|---|---|---|
| Bldg # | Vacant/Improved Land | Bldg Description | Year Built | SqFt | # Stories | |
|
1 |
Improved |
Ranch 1 Story |
1928 |
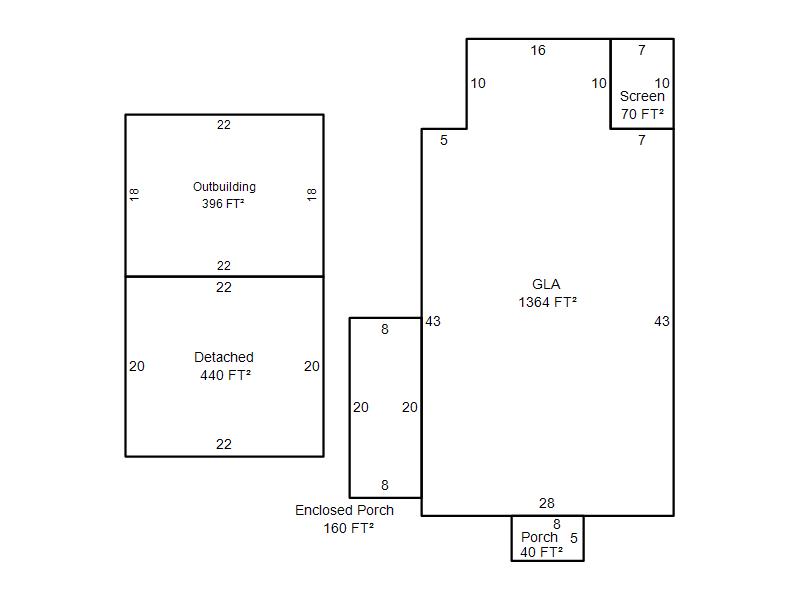
1,364 |
1 Stories |
|