|
|
|
| Larry Stein Oklahoma County Assessor (405) 713-1200 - Public Access System |
|
|
|
|
|
|
| Real Property Display - Screen Produced 4/14/2026 4:43:58 AM | ||||
|---|---|---|---|---|
| Account: R064146580 | Type: Residential | Location: |
2801 NW 13TH ST |
|
| Building Name/Occupant: |
|
OKLAHOMA CITY |
||
| Owner Name 1: | HOLT JULIA MARIE ANDERSON & ADAM DONALD |
Parcel PIN#: |
2719-06-414-6580 |
|
| Owner Name 2: | 1/4 section #: |
2719 |
||
| Owner Name 3: | Parent Acct: |
|
||
| Billing Address: | 2801 NW 13TH ST | Tax District: |
|
|
| City, State, Zip | OKLAHOMA CITY, OK 73107-4701 | School System: |
Oklahoma City #89 |
|
|
Country: (If noted) |
Land Size: |
0.1607 Acres |
||
|
Land Value: 30,450 |
|
|||
|
Sect 30-T12N-R3W Qtr SW |
MILLERS BOULEVARD
Block
026
Lot
000
|
|||
| Full Legal Description: MILLERS BOULEVARD 026 000 LOTS 47 & 48 |
| Photo & Sketch (if available) | Comp Sales (ordered by relevancy) |
|
||||||||||||||||||
|
||||||||||||||||||||
| Value History (*The County Treasurer 405-713-1300 posts & collects actual tax amounts. Contact information HERE) | |||||||||||||
|---|---|---|---|---|---|---|---|---|---|---|---|---|---|
| Year | Market Value | Taxable Mkt Value | Gross Assessed | Exemption | Net Assessed | Millage | Est. Tax | Tax Savings | |||||
|
2026 |
272,000 |
210,535 |
23,158 |
0 |
23,158 |
122.90 |
$2,846 |
$831 |
|||||
|
2025 |
268,500 |
200,510 |
22,055 |
0 |
22,055 |
122.90 |
$2,711 |
$919 |
|||||
|
2024 |
260,500 |
190,962 |
21,005 |
0 |
21,005 |
123.89 |
$2,602 |
$948 |
|||||
|
2023 |
246,000 |
181,869 |
20,004 |
0 |
20,004 |
122.82 |
$2,457 |
$866 |
|||||
|
2022 |
190,500 |
173,209 |
19,052 |
0 |
19,052 |
117.63 |
$2,241 |
$224 |
|||||
| Property Account Status/Adjustments/Exemptions | ||
|---|---|---|
| Account # | Exemption Description | Amount |
|
R064146580 |
5% Capped Account |
0 |
| Property Deed Transaction History (Recorded in the County Clerk's Office) | ||||||||||
|---|---|---|---|---|---|---|---|---|---|---|
| Date | Type | Book | Page | Price | Grantor | Grantee | ||||
|
3/22/2012 |
|
Deeds |
$120,000 |
HELTZEN ROLF |
HOLT JULIA MARIE ANDERSON & ADAM DONALD |
|||||
|
3/4/2011 |
|
Hmstd Off & |
$0 |
SECRETARY OF VETERAN AFFAIRS |
HELTZEN ROLF |
|||||
|
11/15/2010 |
|
Hmstd Off & |
$0 |
COKER STEVE M & DELILAH L |
SECRETARY OF VETERAN AFFAIRS |
|||||
|
2/25/2000 |
|
Deeds |
$61,000 |
ANDERSON CLYDE JR & JACQUELINE |
COKER STEVE M & DELILAH L |
|||||
|
11/5/1997 |
|
Historical |
$52,000 |
ELLIS CHARLES H JR & JUDITH L |
ANDERSON CLYDE JR & JACQUELINE |
|||||
| Last Mailed Notice of Value (N.O.V.) Information/History | ||||||||
|---|---|---|---|---|---|---|---|---|
| Year | Date | Market Value | Taxable Market Value | Gross Assessed | Exemption | Net Assessed | ||
|
2026 |
02/23/2026 |
272,000 |
210,535 |
23,158 |
0 |
23,158 |
||
|
2025 |
02/14/2025 |
268,500 |
200,510 |
22,055 |
0 |
22,055 |
||
|
2024 |
02/13/2024 |
260,500 |
190,962 |
21,005 |
0 |
21,005 |
||
|
2023 |
02/14/2023 |
246,000 |
181,869 |
20,004 |
0 |
20,004 |
||
|
2022 |
03/15/2022 |
190,500 |
173,209 |
19,052 |
0 |
19,052 |
||
| Property Building Permit History | |||||||||||
|---|---|---|---|---|---|---|---|---|---|---|---|
| Issued | Permit # | Provided by | Bldg # | Description | Est Construction Cost | Status | |||||
| No Building Permit records returned. | |||||||||||
| Click button on building number to access detailed information: | ||||||
|---|---|---|---|---|---|---|
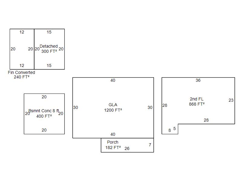
| Bldg # | Vacant/Improved Land | Bldg Description | Year Built | SqFt | # Stories | |
|
1 |
Improved |
2 Story |
1926 |
2,068 |
2 Stories |
|