|
|
|
| Larry Stein Oklahoma County Assessor (405) 713-1200 - Public Access System |
|
|
|
|
|
|
| Real Property Display - Screen Produced 4/4/2026 11:17:42 AM | ||||
|---|---|---|---|---|
| Account: R130643910 | Type: Residential | Location: |
1237 NW 98TH ST |
|
| Building Name/Occupant: |
|
OKLAHOMA CITY |
||
| Owner Name 1: | GNEISS OKC LLC |
Parcel PIN#: |
3714-13-064-3910 |
|
| Owner Name 2: | 1/4 section #: |
3714 |
||
| Owner Name 3: | Parent Acct: |
|
||
| Billing Address: | 2227 BECKY LN | Tax District: |
|
|
| City, State, Zip | CEDAR HILL, TX 75104 | School System: |
Oklahoma City #89 |
|
|
Country: (If noted) |
Land Size: |
0.1607 Acres |
||
|
Land Value: 18,200 |
|
|||
|
Sect 29-T13N-R3W Qtr SE |
ALTAVUE ADDITION
Block
010
Lot
000
|
|||
| Full Legal Description: ALTAVUE ADDITION 010 000 LOTS 29 & 30 |
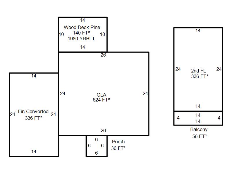
| Photo & Sketch (if available) | Comp Sales (ordered by relevancy) |
|
||||||||||||||||||
|
||||||||||||||||||||
| Value History (*The County Treasurer 405-713-1300 posts & collects actual tax amounts. Contact information HERE) | |||||||||||||
|---|---|---|---|---|---|---|---|---|---|---|---|---|---|
| Year | Market Value | Taxable Mkt Value | Gross Assessed | Exemption | Net Assessed | Millage | Est. Tax | Tax Savings | |||||
|
2026 |
111,000 |
111,000 |
12,210 |
0 |
12,210 |
122.90 |
$1,501 |
$0 |
|||||
|
2025 |
110,000 |
107,493 |
11,824 |
0 |
11,824 |
122.90 |
$1,453 |
$34 |
|||||
|
2024 |
105,000 |
102,375 |
11,261 |
0 |
11,261 |
123.89 |
$1,395 |
$36 |
|||||
|
2023 |
97,500 |
97,500 |
10,725 |
0 |
10,725 |
122.82 |
$1,317 |
$0 |
|||||
|
2022 |
73,500 |
58,951 |
6,483 |
0 |
6,483 |
117.63 |
$763 |
$188 |
|||||
| Property Account Status/Adjustments/Exemptions | ||
|---|---|---|
| Account # | Exemption Description | Amount |
|
R130643910 |
5% Capped Account |
0 |
| Property Deed Transaction History (Recorded in the County Clerk's Office) | ||||||||||
|---|---|---|---|---|---|---|---|---|---|---|
| Date | Type | Book | Page | Price | Grantor | Grantee | ||||
|
7/14/2022 |
|
Deeds |
$0 |
TURNER RANDY |
TURNER RANDY |
|||||
|
7/14/2022 |
|
Deeds |
$67,500 |
TURNER RANDY |
HOUSE HUNTERS LLC |
|||||
|
7/14/2022 |
|
Deeds |
$90,000 |
HOUSE HUNTERS LLC |
GNEISS OKC LLC |
|||||
|
5/28/2003 |
|
Deeds |
$28,000 |
HOOPER SARA B |
TURNER RANDY |
|||||
|
5/14/1999 |
|
Deeds |
$31,500 |
WILLIAMS ELIJAH |
HOOPER SARA B |
|||||
| Last Mailed Notice of Value (N.O.V.) Information/History | ||||||||
|---|---|---|---|---|---|---|---|---|
| Year | Date | Market Value | Taxable Market Value | Gross Assessed | Exemption | Net Assessed | ||
|
2026 |
02/23/2026 |
111,000 |
111,000 |
12,210 |
0 |
12,210 |
||
|
2025 |
02/14/2025 |
110,000 |
107,493 |
11,824 |
0 |
11,824 |
||
|
2024 |
02/13/2024 |
105,000 |
102,375 |
11,261 |
0 |
11,261 |
||
|
2023 |
02/14/2023 |
97,500 |
97,500 |
10,725 |
0 |
10,725 |
||
|
2022 |
03/15/2022 |
73,500 |
58,951 |
6,483 |
0 |
6,483 |
||
| Property Building Permit History | |||||||||||
|---|---|---|---|---|---|---|---|---|---|---|---|
| Issued | Permit # | Provided by | Bldg # | Description | Est Construction Cost | Status | |||||
| No Building Permit records returned. | |||||||||||
| Click button on building number to access detailed information: | ||||||
|---|---|---|---|---|---|---|
| Bldg # | Vacant/Improved Land | Bldg Description | Year Built | SqFt | # Stories | |
|
1 |
Improved |
1½ Story Fin |
1946 |
960 |
1.5 Stories |
|