|
|
|
| Larry Stein Oklahoma County Assessor (405) 713-1200 - Public Access System |
|
|
|
|
|
|
| Real Property Display - Screen Produced 4/2/2026 10:26:55 AM | ||||
|---|---|---|---|---|
| Account: R206221570 | Type: Residential | Location: |
5909 GREAT HAMPDEN RD |
|
| Building Name/Occupant: |
|
EDMOND |
||
| Owner Name 1: | WOLF WESLEY & JENNA |
Parcel PIN#: |
4459-20-622-1570 |
|
| Owner Name 2: | 1/4 section #: |
4459 |
||
| Owner Name 3: | Parent Acct: |
4459-16-863-1400 |
||
| Billing Address: | 5909 GREAT HAMPDEN RD | Tax District: |
|
|
| City, State, Zip | EDMOND, OK 73034 | School System: |
Edmond #12 |
|
|
Country: (If noted) |
Land Size: |
0.2244 Acres |
||
|
Land Value: 82,599 |
|
|||
|
Sect 15-T14N-R2W Qtr SW |
HAMPDEN HOLLOW
Block
004
Lot
007
|
|||
| Full Legal Description: HAMPDEN HOLLOW 004 007 |
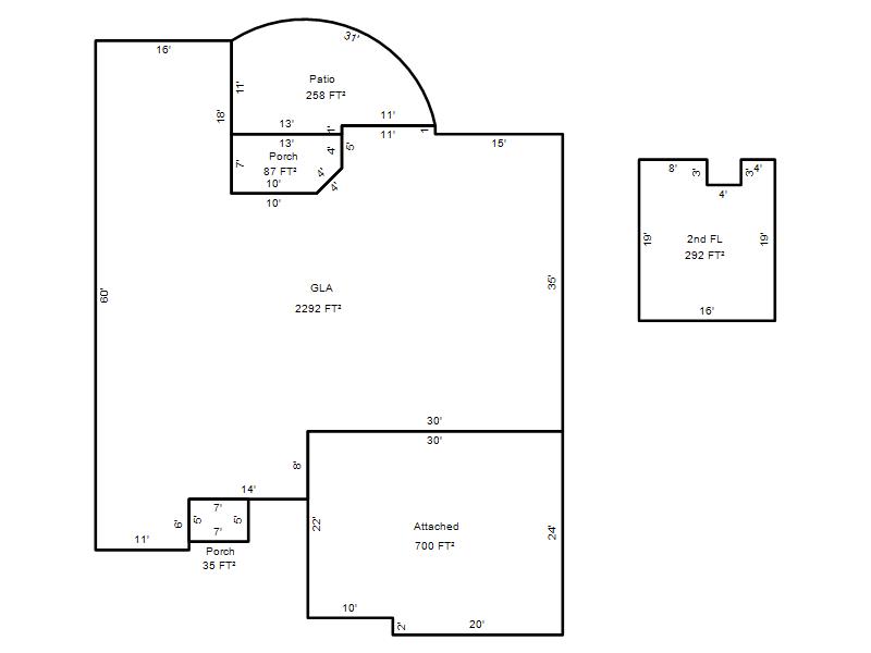
| Photo & Sketch (if available) | Comp Sales (ordered by relevancy) |
|
||||||||||||||||||
|
||||||||||||||||||||
| Value History (*The County Treasurer 405-713-1300 posts & collects actual tax amounts. Contact information HERE) | |||||||||||||
|---|---|---|---|---|---|---|---|---|---|---|---|---|---|
| Year | Market Value | Taxable Mkt Value | Gross Assessed | Exemption | Net Assessed | Millage | Est. Tax | Tax Savings | |||||
|
2026 |
423,500 |
423,500 |
46,585 |
1,000 |
45,585 |
105.16 |
$4,794 |
$105 |
|||||
|
2025 |
432,000 |
432,000 |
47,520 |
1,000 |
46,520 |
105.16 |
$4,892 |
$105 |
|||||
|
2024 |
427,000 |
427,000 |
46,970 |
1,000 |
45,970 |
105.03 |
$4,828 |
$105 |
|||||
|
2023 |
417,500 |
417,500 |
45,925 |
1,000 |
44,925 |
104.24 |
$4,683 |
$104 |
|||||
|
2022 |
363,500 |
363,500 |
39,985 |
0 |
39,985 |
104.64 |
$4,184 |
$0 |
|||||
| Property Account Status/Adjustments/Exemptions | ||
|---|---|---|
| Account # | Exemption Description | Amount |
|
R206221570 |
3% Cap Homestead |
0 |
|
R206221570 |
Homestead |
1,000 |
| Property Deed Transaction History (Recorded in the County Clerk's Office) | |||||||
|---|---|---|---|---|---|---|---|
| Date | Type | Book | Page | Price | Grantor | Grantee | |
|
7/28/2022 |
|
Deeds |
$386,000 |
HICKS CHRISTOPHER EDWARD |
WOLF WESLEY & JENNA |
||
|
7/8/2021 |
|
Deeds |
$360,000 |
CRAIG DANIEL L & KAYCIE B |
HICKS CHRISTOPHER EDWARD |
||
|
11/10/2010 |
|
Deeds |
$274,000 |
SOUTHERN IMAGE HOMES LLC |
CRAIG DANIEL L & KAYCIE B |
||
|
8/29/2005 |
|
Deeds |
$47,000 |
GAP DEVELOPMENT LLC |
SOUTHERN IMAGE HOMES LLC |
||
| Last Mailed Notice of Value (N.O.V.) Information/History | ||||||||
|---|---|---|---|---|---|---|---|---|
| Year | Date | Market Value | Taxable Market Value | Gross Assessed | Exemption | Net Assessed | ||
|
2025 |
01/31/2025 |
432,000 |
432,000 |
47,520 |
1,000 |
46,520 |
||
|
2024 |
01/22/2024 |
427,000 |
427,000 |
46,970 |
1,000 |
45,970 |
||
|
2023 |
01/23/2023 |
417,500 |
417,500 |
45,925 |
1,000 |
44,925 |
||
|
2022 |
02/22/2022 |
363,500 |
363,500 |
39,985 |
0 |
39,985 |
||
|
2021 |
02/24/2021 |
318,500 |
318,500 |
35,035 |
1,000 |
34,035 |
||
| Property Building Permit History | ||||||
|---|---|---|---|---|---|---|
| Issued | Permit # | Provided by | Bldg # | Description | Est Construction Cost | Status |
|
9/30/2005 |
10312371 |
EDMOND |
1 |
Main Dwellin |
256,800 |
Inactive |
| Click button on building number to access detailed information: | ||||||
|---|---|---|---|---|---|---|
| Bldg # | Vacant/Improved Land | Bldg Description | Year Built | SqFt | # Stories | |
|
1 |
Improved |
1½ Story Fin |
2006 |
2,584 |
1.5 Stories |
|