|
|
|
| Larry Stein Oklahoma County Assessor (405) 713-1200 - Public Access System |
|
|
|
|
|
|
| Real Property Display - Screen Produced 3/18/2026 3:38:56 PM | ||||
|---|---|---|---|---|
| Account: R195823390 | Type: Residential | Location: |
11721 E DRAPER AVE |
|
| Building Name/Occupant: |
|
NICOMA PARK |
||
| Owner Name 1: | SIMONS SHELBY |
Parcel PIN#: |
2313-19-582-3390 |
|
| Owner Name 2: | 1/4 section #: |
2313 |
||
| Owner Name 3: | Parent Acct: |
|
||
| Billing Address: | 11721 E DRAPER AVE | Tax District: |
|
|
| City, State, Zip | CHOCTAW, OK 73020 | School System: |
Choctaw #4 |
|
|
Country: (If noted) |
UNITED STATES |
Land Size: |
0.2800 Acres |
|
|
Land Value: 15,148 |
|
|||
|
Sect 29-T12N-R1W Qtr NE |
NICOMA PARK ADDITION
Block
007
Lot
000
|
|||
| Full Legal Description: NICOMA PARK ADDITION 007 000 PT OF LOT 41 BEG 362.89FT E OF SW/C LT 41 TH NWLY105.16FT E100FT SELY105FT W101.01FT TO BEG PLUS PT OF LOT 42 BEG 375FT NE OF SW/C LT 42 TH NW41.14FT E101.01FT SE23.8FT SWLY100FT TO BEG |
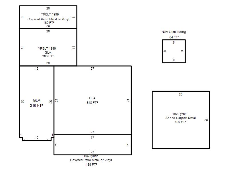
| Photo & Sketch (if available) | Comp Sales (ordered by relevancy) |
|
||||||||||||||||||
|
||||||||||||||||||||
| Value History (*The County Treasurer 405-713-1300 posts & collects actual tax amounts. Contact information HERE) | |||||||||||||
|---|---|---|---|---|---|---|---|---|---|---|---|---|---|
| Year | Market Value | Taxable Mkt Value | Gross Assessed | Exemption | Net Assessed | Millage | Est. Tax | Tax Savings | |||||
|
2025 |
119,500 |
74,607 |
8,206 |
0 |
8,206 |
117.21 |
$962 |
$579 |
|||||
|
2024 |
104,000 |
71,055 |
7,815 |
0 |
7,815 |
116.35 |
$909 |
$422 |
|||||
|
2023 |
100,500 |
67,672 |
7,443 |
0 |
7,443 |
117.10 |
$872 |
$423 |
|||||
|
2022 |
94,000 |
64,450 |
7,088 |
0 |
7,088 |
115.17 |
$816 |
$374 |
|||||
|
2021 |
78,500 |
61,381 |
6,751 |
0 |
6,751 |
115.06 |
$777 |
$217 |
|||||
| Property Account Status/Adjustments/Exemptions | ||
|---|---|---|
| Account # | Exemption Description | Amount |
|
R195823390 |
Homestead |
1,000 |
| Property Deed Transaction History (Recorded in the County Clerk's Office) | ||||||||||
|---|---|---|---|---|---|---|---|---|---|---|
| Date | Type | Book | Page | Price | Grantor | Grantee | ||||
|
2/26/2025 |
|
Deeds |
$145,000 |
LANDMARK DEVELOPMENTS INC |
SIMONS SHELBY |
|||||
|
2/22/2008 |
|
Deeds |
$55,000 |
STORY FAMILY TRUST |
LANDMARK DEVELOPMENTS INC |
|||||
|
2/15/2008 |
|
Deeds |
$0 |
STORY KAREN BETH |
STORY FAMILY TRUST |
|||||
|
5/26/2005 |
|
Deeds |
$0 |
STORY KAREN BETH |
GORELICK ROBERT TRS STORY FAMILY TRUST |
|||||
|
7/8/1993 |
|
Historical |
$44,500 |
CHESSER BRUCE W & KIMBERLY J |
STORY KAREN BETH |
|||||
| Last Mailed Notice of Value (N.O.V.) Information/History | ||||||||
|---|---|---|---|---|---|---|---|---|
| Year | Date | Market Value | Taxable Market Value | Gross Assessed | Exemption | Net Assessed | ||
|
2026 |
02/06/2026 |
125,000 |
125,000 |
13,750 |
1,000 |
12,750 |
||
|
2025 |
01/31/2025 |
119,500 |
74,607 |
8,206 |
0 |
8,206 |
||
|
2025 |
03/28/2025 |
119,500 |
74,607 |
8,206 |
0 |
8,206 |
||
|
2024 |
01/22/2024 |
104,000 |
71,055 |
7,815 |
0 |
7,815 |
||
|
2023 |
01/23/2023 |
100,500 |
67,672 |
7,443 |
0 |
7,443 |
||
| Property Building Permit History | |||||||||||
|---|---|---|---|---|---|---|---|---|---|---|---|
| Issued | Permit # | Provided by | Bldg # | Description | Est Construction Cost | Status | |||||
| No Building Permit records returned. | |||||||||||
| Click button on building number to access detailed information: | ||||||
|---|---|---|---|---|---|---|
| Bldg # | Vacant/Improved Land | Bldg Description | Year Built | SqFt | # Stories | |
|
1 |
Improved |
Ranch 1 Story |
1952 |
1,218 |
1 Stories |
|