|
|
|
| Larry Stein Oklahoma County Assessor (405) 713-1200 - Public Access System |
|
|
|
|
|
|
| Real Property Display - Screen Produced 3/18/2026 1:30:11 PM | ||||
|---|---|---|---|---|
| Account: R151151185 | Type: Residential | Location: |
212 N POST RD |
|
| Building Name/Occupant: |
|
MIDWEST CITY |
||
| Owner Name 1: | NEFF SARAH & BRADLEY |
Parcel PIN#: |
2323-15-115-1185 |
|
| Owner Name 2: | 1/4 section #: |
2323 |
||
| Owner Name 3: | Parent Acct: |
|
||
| Billing Address: | 212 N POST RD | Tax District: |
|
|
| City, State, Zip | MIDWEST CITY, OK 73130-3608 | School System: |
Mid-Del #52 |
|
|
Country: (If noted) |
Land Size: |
0.3844 Acres |
||
|
Land Value: 16,745 |
|
|||
|
Sect 31-T12N-R1W Qtr SW |
POINTONS OAKDALE PRK
Block
002
Lot
004
|
|||
| Full Legal Description: POINTONS OAKDALE PRK 002 004 |
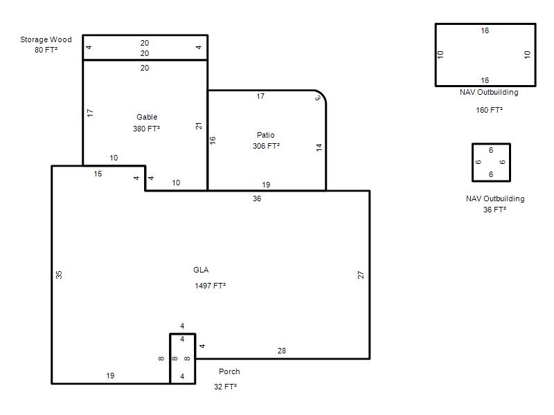
| Photo & Sketch (if available) | Comp Sales (ordered by relevancy) |
|
||||||||||||||||||
|
||||||||||||||||||||
| Value History (*The County Treasurer 405-713-1300 posts & collects actual tax amounts. Contact information HERE) | |||||||||||||
|---|---|---|---|---|---|---|---|---|---|---|---|---|---|
| Year | Market Value | Taxable Mkt Value | Gross Assessed | Exemption | Net Assessed | Millage | Est. Tax | Tax Savings | |||||
|
2025 |
202,500 |
153,532 |
16,887 |
1,000 |
15,887 |
119.58 |
$1,900 |
$764 |
|||||
|
2024 |
185,500 |
149,061 |
16,396 |
1,000 |
15,396 |
122.51 |
$1,886 |
$614 |
|||||
|
2023 |
173,500 |
144,720 |
15,918 |
1,000 |
14,918 |
117.71 |
$1,756 |
$490 |
|||||
|
2022 |
156,000 |
140,505 |
15,455 |
1,000 |
14,455 |
116.64 |
$1,686 |
$315 |
|||||
|
2021 |
133,500 |
133,500 |
14,685 |
0 |
14,685 |
119.45 |
$1,754 |
$0 |
|||||
| Property Account Status/Adjustments/Exemptions | ||||||
|---|---|---|---|---|---|---|
| Account # | Exemption Description | Amount | ||||
| No adjustment/exemption records returned. | ||||||
| Property Deed Transaction History (Recorded in the County Clerk's Office) | ||||||||||
|---|---|---|---|---|---|---|---|---|---|---|
| Date | Type | Book | Page | Price | Grantor | Grantee | ||||
|
6/2/2025 |
|
Deeds |
$200,000 |
HILTUNEN MELISSA K |
NEFF SARAH & BRADLEY |
|||||
|
6/30/2020 |
|
Deeds |
$82,000 |
SPARKS SARAH |
HILTUNEN MELISSA K |
|||||
|
9/22/2003 |
|
Hmstd Off & |
$0 |
SPARKS SARAH ADM OF THE ESTATE SPARKS BOBBIE R |
SPARKS SARAH |
|||||
|
9/15/2003 |
|
Deeds |
$0 |
SPARKS SARAH |
SPARKS SARAH ADM OF THE ESTATE OF BOBBIE SPARKS |
|||||
|
7/30/2003 |
|
Hmstd Off & |
$0 |
SPARKS OLMA D & BOBBIE R |
SPARKS SARAH |
|||||
| Last Mailed Notice of Value (N.O.V.) Information/History | ||||||||
|---|---|---|---|---|---|---|---|---|
| Year | Date | Market Value | Taxable Market Value | Gross Assessed | Exemption | Net Assessed | ||
|
2026 |
02/06/2026 |
195,000 |
195,000 |
21,450 |
0 |
21,450 |
||
|
2025 |
01/31/2025 |
202,500 |
153,532 |
16,887 |
1,000 |
15,887 |
||
|
2024 |
01/22/2024 |
185,500 |
149,061 |
16,396 |
1,000 |
15,396 |
||
|
2023 |
01/23/2023 |
173,500 |
144,720 |
15,918 |
1,000 |
14,918 |
||
|
2022 |
02/22/2022 |
156,000 |
140,505 |
15,455 |
1,000 |
14,455 |
||
| Property Building Permit History | ||||||
|---|---|---|---|---|---|---|
| Issued | Permit # | Provided by | Bldg # | Description | Est Construction Cost | Status |
|
11/19/2020 |
20-00001845 |
|
1 |
Remodeled |
30,000 |
Inactive |
|
6/19/2006 |
10325589 |
MIDWEST CITY |
1 |
Swimming Pool |
6,000 |
Inactive |
| Click button on building number to access detailed information: | ||||||
|---|---|---|---|---|---|---|
| Bldg # | Vacant/Improved Land | Bldg Description | Year Built | SqFt | # Stories | |
|
1 |
Improved |
Ranch 1 Story |
1961 |
1,497 |
1 Stories |
|