|
|
|
| Larry Stein Oklahoma County Assessor (405) 713-1200 - Public Access System |
|
|
|
|
|
|
| Real Property Display - Screen Produced 3/18/2026 3:02:23 PM | ||||
|---|---|---|---|---|
| Account: R151151285 | Type: Residential | Location: |
10120 OAK PARK DR |
|
| Building Name/Occupant: |
|
MIDWEST CITY |
||
| Owner Name 1: | GIRON AMILCAR YOVANY DE LEON |
Parcel PIN#: |
2323-15-115-1285 |
|
| Owner Name 2: | MAZARIEGOS MAYDA MARLENY MALDONANDO | 1/4 section #: |
2323 |
|
| Owner Name 3: | Parent Acct: |
|
||
| Billing Address: | 3546 NW 13TH ST | Tax District: |
|
|
| City, State, Zip | OKLAHOMA CITY, OK 73107 | School System: |
Mid-Del #52 |
|
|
Country: (If noted) |
Land Size: |
0.7883 Acres |
||
|
Land Value: 34,340 |
|
|||
|
Sect 31-T12N-R1W Qtr SW |
POINTONS OAKDALE PRK
Block
002
Lot
000
|
|||
| Full Legal Description: POINTONS OAKDALE PRK 002 000 E3FT LOT 13 & ALL LOT 14 |
| Photo & Sketch (if available) | Comp Sales (ordered by relevancy) |
|
||||||||||||||||||
|
||||||||||||||||||||
| Value History (*The County Treasurer 405-713-1300 posts & collects actual tax amounts. Contact information HERE) | |||||||||||||
|---|---|---|---|---|---|---|---|---|---|---|---|---|---|
| Year | Market Value | Taxable Mkt Value | Gross Assessed | Exemption | Net Assessed | Millage | Est. Tax | Tax Savings | |||||
|
2025 |
182,500 |
182,500 |
20,075 |
0 |
20,075 |
119.58 |
$2,401 |
$0 |
|||||
|
2024 |
175,500 |
175,500 |
19,305 |
0 |
19,305 |
122.51 |
$2,365 |
$0 |
|||||
|
2023 |
191,000 |
191,000 |
21,010 |
0 |
21,010 |
117.71 |
$2,473 |
$0 |
|||||
|
2022 |
156,000 |
137,891 |
15,167 |
0 |
15,167 |
116.64 |
$1,769 |
$232 |
|||||
|
2021 |
139,500 |
131,325 |
14,445 |
1,000 |
13,445 |
119.45 |
$1,606 |
$227 |
|||||
| Property Account Status/Adjustments/Exemptions | ||
|---|---|---|
| Account # | Exemption Description | Amount |
|
R151151285 |
5% Capped Account |
0 |
| Property Deed Transaction History (Recorded in the County Clerk's Office) | |||||||
|---|---|---|---|---|---|---|---|
| Date | Type | Book | Page | Price | Grantor | Grantee | |
|
6/24/2022 |
|
Deeds |
$190,000 |
BAXTER ADRIENNE |
GIRON AMILCAR YOVANY DE LEON |
||
|
1/5/2021 |
|
Hmstd Off & |
$0 |
VILLINES MADINE W |
BAXTER ADRIENNE |
||
|
11/11/1911 |
|
Historical |
$0 |
|
VILLINES MADINE W |
||
| Last Mailed Notice of Value (N.O.V.) Information/History | ||||||||
|---|---|---|---|---|---|---|---|---|
| Year | Date | Market Value | Taxable Market Value | Gross Assessed | Exemption | Net Assessed | ||
|
2025 |
01/31/2025 |
182,500 |
182,500 |
20,075 |
0 |
20,075 |
||
|
2023 |
01/23/2023 |
191,000 |
191,000 |
21,010 |
0 |
21,010 |
||
|
2022 |
02/22/2022 |
156,000 |
137,891 |
15,167 |
0 |
15,167 |
||
|
2021 |
02/24/2021 |
139,500 |
131,325 |
14,445 |
1,000 |
13,445 |
||
|
2019 |
02/26/2019 |
131,500 |
129,363 |
14,230 |
1,000 |
13,230 |
||
| Property Building Permit History | |||||||||||
|---|---|---|---|---|---|---|---|---|---|---|---|
| Issued | Permit # | Provided by | Bldg # | Description | Est Construction Cost | Status | |||||
| No Building Permit records returned. | |||||||||||
| Click button on building number to access detailed information: | ||||||
|---|---|---|---|---|---|---|
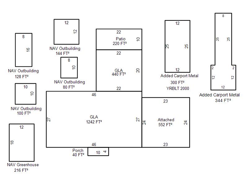
| Bldg # | Vacant/Improved Land | Bldg Description | Year Built | SqFt | # Stories | |
|
1 |
Improved |
Ranch 1 Story |
1960 |
1,682 |
1 Stories |
|