|
|
|
| Larry Stein Oklahoma County Assessor (405) 713-1200 - Public Access System |
|
|
|
|
|
|
| Real Property Display - Screen Produced 4/2/2026 4:14:29 PM | ||||
|---|---|---|---|---|
| Account: R146271200 | Type: Residential | Location: |
4241 NE 18TH ST |
|
| Building Name/Occupant: |
|
OKLAHOMA CITY |
||
| Owner Name 1: | SOONER HOLDINGS LLC |
Parcel PIN#: |
2516-14-627-1200 |
|
| Owner Name 2: | 1/4 section #: |
2516 |
||
| Owner Name 3: | Parent Acct: |
|
||
| Billing Address: | 10600 S PENN, Unit 16-708 | Tax District: |
|
|
| City, State, Zip | OKLAHOMA CITY, OK 73170 | School System: |
Oklahoma City #89 |
|
|
Country: (If noted) |
Land Size: |
0.1722 Acres |
||
|
Land Value: 12,375 |
|
|||
|
Sect 29-T12N-R2W Qtr NW |
DAYS GARDEN ADDITION
Block
004
Lot
028
|
|||
| Full Legal Description: DAYS GARDEN ADDITION 004 028 |
| Photo & Sketch (if available) | Comp Sales (ordered by relevancy) |
|
||||||||||||||||||
|
||||||||||||||||||||
| Value History (*The County Treasurer 405-713-1300 posts & collects actual tax amounts. Contact information HERE) | |||||||||||||
|---|---|---|---|---|---|---|---|---|---|---|---|---|---|
| Year | Market Value | Taxable Mkt Value | Gross Assessed | Exemption | Net Assessed | Millage | Est. Tax | Tax Savings | |||||
|
2026 |
52,500 |
52,500 |
5,775 |
0 |
5,775 |
122.90 |
$710 |
$0 |
|||||
|
2025 |
51,500 |
51,500 |
5,665 |
0 |
5,665 |
122.90 |
$696 |
$0 |
|||||
|
2024 |
49,500 |
49,500 |
5,445 |
0 |
5,445 |
123.89 |
$675 |
$0 |
|||||
|
2023 |
45,500 |
20,662 |
2,272 |
0 |
2,272 |
122.82 |
$279 |
$336 |
|||||
|
2022 |
43,000 |
19,679 |
2,164 |
0 |
2,164 |
117.63 |
$255 |
$302 |
|||||
| Property Account Status/Adjustments/Exemptions | ||
|---|---|---|
| Account # | Exemption Description | Amount |
|
R146271200 |
5% Capped Account |
0 |
| Property Deed Transaction History (Recorded in the County Clerk's Office) | ||||||||||
|---|---|---|---|---|---|---|---|---|---|---|
| Date | Type | Book | Page | Price | Grantor | Grantee | ||||
|
1/13/2023 |
|
Deeds |
$38,500 |
IRVIN VERA M |
NEXT LEVEL FLIPPING LLP |
|||||
|
1/13/2023 |
|
Deeds |
$43,500 |
NEXT LEVEL FLIPPING LLP |
SOONER HOLDINGS LLC |
|||||
|
11/23/2005 |
|
Hmstd Off & |
$0 |
HOME EQUITIES LIMITED PARTNERSHIP IV |
IRVIN VERA M |
|||||
|
3/3/2003 |
|
Deeds |
$10,000 |
MARSHALL KEVIN |
HOME EQUITIES LIMITED PARTNERSHIP IV |
|||||
|
6/17/1999 |
|
Other |
$0 |
CRESPO MIKAL A |
MARSHALL KEVIN |
|||||
| Last Mailed Notice of Value (N.O.V.) Information/History | ||||||||
|---|---|---|---|---|---|---|---|---|
| Year | Date | Market Value | Taxable Market Value | Gross Assessed | Exemption | Net Assessed | ||
|
2026 |
02/23/2026 |
52,500 |
52,500 |
5,775 |
0 |
5,775 |
||
|
2025 |
02/14/2025 |
51,500 |
51,500 |
5,665 |
0 |
5,665 |
||
|
2024 |
02/13/2024 |
49,500 |
49,500 |
5,445 |
0 |
5,445 |
||
|
2023 |
02/14/2023 |
45,500 |
20,662 |
2,272 |
0 |
2,272 |
||
|
2022 |
03/15/2022 |
43,000 |
19,679 |
2,164 |
0 |
2,164 |
||
| Property Building Permit History | |||||||||||
|---|---|---|---|---|---|---|---|---|---|---|---|
| Issued | Permit # | Provided by | Bldg # | Description | Est Construction Cost | Status | |||||
| No Building Permit records returned. | |||||||||||
| Click button on building number to access detailed information: | ||||||
|---|---|---|---|---|---|---|
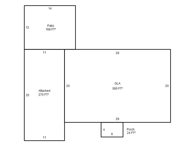
| Bldg # | Vacant/Improved Land | Bldg Description | Year Built | SqFt | # Stories | |
|
1 |
Improved |
Ranch 1 Story |
1950 |
580 |
1 Stories |
|