|
|
|
| Larry Stein Oklahoma County Assessor (405) 713-1200 - Public Access System |
|
|
|
|
|
|
| Real Property Display - Screen Produced 2/27/2026 6:16:23 PM | ||||
|---|---|---|---|---|
| Account: R151711650 | Type: Residential | Location: |
3605 GLENMANOR CIR |
|
| Building Name/Occupant: |
|
MIDWEST CITY |
||
| Owner Name 1: | GILL TAHEEM |
Parcel PIN#: |
2529-15-171-1650 |
|
| Owner Name 2: | GILL KIERCE | 1/4 section #: |
2529 |
|
| Owner Name 3: | Parent Acct: |
|
||
| Billing Address: | 3605 GLENMANOR CIR | Tax District: |
|
|
| City, State, Zip | MIDWEST CITY, OK 73110-1209 | School System: |
Mid-Del #52 |
|
|
Country: (If noted) |
Land Size: |
0.2373 Acres |
||
|
Land Value: 39,380 |
|
|||
|
Sect 33-T12N-R2W Qtr NE |
ROLLING HEIGHTS 3RD
Block
004
Lot
005
|
|||
| Full Legal Description: ROLLING HEIGHTS 3RD 004 005 |
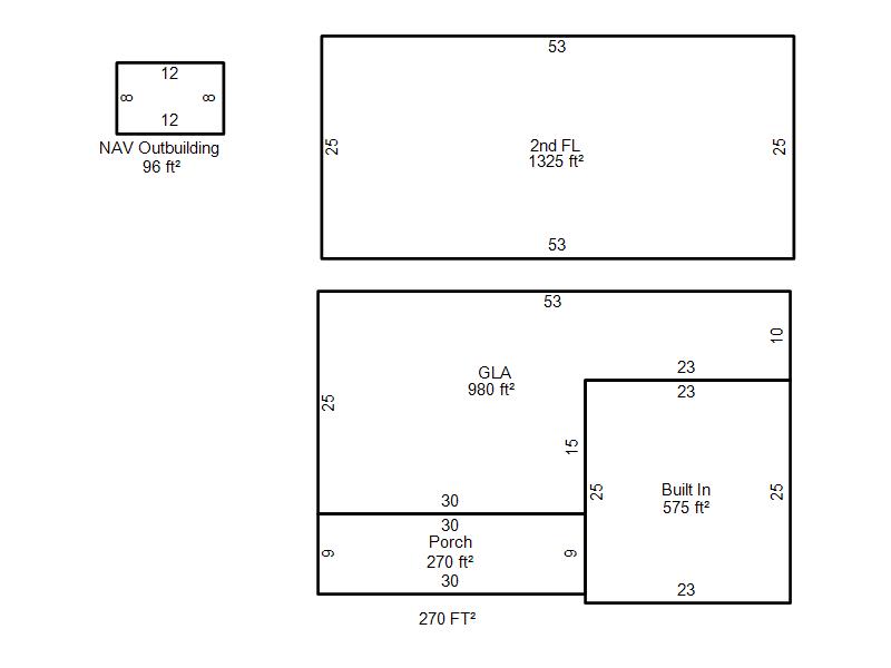
| Photo & Sketch (if available) | Comp Sales (ordered by relevancy) |
|
||||||||||||||||||
|
||||||||||||||||||||
| Value History (*The County Treasurer 405-713-1300 posts & collects actual tax amounts. Contact information HERE) | |||||||||||||
|---|---|---|---|---|---|---|---|---|---|---|---|---|---|
| Year | Market Value | Taxable Mkt Value | Gross Assessed | Exemption | Net Assessed | Millage | Est. Tax | Tax Savings | |||||
|
2025 |
236,500 |
236,500 |
26,015 |
26,015 |
0 |
119.58 |
$0 |
$3,111 |
|||||
|
2024 |
237,000 |
118,363 |
13,019 |
1,000 |
12,019 |
122.51 |
$1,473 |
$1,721 |
|||||
|
2023 |
227,000 |
118,363 |
13,019 |
1,000 |
12,019 |
117.71 |
$1,415 |
$1,524 |
|||||
|
2022 |
194,500 |
118,363 |
13,019 |
1,000 |
12,019 |
116.64 |
$1,402 |
$1,094 |
|||||
|
2021 |
177,500 |
118,363 |
13,019 |
1,000 |
12,019 |
119.45 |
$1,436 |
$896 |
|||||
| Property Account Status/Adjustments/Exemptions | ||
|---|---|---|
| Account # | Exemption Description | Amount |
|
R151711650 |
3% Cap Homestead |
0 |
|
R151711650 |
100% DAV Exemption |
100 |
|
R151711650 |
DAV Homestead |
0 |
| Property Deed Transaction History (Recorded in the County Clerk's Office) | |||||||
|---|---|---|---|---|---|---|---|
| Date | Type | Book | Page | Price | Grantor | Grantee | |
|
5/17/2024 |
|
Deeds |
$260,000 |
OGLE PROPERTY SOLUTIONS LLC |
GILL TAHEEM |
||
|
1/23/2024 |
|
Deeds |
$160,000 |
LEMKE ELLEN LOUISE TRS |
OGLE PROPERTY SOLUTIONS LLC |
||
|
10/6/2023 |
|
Deeds |
$0 |
LEMKE DELWYN V & E LOUISE TRS |
LEMKE ELLEN LOUISE TRS |
||
|
1/2/2007 |
|
Deeds |
$0 |
LEMKE DELWYN V & ELLEN L |
LEMKE DELWYN V & E LOUISE TRS |
||
|
8/1/1973 |
|
Historical |
$0 |
|
LEMKE DELWYN V & ELLEN L |
||
| Last Mailed Notice of Value (N.O.V.) Information/History | ||||||||
|---|---|---|---|---|---|---|---|---|
| Year | Date | Market Value | Taxable Market Value | Gross Assessed | Exemption | Net Assessed | ||
|
2025 |
02/14/2025 |
236,500 |
236,500 |
26,015 |
26,015 |
0 |
||
|
2024 |
02/13/2024 |
237,000 |
118,363 |
13,019 |
1,000 |
12,019 |
||
|
2024 |
03/01/2024 |
237,000 |
118,363 |
13,019 |
1,000 |
12,019 |
||
|
2023 |
02/14/2023 |
227,000 |
118,363 |
13,019 |
1,000 |
12,019 |
||
|
2022 |
03/15/2022 |
194,500 |
118,363 |
13,019 |
1,000 |
12,019 |
||
| Property Building Permit History | |||||||||||
|---|---|---|---|---|---|---|---|---|---|---|---|
| Issued | Permit # | Provided by | Bldg # | Description | Est Construction Cost | Status | |||||
| No Building Permit records returned. | |||||||||||
| Click button on building number to access detailed information: | ||||||
|---|---|---|---|---|---|---|
| Bldg # | Vacant/Improved Land | Bldg Description | Year Built | SqFt | # Stories | |
|
1 |
Improved |
2 Story |
1969 |
2,305 |
2 Stories |
|