|
|
|
| Larry Stein Oklahoma County Assessor (405) 713-1200 - Public Access System |
|
|
|
|
|
|
| Real Property Display - Screen Produced 2/27/2026 7:48:38 PM | ||||
|---|---|---|---|---|
| Account: R151712280 | Type: Residential | Location: |
3744 ROLLING LANE CIR |
|
| Building Name/Occupant: |
|
MIDWEST CITY |
||
| Owner Name 1: | CARTER MARAIA MICHELE |
Parcel PIN#: |
2529-15-171-2280 |
|
| Owner Name 2: | 1/4 section #: |
2529 |
||
| Owner Name 3: | Parent Acct: |
|
||
| Billing Address: | 3744 ROLLING LANE CIR | Tax District: |
|
|
| City, State, Zip | MIDWEST CITY, OK 73110-1222 | School System: |
Mid-Del #52 |
|
|
Country: (If noted) |
Land Size: |
0.2324 Acres |
||
|
Land Value: 38,576 |
|
|||
|
Sect 33-T12N-R2W Qtr NE |
ROLLING HEIGHTS 3RD
Block
006
Lot
001
|
|||
| Full Legal Description: ROLLING HEIGHTS 3RD 006 001 |
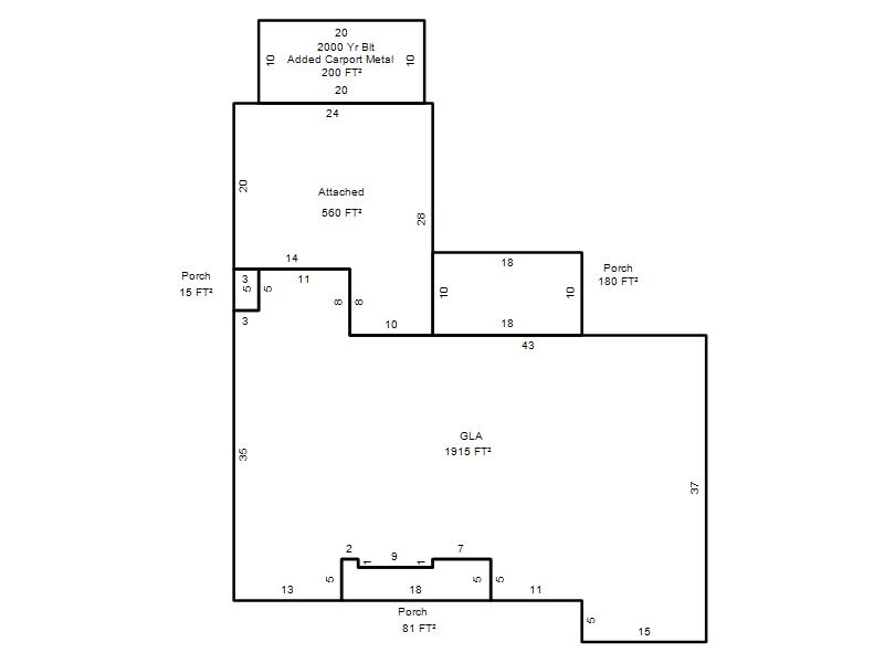
| Photo & Sketch (if available) | Comp Sales (ordered by relevancy) |
|
||||||||||||||||||
|
||||||||||||||||||||
| Value History (*The County Treasurer 405-713-1300 posts & collects actual tax amounts. Contact information HERE) | |||||||||||||
|---|---|---|---|---|---|---|---|---|---|---|---|---|---|
| Year | Market Value | Taxable Mkt Value | Gross Assessed | Exemption | Net Assessed | Millage | Est. Tax | Tax Savings | |||||
|
2025 |
222,000 |
222,000 |
24,420 |
0 |
24,420 |
119.58 |
$2,920 |
$0 |
|||||
|
2024 |
221,000 |
116,229 |
12,785 |
1,000 |
11,785 |
122.51 |
$1,444 |
$1,534 |
|||||
|
2023 |
212,500 |
116,229 |
12,785 |
1,000 |
11,785 |
117.71 |
$1,387 |
$1,364 |
|||||
|
2022 |
180,500 |
116,229 |
12,785 |
1,000 |
11,785 |
116.64 |
$1,375 |
$941 |
|||||
|
2021 |
162,000 |
116,229 |
12,785 |
1,000 |
11,785 |
119.45 |
$1,408 |
$721 |
|||||
| Property Account Status/Adjustments/Exemptions | ||
|---|---|---|
| Account # | Exemption Description | Amount |
|
R151712280 |
5% Capped Account |
0 |
| Property Deed Transaction History (Recorded in the County Clerk's Office) | |||||||
|---|---|---|---|---|---|---|---|
| Date | Type | Book | Page | Price | Grantor | Grantee | |
|
9/25/2024 |
|
Deeds |
$220,000 |
INVESTRUST SUCC CO TRS |
CARTER MARAIA MICHELE |
||
|
7/30/2023 |
|
Hmstd Off & |
$0 |
WALTON BOBBY R TRS |
INVESTRUST SUCC CO TRS |
||
|
9/11/2008 |
|
Deeds |
$0 |
WALTON BOBBY R & SHIRLEY V |
WALTON BOBBY R TRS |
||
|
11/11/1911 |
|
Historical |
$0 |
|
WALTON BOBBY R & SHIRLEY V |
||
| Last Mailed Notice of Value (N.O.V.) Information/History | ||||||||
|---|---|---|---|---|---|---|---|---|
| Year | Date | Market Value | Taxable Market Value | Gross Assessed | Exemption | Net Assessed | ||
|
2025 |
02/14/2025 |
222,000 |
222,000 |
24,420 |
0 |
24,420 |
||
|
2024 |
02/13/2024 |
221,000 |
116,229 |
12,785 |
1,000 |
11,785 |
||
|
2023 |
02/14/2023 |
212,500 |
116,229 |
12,785 |
1,000 |
11,785 |
||
|
2022 |
03/15/2022 |
180,500 |
116,229 |
12,785 |
1,000 |
11,785 |
||
|
2021 |
03/19/2021 |
162,000 |
116,229 |
12,785 |
1,000 |
11,785 |
||
| Property Building Permit History | |||||||||||
|---|---|---|---|---|---|---|---|---|---|---|---|
| Issued | Permit # | Provided by | Bldg # | Description | Est Construction Cost | Status | |||||
| No Building Permit records returned. | |||||||||||
| Click button on building number to access detailed information: | ||||||
|---|---|---|---|---|---|---|
| Bldg # | Vacant/Improved Land | Bldg Description | Year Built | SqFt | # Stories | |
|
1 |
Improved |
Ranch 1 Story |
1971 |
1,915 |
1 Stories |
|