|
|
|
| Larry Stein Oklahoma County Assessor (405) 713-1200 - Public Access System |
|
|
|
|
|
|
| Real Property Display - Screen Produced 3/3/2026 9:42:04 PM | ||||
|---|---|---|---|---|
| Account: R116274000 | Type: Residential | Location: |
1232 NE 42ND ST |
|
| Building Name/Occupant: |
|
OKLAHOMA CITY |
||
| Owner Name 1: | KUMANOV ANDREY |
Parcel PIN#: |
2656-11-627-4000 |
|
| Owner Name 2: | KUMANOV LAURA | 1/4 section #: |
2656 |
|
| Owner Name 3: | Parent Acct: |
|
||
| Billing Address: | 13398 NEWCASTLE COMMONS DR, Unit 348 | Tax District: |
|
|
| City, State, Zip | NEWCASTLE, WA 98059 | School System: |
Oklahoma City #89 |
|
|
Country: (If noted) |
UNITED STATES |
Land Size: |
0.1607 Acres |
|
|
Land Value: 11,900 |
|
|||
|
Sect 14-T12N-R3W Qtr NW |
PARK ESTATES THIRD
Block
003
Lot
004
|
|||
| Full Legal Description: PARK ESTATES THIRD 003 004 |
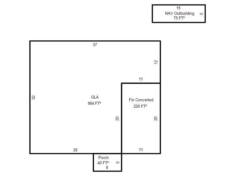
| Photo & Sketch (if available) | Comp Sales (ordered by relevancy) |
|
||||||||||||||||||
|
||||||||||||||||||||
| Value History (*The County Treasurer 405-713-1300 posts & collects actual tax amounts. Contact information HERE) | |||||||||||||
|---|---|---|---|---|---|---|---|---|---|---|---|---|---|
| Year | Market Value | Taxable Mkt Value | Gross Assessed | Exemption | Net Assessed | Millage | Est. Tax | Tax Savings | |||||
|
2025 |
88,000 |
82,190 |
9,040 |
0 |
9,040 |
122.90 |
$1,111 |
$79 |
|||||
|
2024 |
85,000 |
78,277 |
8,610 |
0 |
8,610 |
123.89 |
$1,067 |
$92 |
|||||
|
2023 |
79,000 |
74,550 |
8,200 |
0 |
8,200 |
122.82 |
$1,007 |
$60 |
|||||
|
2022 |
71,000 |
71,000 |
7,810 |
0 |
7,810 |
117.63 |
$919 |
$0 |
|||||
|
2021 |
67,000 |
67,000 |
7,370 |
0 |
7,370 |
117.70 |
$867 |
$0 |
|||||
| Property Account Status/Adjustments/Exemptions | ||
|---|---|---|
| Account # | Exemption Description | Amount |
|
R116274000 |
5% Capped Account |
0 |
| Property Deed Transaction History (Recorded in the County Clerk's Office) | ||||||||||
|---|---|---|---|---|---|---|---|---|---|---|
| Date | Type | Book | Page | Price | Grantor | Grantee | ||||
|
2/15/2021 |
|
Deeds |
$72,000 |
GUERRINI GIAN LUCA |
KUMANOV ANDREY |
|||||
|
6/26/2019 |
|
Deeds |
$70,000 |
RAK PROPERTIES INC |
GUERRINI GIAN LUCA |
|||||
|
12/14/2009 |
|
Hmstd Off & |
$0 |
BASSYOUNI SHERIF EL |
FEDERAL NATIONAL MTG ASSOCIATION |
|||||
|
1/13/2009 |
|
Deeds |
$20,500 |
FEDERAL NATIONAL MTG ASSOCIATION |
RAK PROPERTIES INC |
|||||
|
10/3/2007 |
|
Deeds |
$0 |
BASSYOUNI SHERIF EL |
FEDERAL NATIONAL MTG ASSOCIATION |
|||||
| Last Mailed Notice of Value (N.O.V.) Information/History | ||||||||
|---|---|---|---|---|---|---|---|---|
| Year | Date | Market Value | Taxable Market Value | Gross Assessed | Exemption | Net Assessed | ||
|
2026 |
02/23/2026 |
94,000 |
86,299 |
9,492 |
0 |
9,492 |
||
|
2025 |
02/14/2025 |
88,000 |
82,190 |
9,040 |
0 |
9,040 |
||
|
2024 |
02/13/2024 |
85,000 |
78,277 |
8,610 |
0 |
8,610 |
||
|
2023 |
02/14/2023 |
79,000 |
74,550 |
8,200 |
0 |
8,200 |
||
|
2022 |
03/15/2022 |
71,000 |
71,000 |
7,810 |
0 |
7,810 |
||
| Property Building Permit History | |||||||||||
|---|---|---|---|---|---|---|---|---|---|---|---|
| Issued | Permit # | Provided by | Bldg # | Description | Est Construction Cost | Status | |||||
| No Building Permit records returned. | |||||||||||
| Click button on building number to access detailed information: | ||||||
|---|---|---|---|---|---|---|
| Bldg # | Vacant/Improved Land | Bldg Description | Year Built | SqFt | # Stories | |
|
1 |
Improved |
Ranch 1 Story |
1948 |
964 |
1 Stories |
|