|
|
|
| Larry Stein Oklahoma County Assessor (405) 713-1200 - Public Access System |
|
|
|
|
|
|
| Real Property Display - Screen Produced 3/22/2026 10:01:12 AM | ||||
|---|---|---|---|---|
| Account: R054753300 | Type: Residential | Location: |
2425 NW 36TH TER |
|
| Building Name/Occupant: |
|
OKLAHOMA CITY |
||
| Owner Name 1: | ABUJASSAR KHOLOUD |
Parcel PIN#: |
2670-05-475-3300 |
|
| Owner Name 2: | 1/4 section #: |
2670 |
||
| Owner Name 3: | Parent Acct: |
|
||
| Billing Address: | 2425 NW 36TH TER | Tax District: |
|
|
| City, State, Zip | OKLAHOMA CITY, OK 73112-7513 | School System: |
Oklahoma City #89 |
|
|
Country: (If noted) |
Land Size: |
0.1515 Acres |
||
|
Land Value: 25,740 |
|
|||
|
Sect 18-T12N-R3W Qtr SE |
ROGER GIVEN RICHLAND
Block
00C
Lot
010
|
|||
| Full Legal Description: ROGER GIVEN RICHLAND 00C 010 |
| Photo & Sketch (if available) | Comp Sales (ordered by relevancy) |
|
||||||||||||||||||
|
||||||||||||||||||||
| Value History (*The County Treasurer 405-713-1300 posts & collects actual tax amounts. Contact information HERE) | |||||||||||||
|---|---|---|---|---|---|---|---|---|---|---|---|---|---|
| Year | Market Value | Taxable Mkt Value | Gross Assessed | Exemption | Net Assessed | Millage | Est. Tax | Tax Savings | |||||
|
2025 |
131,500 |
131,500 |
14,465 |
0 |
14,465 |
122.90 |
$1,778 |
$0 |
|||||
|
2024 |
131,000 |
100,506 |
11,055 |
0 |
11,055 |
123.89 |
$1,370 |
$416 |
|||||
|
2023 |
115,000 |
95,720 |
10,528 |
0 |
10,528 |
122.82 |
$1,293 |
$260 |
|||||
|
2022 |
101,500 |
91,162 |
10,026 |
0 |
10,026 |
117.63 |
$1,180 |
$134 |
|||||
|
2021 |
92,500 |
86,821 |
9,549 |
0 |
9,549 |
117.70 |
$1,124 |
$74 |
|||||
| Property Account Status/Adjustments/Exemptions | ||
|---|---|---|
| Account # | Exemption Description | Amount |
|
R054753300 |
5% Capped Account |
0 |
| Property Deed Transaction History (Recorded in the County Clerk's Office) | ||||||||||
|---|---|---|---|---|---|---|---|---|---|---|
| Date | Type | Book | Page | Price | Grantor | Grantee | ||||
|
3/29/2024 |
|
Hmstd Off & |
$0 |
MACH DANIEL |
EVERGREEN PROPERTIES LLC |
|||||
|
3/29/2024 |
|
Deeds |
$105,000 |
SOUP TO NUTS LLC |
ABUJASSAR KHOLOUD |
|||||
|
3/21/2024 |
|
Deeds |
$101,500 |
EVERGREEN PROPERTIES LLC |
SOUP TO NUTS LLC |
|||||
|
3/11/2024 |
|
Hmstd Off & |
$0 |
MACH DANIEL |
EVERGREEN PROPERTIES LLC |
|||||
|
2/27/2024 |
|
Sheriff's/Ma |
$82,500 |
VILLALTA NORBERTO |
MACH DANIEL |
|||||
| Last Mailed Notice of Value (N.O.V.) Information/History | ||||||||
|---|---|---|---|---|---|---|---|---|
| Year | Date | Market Value | Taxable Market Value | Gross Assessed | Exemption | Net Assessed | ||
|
2026 |
02/23/2026 |
140,500 |
138,075 |
15,188 |
0 |
15,188 |
||
|
2025 |
02/14/2025 |
131,500 |
131,500 |
14,465 |
0 |
14,465 |
||
|
2024 |
02/13/2024 |
131,000 |
100,506 |
11,055 |
0 |
11,055 |
||
|
2024 |
04/05/2024 |
131,000 |
100,506 |
11,055 |
0 |
11,055 |
||
|
2023 |
02/14/2023 |
115,000 |
95,720 |
10,528 |
0 |
10,528 |
||
| Property Building Permit History | |||||||||||
|---|---|---|---|---|---|---|---|---|---|---|---|
| Issued | Permit # | Provided by | Bldg # | Description | Est Construction Cost | Status | |||||
| No Building Permit records returned. | |||||||||||
| Click button on building number to access detailed information: | ||||||
|---|---|---|---|---|---|---|
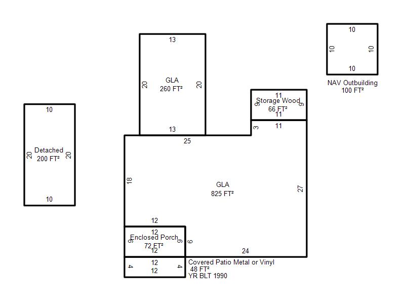
| Bldg # | Vacant/Improved Land | Bldg Description | Year Built | SqFt | # Stories | |
|
1 |
Improved |
Ranch 1 Story |
1939 |
1,085 |
1 Stories |
|