|
|
|
| Larry Stein Oklahoma County Assessor (405) 713-1200 - Public Access System |
|
|
|
|
|
|
| Real Property Display - Screen Produced 4/27/2026 8:30:06 AM | ||||
|---|---|---|---|---|
| Account: R267127560 | Type: Residential | Location: |
2705 JANENE ST |
|
| Building Name/Occupant: |
|
UNINCORPORATED |
||
| Owner Name 1: | KIZER CHANTE F Y |
Parcel PIN#: |
1047-26-712-7560 |
|
| Owner Name 2: | 1/4 section #: |
1047 |
||
| Owner Name 3: | Parent Acct: |
|
||
| Billing Address: | 2705 JANENE ST | Tax District: |
|
|
| City, State, Zip | HARRAH, OK 73045 | School System: |
Harrah #7 |
|
|
Country: (If noted) |
Land Size: |
1.0330 Acres |
||
|
Land Value: 43,231 |
|
|||
|
Sect 12-T11N-R1E Qtr SW |
POTTAWATOMIE TOWNSHIP
Block
000
Lot
000
|
|||
| Full Legal Description: POTTAWATOMIE TOWNSHIP PT SW4 SEC 12 11N 1E BEG 661.65FT W & 895.2FT N OF SE/C OF SW4 TH W500FT N94.8FT E500FT S94.8FT TO BEG EX E25FT |
| Value History (*The County Treasurer 405-713-1300 posts & collects actual tax amounts. Contact information HERE) | |||||||||||||
|---|---|---|---|---|---|---|---|---|---|---|---|---|---|
| Year | Market Value | Taxable Mkt Value | Gross Assessed | Exemption | Net Assessed | Millage | Est. Tax | Tax Savings | |||||
|
2026 |
186,500 |
186,500 |
20,515 |
1,000 |
19,515 |
107.54 |
$2,099 |
$108 |
|||||
|
2025 |
196,500 |
194,040 |
21,344 |
0 |
21,344 |
107.54 |
$2,295 |
$29 |
|||||
|
2024 |
190,500 |
184,800 |
20,328 |
0 |
20,328 |
110.62 |
$2,249 |
$69 |
|||||
| Property Account Status/Adjustments/Exemptions | ||
|---|---|---|
| Account # | Exemption Description | Amount |
|
R267127560 |
Homestead |
1,000 |
|
R267127560 |
3% Cap Homestead |
0 |
| Property Deed Transaction History (Recorded in the County Clerk's Office) | ||||||||||
|---|---|---|---|---|---|---|---|---|---|---|
| Date | Type | Book | Page | Price | Grantor | Grantee | ||||
|
8/23/2022 |
|
Deeds |
$0 |
KIZER JENZEN C |
KIZER CHANTE F Y |
|||||
|
7/5/2022 |
|
Deeds |
$175,000 |
RUBIO LUIS |
KIZER CHANTE |
|||||
|
9/29/2017 |
|
Deeds |
$110,000 |
HAMBRIGHT PATRICIA ANN TRS |
RUBIO LUIS |
|||||
| Last Mailed Notice of Value (N.O.V.) Information/History | ||||||||
|---|---|---|---|---|---|---|---|---|
| Year | Date | Market Value | Taxable Market Value | Gross Assessed | Exemption | Net Assessed | ||
|
2025 |
01/31/2025 |
196,500 |
194,040 |
21,344 |
0 |
21,344 |
||
|
2024 |
01/22/2024 |
190,500 |
184,800 |
20,328 |
0 |
20,328 |
||
|
2023 |
01/23/2023 |
176,000 |
176,000 |
19,360 |
0 |
19,360 |
||
| Property Building Permit History | |||||||||||
|---|---|---|---|---|---|---|---|---|---|---|---|
| Issued | Permit # | Provided by | Bldg # | Description | Est Construction Cost | Status | |||||
| No Building Permit records returned. | |||||||||||
| Click button below to access detailed information and additional property photos: | ||||||
|---|---|---|---|---|---|---|
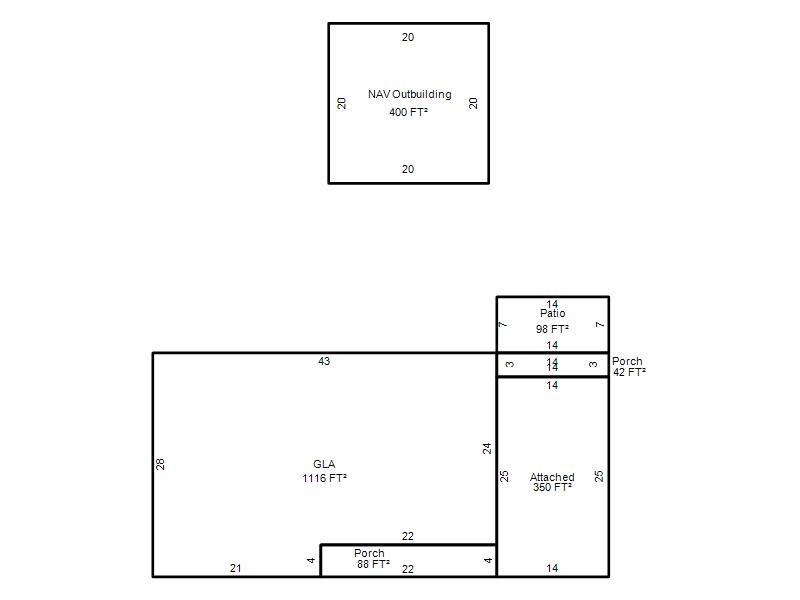
| Bldg # | Vacant/Improved Land | Bldg Description | Year Built | SqFt | # Stories | |
|
1 |
Improved |
Ranch 1 Story |
1979 |
1,116 |
1 Stories |
|