|
|
|
| Larry Stein Oklahoma County Assessor (405) 713-1200 - Public Access System |
|
|
|
|
|
|
| Real Property Display - Screen Produced 2/27/2026 5:14:02 AM | ||||
|---|---|---|---|---|
| Account: R038551000 | Type: Residential | Location: |
737 NE 34TH TER |
|
| Building Name/Occupant: |
|
OKLAHOMA CITY |
||
| Owner Name 1: | HAD GS TRUST |
Parcel PIN#: |
2685-03-855-1000 |
|
| Owner Name 2: | 1/4 section #: |
2685 |
||
| Owner Name 3: | Parent Acct: |
|
||
| Billing Address: | 737 NE 34TH TER | Tax District: |
|
|
| City, State, Zip | OKLAHOMA CITY, OK 73105 | School System: |
Oklahoma City #89 |
|
|
Country: (If noted) |
Land Size: |
0.1578 Acres |
||
|
Land Value: 9,969 |
|
|||
|
Sect 22-T12N-R3W Qtr NE |
DOWNING SCHMITT SUB
Block
012
Lot
010
|
|||
| Full Legal Description: DOWNING SCHMITT SUB 012 010 |
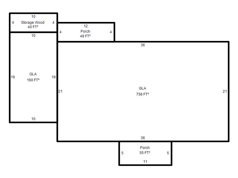
| Photo & Sketch (if available) | Comp Sales (ordered by relevancy) |
|
||||||||||||||||||
|
||||||||||||||||||||
| Value History (*The County Treasurer 405-713-1300 posts & collects actual tax amounts. Contact information HERE) | |||||||||||||
|---|---|---|---|---|---|---|---|---|---|---|---|---|---|
| Year | Market Value | Taxable Mkt Value | Gross Assessed | Exemption | Net Assessed | Millage | Est. Tax | Tax Savings | |||||
|
2025 |
88,500 |
76,981 |
8,467 |
0 |
8,467 |
122.90 |
$1,041 |
$156 |
|||||
|
2024 |
82,500 |
73,316 |
8,064 |
0 |
8,064 |
123.89 |
$999 |
$125 |
|||||
|
2023 |
76,500 |
69,825 |
7,680 |
0 |
7,680 |
122.82 |
$943 |
$90 |
|||||
|
2022 |
66,500 |
66,500 |
7,315 |
0 |
7,315 |
117.63 |
$860 |
$0 |
|||||
|
2021 |
42,000 |
42,000 |
4,620 |
0 |
4,620 |
117.70 |
$544 |
$0 |
|||||
| Property Account Status/Adjustments/Exemptions | ||
|---|---|---|
| Account # | Exemption Description | Amount |
|
R038551000 |
5% Capped Account |
0 |
| Property Deed Transaction History (Recorded in the County Clerk's Office) | ||||||||||
|---|---|---|---|---|---|---|---|---|---|---|
| Date | Type | Book | Page | Price | Grantor | Grantee | ||||
|
7/7/2021 |
|
Deeds |
$65,000 |
737 NE 34TH TERRACE LAND TRUST |
HAD GS TRUST |
|||||
|
9/20/2018 |
|
Deeds |
$19,000 |
CAVALLA DEVELOPMENT CO LLC |
737 NE 34TH TERRACE LAND TRUST |
|||||
|
3/2/2015 |
|
Deeds |
$15,000 |
BERRY REV TRUST |
CAVALLA DEVELOPMENT CO LLC |
|||||
|
2/21/2011 |
|
Hmstd Off & |
$0 |
ARMSTRONG JAMES E & GERTIE B |
BERRY REV TRUST |
|||||
|
7/13/2000 |
|
Other |
$0 |
WEHBA MICHAEL & CLEMENTINE C/O GERTIE ARMSTRONG |
ARMSTRONG JAMES E & GERTIE B |
|||||
| Last Mailed Notice of Value (N.O.V.) Information/History | ||||||||
|---|---|---|---|---|---|---|---|---|
| Year | Date | Market Value | Taxable Market Value | Gross Assessed | Exemption | Net Assessed | ||
|
2026 |
02/23/2026 |
95,000 |
80,830 |
8,890 |
0 |
8,890 |
||
|
2025 |
02/14/2025 |
88,500 |
76,981 |
8,467 |
0 |
8,467 |
||
|
2024 |
02/13/2024 |
82,500 |
73,316 |
8,064 |
0 |
8,064 |
||
|
2023 |
02/14/2023 |
76,500 |
69,825 |
7,680 |
0 |
7,680 |
||
|
2022 |
03/15/2022 |
66,500 |
66,500 |
7,315 |
0 |
7,315 |
||
| Property Building Permit History | ||||||
|---|---|---|---|---|---|---|
| Issued | Permit # | Provided by | Bldg # | Description | Est Construction Cost | Status |
|
8/20/1996 |
10189678 |
OKLAHOMA CITY |
1 |
Remodeled |
1,540 |
Inactive |
| Click button on building number to access detailed information: | ||||||
|---|---|---|---|---|---|---|
| Bldg # | Vacant/Improved Land | Bldg Description | Year Built | SqFt | # Stories | |
|
1 |
Improved |
Ranch 1 Story |
1949 |
946 |
1 Stories |
|