|
|
|
| Larry Stein Oklahoma County Assessor (405) 713-1200 - Public Access System |
|
|
|
|
|
|
| Real Property Display - Screen Produced 2/27/2026 1:42:41 AM | ||||
|---|---|---|---|---|
| Account: R035241285 | Type: Residential | Location: |
1301 NE 34TH ST |
|
| Building Name/Occupant: |
|
OKLAHOMA CITY |
||
| Owner Name 1: | A LIFE OF GRANTING LLC |
Parcel PIN#: |
2692-03-524-1285 |
|
| Owner Name 2: | 1/4 section #: |
2692 |
||
| Owner Name 3: | Parent Acct: |
|
||
| Billing Address: | 300 NW 22ND ST | Tax District: |
|
|
| City, State, Zip | OKLAHOMA CITY, OK 73103-3204 | School System: |
Oklahoma City #89 |
|
|
Country: (If noted) |
Land Size: |
0.1784 Acres |
||
|
Land Value: 19,037 |
|
|||
|
Sect 23-T12N-R3W Qtr NW |
PARK ESTATE RANCHETT
Block
002
Lot
013
|
|||
| Full Legal Description: PARK ESTATE RANCHETT 002 013 |
| Photo & Sketch (if available) | Comp Sales (ordered by relevancy) |
|
||||||||||||||||||
|
||||||||||||||||||||
| Value History (*The County Treasurer 405-713-1300 posts & collects actual tax amounts. Contact information HERE) | |||||||||||||
|---|---|---|---|---|---|---|---|---|---|---|---|---|---|
| Year | Market Value | Taxable Mkt Value | Gross Assessed | Exemption | Net Assessed | Millage | Est. Tax | Tax Savings | |||||
|
2025 |
117,000 |
116,025 |
12,762 |
0 |
12,762 |
122.90 |
$1,569 |
$13 |
|||||
|
2024 |
110,500 |
110,500 |
12,155 |
0 |
12,155 |
123.89 |
$1,506 |
$0 |
|||||
|
2023 |
99,500 |
36,862 |
4,054 |
0 |
4,054 |
122.82 |
$498 |
$846 |
|||||
|
2022 |
77,000 |
35,107 |
3,860 |
0 |
3,860 |
117.63 |
$454 |
$542 |
|||||
|
2021 |
67,500 |
33,436 |
3,677 |
3,677 |
0 |
117.70 |
$0 |
$874 |
|||||
| Property Account Status/Adjustments/Exemptions | ||
|---|---|---|
| Account # | Exemption Description | Amount |
|
R035241285 |
5% Capped Account |
0 |
| Property Deed Transaction History (Recorded in the County Clerk's Office) | ||||||||||
|---|---|---|---|---|---|---|---|---|---|---|
| Date | Type | Book | Page | Price | Grantor | Grantee | ||||
|
5/12/2023 |
|
Deeds |
$103,000 |
FREEMAN LEONARDO |
A LIFE OF GRANTING LLC |
|||||
|
6/19/2021 |
|
Hmstd Off & |
$0 |
FREEMAN LEONARD |
FREEMAN LEONARDO |
|||||
|
8/22/2012 |
|
Hmstd Off & |
$0 |
FREEMAN LEONARD |
FREEMAN LEONARDO |
|||||
|
3/28/1989 |
|
Historical |
$16,000 |
SECRETARY OF HOUSING |
FREEMAN LEONARD |
|||||
|
5/20/1988 |
|
Historical |
$0 |
CSB MORTGAGE |
SECRETARY OF HOUSING |
|||||
| Last Mailed Notice of Value (N.O.V.) Information/History | ||||||||
|---|---|---|---|---|---|---|---|---|
| Year | Date | Market Value | Taxable Market Value | Gross Assessed | Exemption | Net Assessed | ||
|
2025 |
02/14/2025 |
117,000 |
116,025 |
12,762 |
0 |
12,762 |
||
|
2024 |
02/13/2024 |
110,500 |
110,500 |
12,155 |
0 |
12,155 |
||
|
2023 |
02/14/2023 |
99,500 |
36,862 |
4,054 |
0 |
4,054 |
||
|
2022 |
03/15/2022 |
77,000 |
35,107 |
3,860 |
0 |
3,860 |
||
|
2021 |
03/19/2021 |
67,500 |
33,436 |
3,677 |
3,677 |
0 |
||
| Property Building Permit History | |||||||||||
|---|---|---|---|---|---|---|---|---|---|---|---|
| Issued | Permit # | Provided by | Bldg # | Description | Est Construction Cost | Status | |||||
| No Building Permit records returned. | |||||||||||
| Click button on building number to access detailed information: | ||||||
|---|---|---|---|---|---|---|
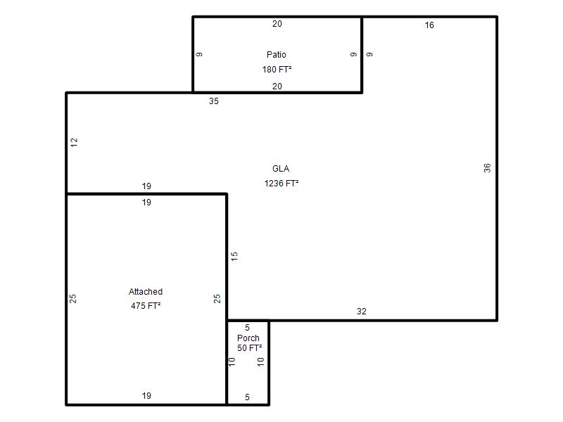
| Bldg # | Vacant/Improved Land | Bldg Description | Year Built | SqFt | # Stories | |
|
1 |
Improved |
Ranch 1 Story |
1956 |
1,236 |
1 Stories |
|